
|
農村建房之前,挑選圖紙是關鍵,如今網上的別墅圖紙琳瑯滿目,讓人挑花了眼睛,一來二去反而不知該選哪套,有錢卻不知道該建什么樣的戶型,這是最令人頭疼的,今天小編給大家推薦2款風格不同的進深10米左右二層農村別墅戶型設計圖,馬上對比看看你更喜歡哪個戶型!
【戶型1】
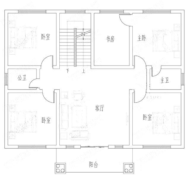
這款農村別墅戶型設計圖開間進深13.3×10.3米,占地面積141㎡,建筑面積282㎡,采用磚混結構,主體造價28萬左右。一層設有2廳3臥2衛1廚,二層設有1廳4臥2衛1書房。 簡單大氣的歐式風格設計,外墻采用暖色系裝飾,讓整棟房子看起來柔美溫馨,對稱工整的結構設計,清新亮麗,雙面超大聯體通窗玻璃美觀通透,精細雕琢的山花設計,高貴華麗。紅色的屋頂驚艷眼球,豁然開朗。
建筑平面圖展示
一層:客廳、主臥(帶主衛)、次臥×2、廚房、餐廳、公衛
二層:客廳(帶陽臺)、主臥(帶主衛、書房)、次臥×3、公衛
【戶型2】
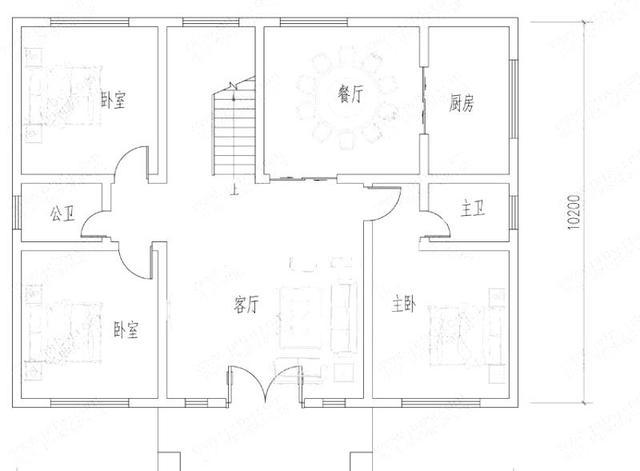
這款農村別墅戶型設計圖開間進深14.7米×10.8米,占地面積148.78㎡,總建筑面積354.63㎡,采用框架結構,主體造價35萬左右。一層設有3廳2臥1衛1廚1棋牌室1車庫,二層設有1廳5臥2衛1陽臺1衣帽間1書房。
這套戶型設計外觀上與戶型1出入較大,完全不同風格,戶型1溫暖大氣,而這套戶型采用較清新的色調,給人沉穩奢華之感。深綠色的墻磚,淡淡的黃色真石漆,藍色的屋面瓦,白色的腰線,清新刻畫。還有獨特的煙囪設計,歐式風格中夾帶一種古樸自然的田園風格,令人沉醉。
建筑平面圖展示
一層:車庫、門廳、客廳、臥室×2、棋牌室、廚房、餐廳、公衛
二層:休息廳、臥室(帶書房、衛生間)、臥室(帶陽臺)、臥室(帶衣帽間)、臥室×2、公衛 圖紙之家-專注農村別墅/自建房設計18年,集合國內200余位經驗豐富的設計師,被評為口碑最好的農村建筑設計公司! |

四層自建別墅設計圖,有車庫帶露臺,時尚大氣給你一個五星級的
占地:152.51平方米
時尚二層現代風別墅設計圖紙,平屋頂方案13×10米
占地:98平方米
小占地的農村別墅設計圖,占地僅72平米,參考造價不到15萬
占地:多戶型可選
15萬左右一層農村自建房設計圖,一家住剛剛好
占地:131.33平方米
13X13米新農村中式風三層別墅設計方案,內部布局緊湊溫馨
占地:168.43平方米
帶車庫鄉下雙拼別墅設計圖,三層造型漂亮大全
占地:256平方米
新中式高端豪宅三層別墅自建房設計圖,大戶型經典
占地:270平方米左右
新中式農村自建二層別墅設計圖,占地160平米左右,客廳中空
占地:160平方米
農村帶閣樓一層房屋設計施工圖,13X9米
占地:102平方米
農村二層住宅樓圖紙及效果圖,帶地下室,戶型好
占地:220平方米
歐式三層豪宅樓設計圖紙及外觀效果圖,占地180平左右
占地:177.82平方米
三層雙拼別墅效果圖及戶型設計圖,占地150平米
占地:154.8平方米
最美中式農村別墅二層三間的房子圖,帶土灶房,娛樂室,大露臺
占地:180平方米
獨棟別墅設計戶型圖帶外觀效果圖,雙向樓梯設計
占地:155平方米
新中式二層雙拼別墅農村自建房子設計圖紙,面寬19米
占地:240平方米左右,單
新款私人定制四層歐式獨棟住宅別墅設計圖紙,含外觀效果圖
占地:138平方米左右
四層豪華歐式別墅自建樓房設計圖紙,帶效果圖和全套施工圖
占地:300平方米
95平米二層別墅必蓋戶型圖,造型洋氣,布局接地氣,趕緊回村建
占地:95.38平方米
二層美式自建別墅設計圖,全套施工圖+外觀效果圖
占地:145平方米
130平左右三層樓房設計圖,新農村住宅自建推薦
占地:128平方米
推薦:10套新農村自建房設計圖,2026年最新設計
閱讀次數:4825737次
100套鄉村別墅圖片大全,2026年最新設計
閱讀次數:2492203次
6款農村蓋一層平房的設計圖,10萬元就能建起來
閱讀次數:1852637次
這11個一層農村自建房別墅火爆了朋友圈!我最喜歡戶型十!你呢
閱讀次數:750268次
農村6萬元建一層小別墅圖,你敢相信嗎
閱讀次數:567686次
農村5萬塊就能自建房,6套普通房子設計圖分享,你沒看錯!
閱讀次數:419410次
8套農村漂亮三間平房圖片,非常適合在農村修建!
閱讀次數:411197次
農村自建房化糞池怎么做?附方案及施工過程
閱讀次數:391783次
農村一層三間平房設計圖,告別土氣養老房,讓人忍不住點贊
閱讀次數:350581次
新農村二層樓房圖片造價12萬,挑一套回家建房吧!
閱讀次數:349126次
