
|
今天要給大家分享的這3款農村自建房設計圖,地上主體均為二層,主體造價均在30萬左右,戶型2和戶型3帶有車庫,每一款的設計都獨具特色,一起來看哪一款更適合你家! 【戶型1】
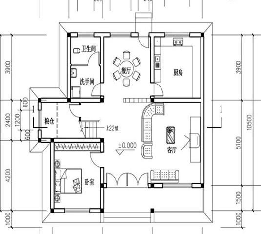
這款二層農村自建房設計圖開間11.7米,進深10.05米,采用磚混結構,主體造價大概25萬。一層設有2廳1臥1衛1廚1車庫,二層設有1廳3臥1衛1陽臺1露臺。外墻采用墻磚裝飾,走廊、陽臺、露臺的白色欄桿十分顯眼,屋頂高低錯落,富有層次感。一層樓梯下方設有糧倉,合理利用空間。 戶型1平面圖展示
一層:客廳、臥室、糧倉、廚房、餐廳、衛生間、洗手間
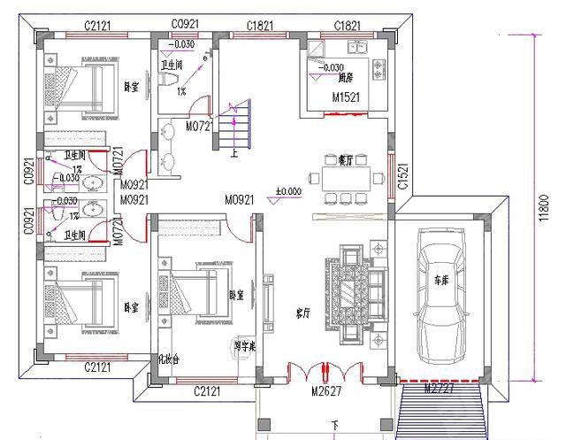
二層:起居室、臥室(帶陽臺)、臥室*2、衛生間、洗手間、露臺 【戶型2】 戶型2開間進深15.3米*11.8米,首層占地面積163㎡,總建筑面積307㎡,采用磚混結構,主體造價28萬左右。一層設有2廳3臥室2衛1廚1車庫,二層設有1廳3臥3衛1書房1陽臺1露臺。
該戶型歐式風格設計,外觀大氣時尚,采用文化石和真石漆裝飾,白色柱子層層遞進,設計感十足。 戶型2平面圖展示
一層:車庫、客廳、2臥室(帶衛生間)、臥室、衛生間、廚房、餐廳
二層:客廳(帶露臺、陽臺)、臥室(帶衛生間)、臥室(帶衛生間)、臥室、書房、公衛 【戶型3】 這款農村自建房設計圖開間進深14.7*10.8米,首層占地面積148.78㎡,建筑面積354.63㎡,磚混結構,主體造價大概30萬。一層設有3廳2臥1廚1衛1棋牌室1車庫,二層設有1廳5臥2衛1書房1陽臺。
整體外觀時尚大氣,采用薄荷綠和和白色、藍色裝飾,拱形窗個人一種柔美的視覺感,右立面的煙囪設計頗具特色,屬于歐式田園風格,清新自然。 戶型3平面圖展示
一層:車庫、門廳、客廳、臥室*2、廚房、餐廳、棋牌室、衛生間、洗漱區
二層:休息廳、臥室(帶書房、衛生間)、臥室(帶陽臺)、臥室(帶衣帽間)、臥室*2、公衛、洗漱區 圖紙之家-專注農村別墅/自建房設計18年,集合國內200余位經驗豐富的設計師,被評為口碑最好的農村建筑設計公司! |

農村帶車庫兩層歐式農村別墅設計圖紙,占地220平方米左右
占地:221平方米
經典中式三合院設計,一層空間實用大氣,輕松實現理想家園!
占地:160.53平方米
一層時尚農村自建別墅方案,低至10萬的造價,適合住家養老
占地:131.04平方米
農村120平方房子設計圖,三層房屋設計圖精選
占地:120平方米
30萬造價三層別墅建筑設計圖紙,戶型利用率高
占地:130平方米
帶地下車庫的三層別墅設計圖,160平復式戶型
占地:159.03平方米
260平方米歐式四層別墅設計圖20X18米,造價108萬
占地:260平方米
農村現代三層建房子設計圖及圖片,平屋頂的設計
占地:150平方米
面寬13米簡簡單單一層農村自建別墅設計圖,方正大氣經濟宜居
占地:126.1平方米
二層農村兄弟雙拼別墅設計圖,一墻之隔互不干擾,鄰居看了都喜
占地:164.24平方米
13x13米簡單二層帶閣樓最新別墅設計圖,精致美觀
占地:158.5平方米
一層田園風坡屋頂平房設計圖,造型漂亮時尚
占地:134.9平方米
2026二層農村新款別墅設計圖,帶車庫,帶鍋爐房
占地:180平方米
一層半復式帶閣樓別墅設計圖,含外觀圖片
占地:150平方米
簡單的復式住宅設計圖,客廳挑高,帶外觀效果圖片
占地:148平方米
歐式新農村三層復式樓自建房別墅圖紙,旋轉樓梯設計
占地:128平方米
140平方米歐式三層別墅建筑設計圖紙,復式結構
占地:140平方米
30萬農村小別墅設計圖片,30萬別墅設計戶型推薦
占地:130平方米
農村自建房設計圖,三層房屋設計圖及效果圖
占地:120平方米
中式古風別墅設計圖,一層三合院設計,經濟舒適,時尚與傳統的
占地:275.7平方米
推薦:10套新農村自建房設計圖,2026年最新設計
閱讀次數:4825737次
100套鄉村別墅圖片大全,2026年最新設計
閱讀次數:2492203次
6款農村蓋一層平房的設計圖,10萬元就能建起來
閱讀次數:1852637次
這11個一層農村自建房別墅火爆了朋友圈!我最喜歡戶型十!你呢
閱讀次數:750268次
農村6萬元建一層小別墅圖,你敢相信嗎
閱讀次數:567686次
農村5萬塊就能自建房,6套普通房子設計圖分享,你沒看錯!
閱讀次數:419410次
8套農村漂亮三間平房圖片,非常適合在農村修建!
閱讀次數:411197次
農村自建房化糞池怎么做?附方案及施工過程
閱讀次數:391783次
農村一層三間平房設計圖,告別土氣養老房,讓人忍不住點贊
閱讀次數:350581次
新農村二層樓房圖片造價12萬,挑一套回家建房吧!
閱讀次數:349126次
