
|
農村有兄弟的家庭可以合建雙拼別墅,建出來既漂亮又經濟,而且兄弟住在一起能增進感情,獨門入戶,又能保留隱私,還能一起照顧父母,一舉多得。這4套雙拼戶型,推薦給有兄弟的家庭建房使用。 戶型一
農村別墅基本信息
? 占地尺寸:18.2米x10.7米 ? 占地面積:194.74 ㎡ ? 建筑面積:368㎡ ? 建筑結構:磚混結構 ? 造價估算:39萬左右
效果圖正面
效果圖背面
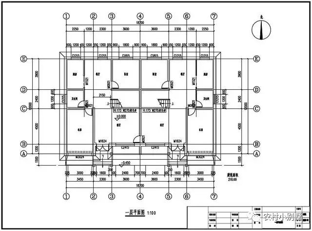
戶型二 建筑占地面積:218.69平方米 建筑規格:19米x12米
農村別墅基本信息
? 占地尺寸:18.7x12米 ? 占地面積:140.24㎡ ? 建筑面積:408㎡ ? 建筑結構:磚混結構 ? 造價估算:32萬
效果圖一
效果圖二
怎么樣?這套別墅戶型還不錯吧! 本套圖紙有施工圖27張,效果圖1張,包打印(效果圖為彩圖,施工圖為A3大圖),快遞包郵,無電子版
設計功能: 一層設計:客廳、餐廳、廚房、臥室、衛生間、車庫(單戶) 二層設計:主臥1、次臥2、起居室1、露臺、衛生間(單戶)
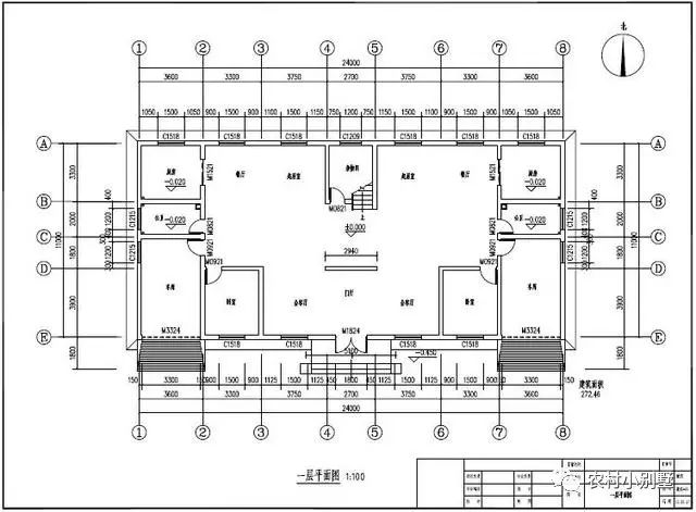
戶型三 建筑占地面積:272.46平方米 建筑規格:24米x12.8米 參考造價:60萬
設計功能: 一層設計:會客廳、臥室、起居室、餐廳、廚房、車庫、衛生間、雜物間/(每戶) 二層設計:觀景臺、起居室、書房、主臥、次臥、衛生間2/(每戶)
三層設計:起居室、主臥、次臥、客房、衛生間2/(每戶) ![]() 圖紙之家-專注農村別墅/自建房設計18年,集合國內200余位經驗豐富的設計師,被評為口碑最好的農村建筑設計公司! |

平屋頂現代風格三層蓋別墅設計圖紙,面寬18米
占地:235.34平方米
農村三層帶車庫、帶露臺別墅設計圖,經典自建別墅設計方案
占地:160平方米
七字型設計新中式一層別墅設計圖,類合院風格
占地:267.3平方米
95平米二層別墅必蓋戶型圖,造型洋氣,布局接地氣,趕緊回村建
占地:95.38平方米
村里三層新中式風自建別墅圖,對稱設計,氣派好看
占地:135.3平方米
120平二層別墅房屋設計圖,造型美觀、現代
占地:120平方米
三層兩開間小面寬別墅設計圖紙帶外觀效果圖,95平方米
占地:94.61平方米
爆款120平米三層農村別墅房屋設計圖,室內布局功能齊全,色彩搭
占地:120平方米
農村兄弟倆雙拼別墅房屋設計圖,外觀質樸
占地:195平方米
帶地下室三層復式別墅設計方案,全套設計圖+效果圖
占地:168平方米
新農村兩層樓房設計圖,占地110平米,戶型簡單實用
占地:110平方米
100平米左右簡單實用的二層樓房設計圖,施工簡單造價低
占地:95平方米
120平米農村40萬三層別墅自建房款式,簡歐風格
占地:120平方米
140平方米新農村三層房屋設計圖,磚混結構帶地下室
占地:138平方米左右
300平方二層別墅四合院設計圖紙方案(效果圖+施工圖)
占地:332平方米
農村三層雙拼別墅設計圖,兄弟建房開間20米,單戶80平方
占地:160平方米
面寬12米新中式三層別墅設計圖,回家建房就選它,全家人都愛的
占地:180平方米
五十萬二層半鄉村別墅,客廳挑空設計,占地200平米左右
占地:200平方米
簡單經濟一層自建養老房,12米乘9.5米,溫暖舒適施工簡單
占地:103.2平方米
30萬預算三層別墅設計圖紙及效果圖,新農村自建推薦
占地:110平方米
推薦:10套新農村自建房設計圖,2026年最新設計
閱讀次數:4825737次
100套鄉村別墅圖片大全,2026年最新設計
閱讀次數:2492203次
6款農村蓋一層平房的設計圖,10萬元就能建起來
閱讀次數:1852637次
這11個一層農村自建房別墅火爆了朋友圈!我最喜歡戶型十!你呢
閱讀次數:750268次
農村6萬元建一層小別墅圖,你敢相信嗎
閱讀次數:567686次
農村5萬塊就能自建房,6套普通房子設計圖分享,你沒看錯!
閱讀次數:419410次
8套農村漂亮三間平房圖片,非常適合在農村修建!
閱讀次數:411197次
農村自建房化糞池怎么做?附方案及施工過程
閱讀次數:391783次
農村一層三間平房設計圖,告別土氣養老房,讓人忍不住點贊
閱讀次數:350581次
新農村二層樓房圖片造價12萬,挑一套回家建房吧!
閱讀次數:349126次
