
|
雖然自建房的成本要比在城市買商品房便宜很多,但是對于很多農村家庭來說還是一筆不小的數目,本篇小編就為大家推薦幾套既實用成本又低的農村二層小樓圖,主體毛坯造價均在13萬左右,這幾套小樓設計圖占地面積在100平米左右,希望大家能夠喜喜歡。 案例一:
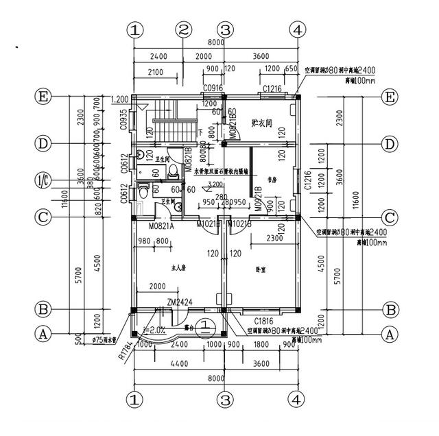
建筑占地為面寬8米進深11.6米,磚混結構,造價為13.6萬元。外觀造型相對簡單,戶型合理。
設計功能:一樓設有老人房,二樓有兩個臥室和一個書房,一個三代之家也夠用。 案例二:
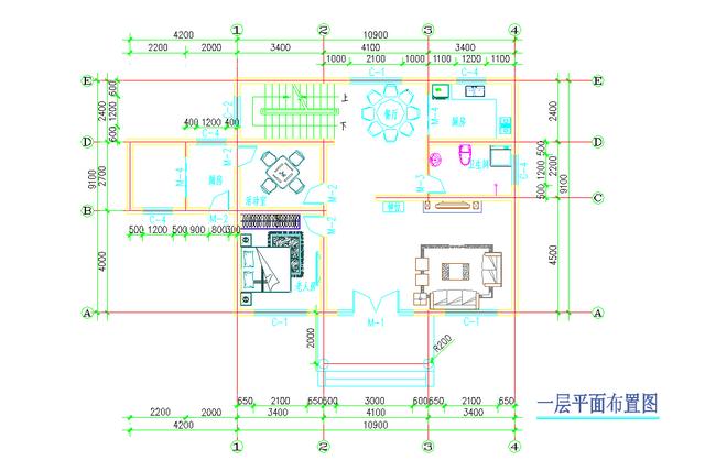
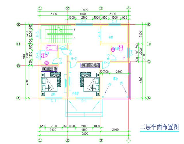
建筑占地面積為10.9米x9.1米,簡歐式的外觀設計使得整個別墅看起來低調奢華又內涵
二層還有一個大露臺,總共有3個臥室和一個書房,如果人口較多書房也可以改做客房用,磚混結構,造價13.89萬元。 案例三:
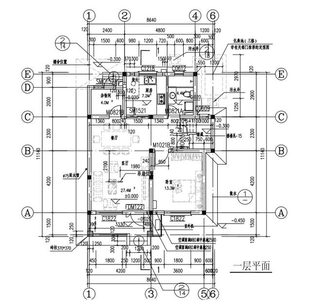
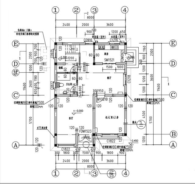
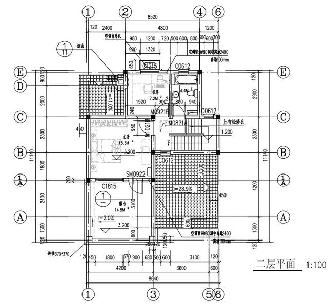
這個案例看起來要洋氣一些,坡屋頂的交錯設計使得整個別墅看起來很有層次感和現代感。這套別墅的占地面積為8.64x11.14,造價13.2萬元。
本戶型設計為三口之家,一層一個臥室,二層有個主臥和一個書房,主臥直通大露臺。 怎么樣,看了這幾套圖紙感覺有沒有適合您的呢,沒想到這么漂亮的小樓只需13萬元吧,想住別墅不是夢,關鍵是合理的設計成本和良心施工隊。 圖紙之家-專注農村別墅/自建房設計18年,集合國內200余位經驗豐富的設計師,被評為口碑最好的農村建筑設計公司! |

南方新農村三層房屋設計圖大全,預算30萬內
占地:145平方米
鄉村高檔四層別墅樓設計圖,二三層復式挑空客廳
占地:148.992平方米
160平方米農村實用型二層自建小別墅設計施工圖紙15米*10米
占地:160平方米
鄉村二層簡歐小戶型別墅圖設計,占地90平方米左右
占地:92.12平方米
140平一層平房別墅設計圖,兩客廳兩衛四臥室
占地:140平方米
農村三層樓房設計圖及效果圖,復式磚混結構
占地:148平方米
農村四間兩層樓房設計圖,含外觀圖片
占地:138平方米
三層農村自建別墅設計圖紙及效果圖,占地110平米,外觀精致又大
占地:110平方米
農村一層平房設計圖,人字坡戶型簡單大方,養老自住都不錯
占地:139.2平方米
獨棟小別墅設計圖,造價30萬左右的獨棟小別墅設計推薦
占地:150平方米
二層小別墅設計方案圖,平頂設計帶cad施工圖和外觀效果圖
占地:147平方米
90平方米農村二層房屋設計圖紙(施工圖+效果圖)
占地:90平方米
農村自建二層樓房設計圖及效果圖,二層房屋圖推薦
占地:105平方米
農村二層樓建房造型圖及全套施工圖紙,占地110平米左右,帶地下
占地:110平方米
最好看的新款農村三層復式別墅設計圖片及設計圖,外觀高端、大
占地:160平方米
給爸媽建養老房?100 平人字坡一層房太合適!簡約低調還實用
占地:102.6平方米
二層復式雙拼別墅設計圖(客廳中空),含外觀效果圖
占地:195平方米
114平方米農村四層別墅設計圖紙及效果圖,11X11米
占地:114平方米
帶堂屋設計一層5間平房新農村自建別墅效果圖全套施工圖
占地:198.41平方米
農村兄弟倆雙拼別墅房屋設計圖,外觀質樸
占地:195平方米
推薦:10套新農村自建房設計圖,2026年最新設計
閱讀次數:4825737次
100套鄉村別墅圖片大全,2026年最新設計
閱讀次數:2492203次
6款農村蓋一層平房的設計圖,10萬元就能建起來
閱讀次數:1852637次
這11個一層農村自建房別墅火爆了朋友圈!我最喜歡戶型十!你呢
閱讀次數:750268次
農村6萬元建一層小別墅圖,你敢相信嗎
閱讀次數:567686次
農村5萬塊就能自建房,6套普通房子設計圖分享,你沒看錯!
閱讀次數:419410次
8套農村漂亮三間平房圖片,非常適合在農村修建!
閱讀次數:411197次
農村自建房化糞池怎么做?附方案及施工過程
閱讀次數:391783次
農村一層三間平房設計圖,告別土氣養老房,讓人忍不住點贊
閱讀次數:350581次
新農村二層樓房圖片造價12萬,挑一套回家建房吧!
閱讀次數:349126次
