
|
隨著時代的發展,老一輩結婚的老三樣,變成了新三樣:有房、有車、有存款,這些都是現在婚嫁的必備品要不然你就得做一輩子的單身狗。車子你可以隨便買輛,只要可以代步的一般車子就行,但是房子可以說是我們一輩子要住的地方,所以容不得一點馬虎。但是你又想花低價建成一棟大氣、美觀、舒適而又與眾不同的別墅,那就看看下面小編介紹的兩款農村自建房吧。 款式一
別墅效果圖 這款別墅外型美觀大氣,有種如仙境之意,如果周圍有庭院的話,再種些花草樹木,那就更加沒了。一層樓下大門旁還有花圃,非常適合喜歡種植花草的人居住,二樓上還有兩個小陽臺,適合觀賞。 基本信息: 占地尺寸:13.4×11.1米; 占地面積:142.46平方米; 建筑面積:257.91平方米; 結構類型:磚混結構; 開間:13.4米,進深:11.1米; 造價預算:20萬 下面是別墅內部結構效果圖:
一層平面圖 入門即是玄關,可以擺放神龕或是在側面擺放鞋柜,進出門可以方便換鞋。旁邊是一個大客廳,客廳的窗外就是花圃,外面種植的花香可以隨風飄進來,室內非常清香,主臥旁也是一樣的構造。廚房與餐廳采用油煙分離式設計,非常合理。
二層平面圖 二樓有一個大套間,里面既有衛生間還有一個書房,旁邊還有一個小陽臺,可以自己居住,室內采光好,空氣也好,如果白天有工作未完成,晚上可以在書房繼續工作,既不打擾別人休息,自己也能安心工作,或是孩子作業未完成,也能方便照看。還有一個大陽臺,非常適合休閑娛樂。 別墅立體效果圖
款式二
別墅效果圖 此款別墅是二層經典房,農村普遍的磚混建筑結構。圓柱形的白色羅馬柱,上面刻有條形螺紋,亮麗清新。二樓設有露天式和遮閉式陽臺,不論是雨天還是晴天都可以觀景。 基本信息: 占地尺寸:11.2×12.22米; 占地面積:106平方米; 建筑面積:206平方米; 結構類型:磚混結構; 開間:11.2米,進深:12.22米; 造價預算:20萬 下面是別墅內部結構效果圖:
一層平面圖 入門前是個門樓設計,這樣的好處是不會把外面的泥土直接就帶入室內。可以根據需要在入室處設一個玄關,供奉神龕等。衛生間是一個干濕分離設計,不至于沐浴時水花亂濺,還能保證多人同時使用。廚房餐廳以及與外廳都是一個油煙分離設計,保證了廚房內的油煙不會到處彌漫,保持室內的干凈整潔。
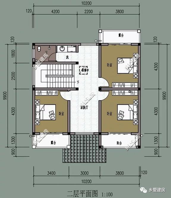
二層平面圖 三室一廳,二樓設計與一樓類似。如果不需要那么多臥室,其實可以做適當的改造,把主臥室擴大做成套間,然后另一間作為兒童房,還有一間做成書房或是娛樂室等。 圖紙之家-專注農村別墅/自建房設計18年,集合國內200余位經驗豐富的設計師,被評為口碑最好的農村建筑設計公司! |

一層5間歐式平房小洋樓建筑設計圖紙,大戶型一層別墅戶型
占地:216平方米
簡易農村別墅房子設計圖,好看實惠,施工也簡單
占地:200平方米
經濟、不張揚!簡單二層別墅設計圖,農村建房直接抄作業
占地:198.58平方米
大面積農村一層房子設計圖,戶型實用、合理
占地:190平方米
帶地下室三層別墅設計圖紙(含外觀效果圖),別墅設計方案
占地:134平方米
鄉村中式四合院二層別墅設計圖,中式韻味十足
占地:223平方米左右
130多平方米新農村三層別墅建筑設計圖及效果圖
占地:133平方米左右
復式挑空二層別墅設計圖,占地175平米,建好住著很舒適
占地:175.44平方米
帶車庫帶露臺二層農村小別墅設計圖,宅基地大小適中,外觀造型
占地:180平方米
農村二層半新中式小別墅設計圖(帶閣樓層),二層半自建房戶型
占地:144平方米
好看精致的三層自建房別墅設計圖,開間12米進深12米左右
占地:125.73平方米
新中式三層雙拼別墅設計圖,外觀圖片美觀、大氣
占地:176平方米
兩戶190平方米新農村雙拼別墅全套設計方案及效果圖
占地:191平方米
三層復式別墅設計圖紙(含效果圖),復式住宅設計圖精選
占地:147.7平方米
農村二層住宅設計圖,大窗戶客廳,一起享受大面積采光的溫暖
占地:220平方米
120平方米新農村房屋設計圖紙,新中式效果圖,3層住宅設計方案
占地:120平方米
新款鄉村二層半別墅設計圖紙帶效果圖,三層別墅外觀圖片大全
占地:108.795平方米
兄弟雙拼三層小戶型別墅設計圖紙,160平方米(單戶80平)
占地:163平方米
農村仿古四合院設計圖自建房,外觀中式古樸典雅
占地:378平方米
100平方米新農村住宅二層小別墅設計CAD圖紙及效果圖,10x10米
占地:96平方米
推薦:10套新農村自建房設計圖,2026年最新設計
閱讀次數:4825737次
100套鄉村別墅圖片大全,2026年最新設計
閱讀次數:2492203次
6款農村蓋一層平房的設計圖,10萬元就能建起來
閱讀次數:1852637次
這11個一層農村自建房別墅火爆了朋友圈!我最喜歡戶型十!你呢
閱讀次數:750268次
農村6萬元建一層小別墅圖,你敢相信嗎
閱讀次數:567686次
農村5萬塊就能自建房,6套普通房子設計圖分享,你沒看錯!
閱讀次數:419410次
8套農村漂亮三間平房圖片,非常適合在農村修建!
閱讀次數:411197次
農村自建房化糞池怎么做?附方案及施工過程
閱讀次數:391783次
農村一層三間平房設計圖,告別土氣養老房,讓人忍不住點贊
閱讀次數:350581次
新農村二層樓房圖片造價12萬,挑一套回家建房吧!
閱讀次數:349126次
