
|
越來越多的人喜歡中式的房子了,不論新中式還是徽派形式,多看一眼都心動,過不難忘,不選擇一款戶型拿回家蓋都不甘心。總有一些年輕人在城里混得風生水起后,先回家蓋一棟豪華的房子,也算是衣錦還鄉了。
設計說明:
背面上也做了凹凸的造型感,柱子上也是有相當的好看的點綴,此戶型建在農村配上青山綠水的環境,讓人流連忘返。
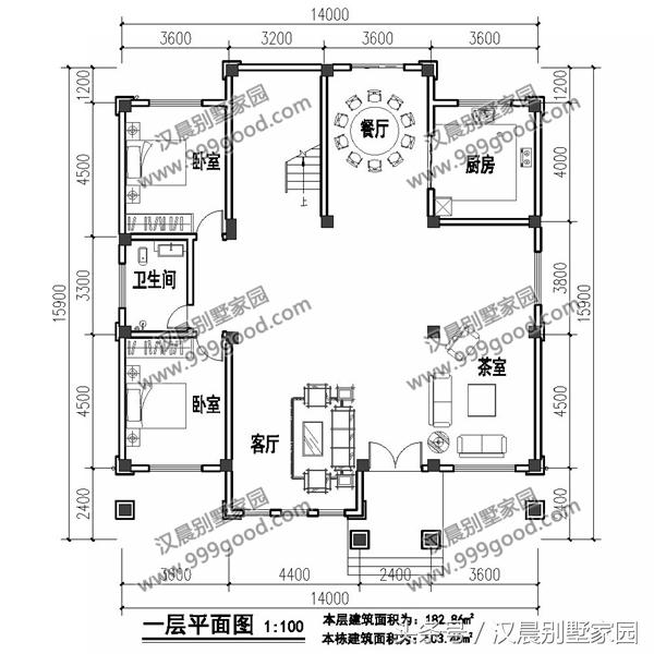
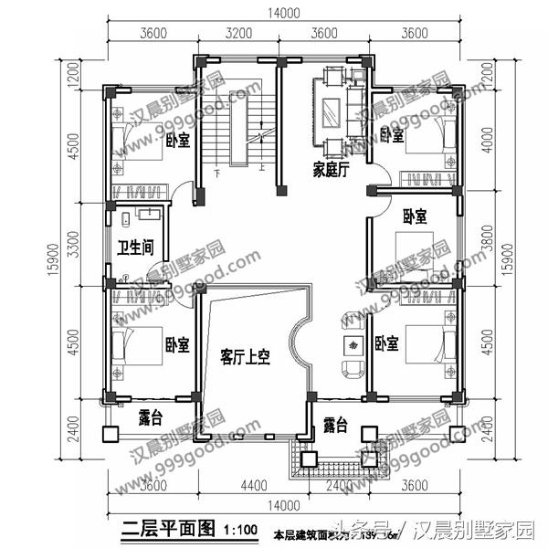
平面說明: 大開間四間形式,廚房、餐廳和臥室、客廳都有各自相對的區域,私有空間比較獨立,分區明顯。茶室和客廳空間闊度大,來客也不擁擠。 陳 先生不想多做衛生間,畢竟衛生間太多也不太好,室內空氣不保證,也不實用,將每個衛生間做大點就好了。 大氣還是要有中空的設計,總共有11間臥室,過年過節親友留宿完全不是問題。
陳先生就是因為看了咱們圖庫里的這2款樣式,下面也一并發布出來,看看有何魅力。
外觀說明:青灰色屋頂和樓層之間的腰線,避免了戶型外觀上的單調,中間運用鏤空的特色圍欄將大氣之勢淋漓盡致的展現出來。
平面圖說明: 相比這棟戶型的尺寸,上面的戶型開間的確是蠻小的,按照當地農村的習俗,堂屋要獨立且占據的面積要大。 臥室和廚房餐廳等油煙區隔離,堂屋和客廳雙挑空,旋轉樓梯直達180度。 三層有娛樂室、客廳、書房等豐富的功能讓生活自由,有臥室玩累了學累了都可以休息。
還有一款面積最大的外觀相同的戶型,有獨立的土灶房,宅地的面積超大,相比進深就小多了。
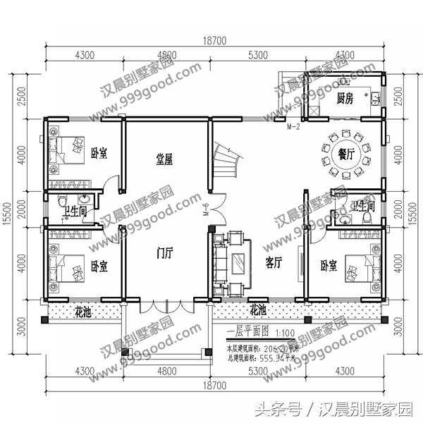
平面圖說明: 入戶門廳感覺不都大氣,室內沒有堂屋,注重朋友之間的友情和日常的活動,客廳和餐廳面積較大。 樓梯間和雜物間以及衛生間都有實墻相隔,打理起來方便有序。 二層視聽室是亮點,在家也可以看大片。三層露臺環形,能夠任意欣賞房屋周圍的美景。
![]() 圖紙之家-專注農村別墅/自建房設計18年,集合國內200余位經驗豐富的設計師,被評為口碑最好的農村建筑設計公司! |

最接農村地氣的二層農村小別墅,造價30萬左右,經濟實用
占地:170平方米
挑空客廳戶型歐式二層別墅設計圖紙,高端大氣帶車庫
占地:236.09平方米
90平方米新農村住宅設計二層小別墅設計圖紙11x9米
占地:90平方米
帶柴火房農村一層自建房設計圖,戶型布局接地氣
占地:126.29平方米
125平方米三層新農村房屋建筑施工設計圖帶外觀圖
占地:126平方米
帶架空層的農村二層別墅設計方案,造型大氣漂亮
占地:176平方米
占地130平三層現代別墅設計圖方案,帶電梯和地下室設計
占地:134.75平方米
面寬20米農村自建房設計圖一層設計圖,五開間養老戶型
占地:194平方米
175平大客廳三層別墅房屋設計圖,含外觀造型現代,美觀
占地:175平方米
面寬8米農村二間二層小別墅設計方案,施工簡單造價低
占地:73.77平方米
經典小戶型二層新農村房屋設計圖紙,客廳中空,造價20萬
占地:94平方米
130平方米湖南二層復式自建房屋設計圖紙12x11米
占地:128平方米
現代風格三層別墅設計圖紙和效果圖,農村自建精選
占地:129平方米
農村15萬元二層小樓設計圖,外觀簡潔、樸素,造價低
占地:138平方米
新款240平方米三層雙拼別墅設計圖,歐式兄弟雙拼圖片
占地:240平方米
農村二層四合院設計圖,秒殺各種洋別墅
占地:220平方米
16米乘11米接地氣農村二層自建房圖,帶配房設計
占地:149.8平方米
130平米新農村自建房屋施工建筑圖紙及效果圖
占地:132平米
現代一層(帶悶頂)別墅住宅設計圖,外觀現代時尚
占地:160平方米
高端大氣三層別墅設計圖,建好就是村里最靚的
占地:120平方米
推薦:10套新農村自建房設計圖,2026年最新設計
閱讀次數:4825737次
100套鄉村別墅圖片大全,2026年最新設計
閱讀次數:2492203次
6款農村蓋一層平房的設計圖,10萬元就能建起來
閱讀次數:1852637次
這11個一層農村自建房別墅火爆了朋友圈!我最喜歡戶型十!你呢
閱讀次數:750268次
農村6萬元建一層小別墅圖,你敢相信嗎
閱讀次數:567686次
農村5萬塊就能自建房,6套普通房子設計圖分享,你沒看錯!
閱讀次數:419410次
8套農村漂亮三間平房圖片,非常適合在農村修建!
閱讀次數:411197次
農村自建房化糞池怎么做?附方案及施工過程
閱讀次數:391783次
農村一層三間平房設計圖,告別土氣養老房,讓人忍不住點贊
閱讀次數:350581次
新農村二層樓房圖片造價12萬,挑一套回家建房吧!
閱讀次數:349126次
