
|
每個地方農村建房都有自己的風俗習慣,就像浙江那邊的很多農村,自建房都喜歡做一個地下室,地下室的作用是蠻大,然造價一般也不低。 這是一款帶地下室設計的農村別墅戶型,并配有多邊形采光窗,給家人一個最美最溫馨的家。 浙江江山毛先生 私人定制別墅戶型 效果圖
戶型基本信息 建房地點:浙江江山 開間:11.8米,進深:10.4米 占地面積:129.64平方米 建筑面積:472.87平方米 首層高度:3.8米 建筑高度:12.68米 結構類型:框架結構 主體造價參考:50萬左右
該別墅外墻使用
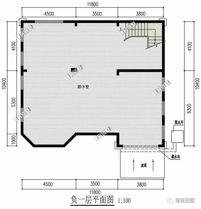
平面圖 地下室:一個停車庫設計,其余空間功能沒有做特定的規劃。
一層:設有后門戶型通透,且前后門都有臺階上下,都很氣派,多邊形采光窗設計的客廳寬敞透亮,內設小臺階盡顯大氣。
二層:一個主臥室兩次臥室設計,另有單獨衣帽間搭配觀景陽臺,客廳外設生活陽臺一個。
三層:一個配陽臺的書房以便學習辦公,另有大露臺滿足大量晾曬的需要。
我心目中的家就是這樣子的,不用很大,臥室不用太多,但功能一定要全,保證足夠的室外休閑空間,生活質量肯定很高。 圖紙之家-專注農村別墅/自建房設計18年,集合國內200余位經驗豐富的設計師,被評為口碑最好的農村建筑設計公司! |

二層樓房設計圖,占地120平米左右,符合現代農村的建房政策
占地:120平方米
二層自建房子最新款設計圖,平屋頂簡約經濟,美觀不失大方。
占地:115.64平方米
四層自建別墅設計圖,有車庫帶露臺,時尚大氣給你一個五星級的
占地:152.51平方米
最新設計的三層農村別墅圖紙,帶車庫,帶露臺,占地150平米左右
占地:150平方米
歐式三層樓中樓別墅設計圖紙帶車庫(含外觀效果圖)
占地:130平方米
農村18萬元二層小樓圖,占地120平面,戶型緊湊合理
占地:120平方米
新中式帶露臺30萬左右農村三層別墅,客廳中空
占地:110平方米
預算20萬的農村三層房屋設計圖方案,帶外觀效果圖
占地:115平方米
歐式三層豪宅樓設計圖紙及外觀效果圖,占地180平左右
占地:177.82平方米
鄉下復式三層房子設計圖,帶堂屋,客廳中空,輕奢風格
占地:190平方米
農村中式二層4開間別墅圖紙設計方案圖,帶車庫戶型
占地:198平方米
114平方米農村四層別墅設計圖紙及效果圖,11X11米
占地:114平方米
鄉村典型自建房中式二層四合院別墅設計圖,左右對稱設計
占地:430平方米
一層鄉村自建別墅設計方案推薦,含外觀圖片
占地:148平方米
小面寬的農村簡單四層2建平屋頂別墅設計圖,農村自建房首選
占地:109.29平方米
最新三層農村別墅設計圖紙,推薦農村自建
占地:106平方米
獨立餐廳廚房,平屋頂現代風格三層別墅設計圖
占地:159.02平方米
10×12米三層別墅戶型,挑空大客廳設計,圈粉無數的爆款方案
占地:120平方米
275平方米新農村雙拼樓中樓戶型別墅設計圖紙及效果圖21X14米
占地:275平方米
14米乘10米農村二層別墅新款,外觀對稱設計,經久耐看!
占地:140平方米
推薦:10套新農村自建房設計圖,2026年最新設計
閱讀次數:4825737次
100套鄉村別墅圖片大全,2026年最新設計
閱讀次數:2492203次
6款農村蓋一層平房的設計圖,10萬元就能建起來
閱讀次數:1852637次
這11個一層農村自建房別墅火爆了朋友圈!我最喜歡戶型十!你呢
閱讀次數:750268次
農村6萬元建一層小別墅圖,你敢相信嗎
閱讀次數:567686次
農村5萬塊就能自建房,6套普通房子設計圖分享,你沒看錯!
閱讀次數:419410次
8套農村漂亮三間平房圖片,非常適合在農村修建!
閱讀次數:411197次
農村自建房化糞池怎么做?附方案及施工過程
閱讀次數:391783次
農村一層三間平房設計圖,告別土氣養老房,讓人忍不住點贊
閱讀次數:350581次
新農村二層樓房圖片造價12萬,挑一套回家建房吧!
閱讀次數:349126次
