
|
項目名稱:順義別墅項目 項目地點:北京順義 項目基地面積:495m² 項目建筑面積:351.5m² 建筑尺寸:33X15米 建筑結構:框架結構 易蓋房區域設計機構:北京殊舍建筑 項目負責人:錢帥 建筑師:陳俊友、金昶余 項目概況 業主對房屋的空間需求是地上兩層 一層為客廳、餐廳、廚房以及一個老人房 二層則是三個房間加一個家庭廳 地下一層,主要是一些娛樂休閑空間 地下室主要通過下沉庭院和二樓的采光井采光 屋頂為坡屋頂 設露臺,面積控制在25平米以內 建筑結構為框架結構 要求院內做景觀,還要有5m進深的菜地 基地情況 項目位于北京順義,場地規模33*15m,南北進深遠大于東西面寬。旁邊有一家鋼結構的二層房屋正在施工,除去350平米左右的建筑面積,周圍全部用景觀覆蓋,院子內除去景觀,還要保留5m進深的菜地。
△改造前
△改造后 效果展示 建筑整體采用灰色系,圍墻采用青磚材質(考慮造價也可紅磚外噴真石漆),根據業主要求,幾乎一半面積用來居住,一半面積用來做景觀和菜地,真不愧是自家居住,自家耕地,一大家子人其樂融融~這
△鳥瞰圖
△鳥瞰圖
△鳥瞰圖
△鳥瞰圖
△鳥瞰圖 庭院入口使用清水混凝土、白墻、深灰真石漆、樹等幾種元素構成,搭配方式以現代簡約為主。院內高挑的樹木局部探出墻外,豐富整體立面效果。
△入口效果圖
△大門效果圖 沿著青磚圍墻,大量種植了竹子,不僅美化環境,營造良好景觀,同時也有步步高升的寓意。在東北角,圍墻高度被有意降低,以消除圍墻對于下沉庭院采光的影響,同時也要保證私密性和安全性。
△下沉庭院
△庭院效果圖
△庭院效果圖 院內景觀設計以簡單為主,造景手法也相對較少,主要以枯山水的原材料砂石做底,然后無規則的平鋪木板條,無序但不凌亂。局部輔以小品、水池、花草以及樹木。入口兩側應甲方要求留作菜地,所以并未處理。建筑入口處設置了鋼制雨棚,玻璃頂,雨棚延伸形成格柵架,在墻面營造隨著時間變化而變化的光影效果。
△庭院效果圖
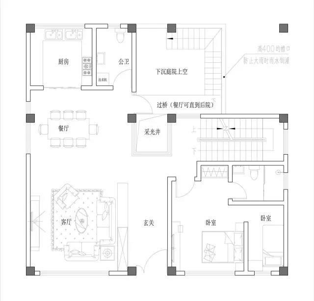
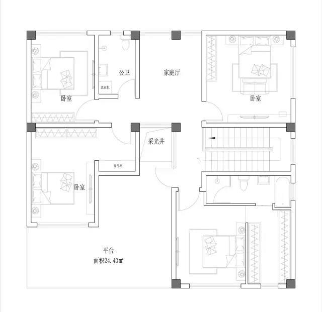
△庭院效果圖 圖紙中心 農家院設有三層,地下一層主要是娛樂使用,設有棋牌室,影音室,臺球廳還有一個小型的儲備間,兩處門的設置不僅方便直接進入下沉的庭院,亦方便直接進入室內,地下室主要通過下沉庭院和二樓的采光井采光。一層功能分為客廳、餐廳、廚房以及一個老人房;二層則是三個房間加一個家庭廳,還有一處露臺,可以做夏日燒烤之地~這種房子住著,我看著仿佛感受到了幸福。
△負一層平面圖
△一層平面圖
△二層平面圖
△東立面圖
△西立面圖
△南立面圖
△北立面圖 圖紙之家-專注農村別墅/自建房設計18年,集合國內200余位經驗豐富的設計師,被評為口碑最好的農村建筑設計公司! |

帶車庫三層自建別墅設計圖紙,客廳中空,外觀洋氣時尚,這款戶
占地:170平方米
150平方米二層別墅設計及效果圖展示下載,17X10米
占地:150平方米
高端大氣三層歐式別墅設計圖,高檔新款外型圖片美觀時尚
占地:168平方米
豪華三層別墅設計圖紙,全套施工方案帶效果圖
占地:130平方米
新中式三層別墅設計圖紙(含效果圖),110平農村自建房施工圖推
占地:110平方米
農家中式小院一層三合院自建房,布局寬敞大氣又舒適
占地:186.07平方米
農村實用三層樓房圖片,占地140平米左右,客廳中空
占地:140平方米
兩層半樓房設計圖及效果圖,農村二層房屋設計圖推薦
占地:135平方米
130平米新農村自建房屋施工建筑圖紙及效果圖
占地:132平米
農村二層四合院設計圖,秒殺各種洋別墅
占地:220平方米
帶小院子的鄉村一層別墅設計圖紙,120平方米
占地:多戶型
復式、旋轉樓梯三層別墅設計方案圖,戶型合理、實用
占地:138平方米
100平新農村三層復式房屋別墅設計圖紙,造價30萬左右
占地:106平方米
爆款農村一層別墅圖紙設計,看過的都說漂亮實用
占地:144.91平方米
歐式風格三層自建房設計圖,外觀高端大氣,彰顯業主的高貴品質
占地:180平方米
100平左右農村一層平房小洋樓建筑設計圖紙,14米×8米
占地:98平方米
120平方米帶地下室三層復式別墅戶型圖,現代風格
占地:120.78平方米左
農村簡易二層樓設計圖,外觀簡單漂亮,經典時尚
占地:140平方米
農村三間四層樓房設計圖,農村輕奢型四層別墅
占地:160平方米
現代三層復式小別墅設計圖及外觀圖片,25萬造價
占地:105平方米
推薦:10套新農村自建房設計圖,2026年最新設計
閱讀次數:4825737次
100套鄉村別墅圖片大全,2026年最新設計
閱讀次數:2492203次
6款農村蓋一層平房的設計圖,10萬元就能建起來
閱讀次數:1852637次
這11個一層農村自建房別墅火爆了朋友圈!我最喜歡戶型十!你呢
閱讀次數:750268次
農村6萬元建一層小別墅圖,你敢相信嗎
閱讀次數:567686次
農村5萬塊就能自建房,6套普通房子設計圖分享,你沒看錯!
閱讀次數:419410次
8套農村漂亮三間平房圖片,非常適合在農村修建!
閱讀次數:411197次
農村自建房化糞池怎么做?附方案及施工過程
閱讀次數:391783次
農村一層三間平房設計圖,告別土氣養老房,讓人忍不住點贊
閱讀次數:350581次
新農村二層樓房圖片造價12萬,挑一套回家建房吧!
閱讀次數:349126次
