
|
很多有兩兄弟的農村家庭自建房的時候,往往會選擇建造疊拼或者雙拼戶型,住在一起但各自開灶,相互之間影響較小,還能充分利用地皮,節省建房成本。今天給大家介紹一款14×17米中式二層雙拼別墅設計圖。
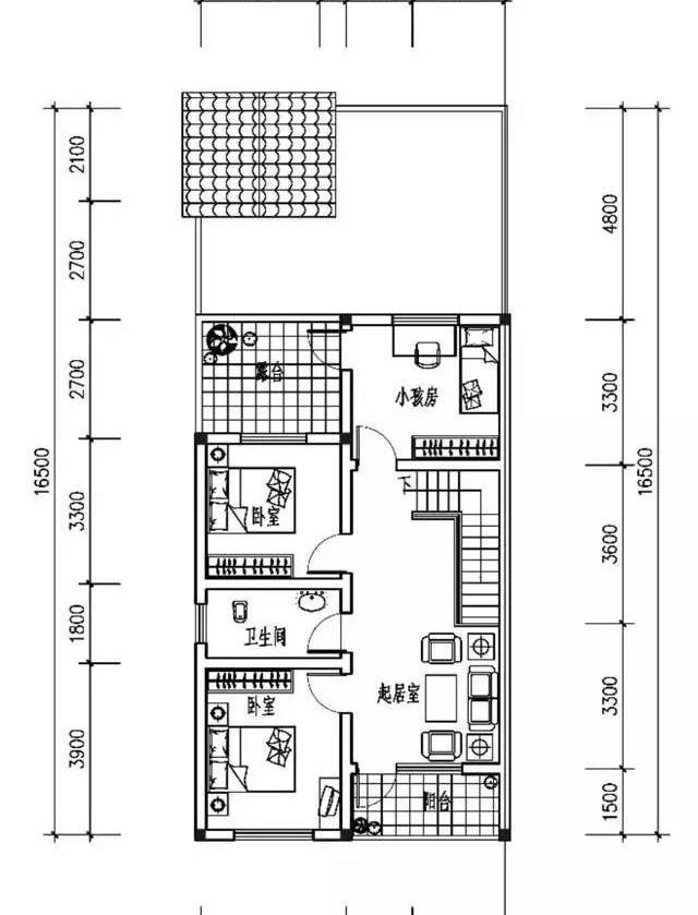
該戶型設計簡約大氣,屬于中式設計風格,外墻采用白色為主,并使用朱紅色線條輔助,紅色的陽臺欄桿與之映襯,屋頂灰色坡面設計,獨門入室,各住一邊,降低干擾,兩戶合建,可以節省不少施工費用。 本套雙拼別墅設計圖開間進深13.8米×16.5米,建造高度8米,采用磚混結構,主體造價45萬左右,單戶一層設有2廳1臥1衛1廚1后院,二層設有1廳3臥1衛1露臺1陽臺。 室內布局(以單戶為例)
一層:客廳、餐廳、老人房、廚房、衛生間、后院、禽圈 將老人房布置在一樓,方便老人生活,廚房餐廳相鄰近,功能布局流暢,廚房內設有通向后院的門,既方便又能加快廚房內的氣味散發,保持空氣清新。后院可以種花種菜,還可以飼養家禽,與農村生活習慣契合。
二層:起居室(帶陽臺)、小孩房(帶露臺)、臥室×2、衛生間 二樓共設有3間臥室,小孩房帶有露臺,延伸臥室的空間,為小孩提供更休閑開闊的娛樂場地。還設有起居室,并帶有陽臺,方便賞景和晾曬。 圖紙之家-專注農村別墅/自建房設計18年,集合國內200余位經驗豐富的設計師,被評為口碑最好的農村建筑設計公司! |

面寬17米農村實用自建房一層別墅設計圖,簡約大氣經濟時尚
占地:192.94平方米
10米×12米30萬以內農村建房三層豪華歐式別墅圖,處處顯品味
占地:120平方米
120平方米新農村全套二層施工設計圖紙大全11X11米
占地:120平方米
新農村復試兩層半樓房設計圖,帶大露臺,簡單經濟實用大氣
占地:190平方米
農村二層住宅設計圖,大窗戶客廳,一起享受大面積采光的溫暖
占地:220平方米
簡單實用農村自建四層小別墅設計圖(三層半),95平米
占地:95平方米
帶架空層的三層農村別墅設計火了!雨季不怕返潮
占地:147.15平方米
80平方米二層房屋設計圖,造價10萬左右
占地:80平方米
新農村田園風格兩層半別墅設計圖,外觀造型非常漂亮
占地:147.8平方米
230平米歐式帶地下室三層自建別墅設計施工圖紙及效果圖
占地:230平米
新農村兄弟合建三層雙拼房屋設計方案圖,開間18米有全套圖紙
占地:237.21平方米
農村別墅220-240平米的雙拼自建房設計圖,屋頂帶老虎窗
占地:220平方米
140平三層自建房別墅設計圖,外觀圖大氣、美觀
占地:140平方米
農村兩層新中式別墅圖紙設計圖,外觀圖片大氣,21萬左右
占地:108平方米
豪華別墅設計圖紙(含效果圖),三層歐式別墅方案精選
占地:117平方米
經典三層雙拼房屋設計圖,帶效果圖,戶型好,單戶面積120
占地:240平方米
占地130平方米二層鄉村別墅自建房圖紙設計圖,效果圖好看
占地:131.658平方米
150平米簡單大方的三層農村自建房設計圖,坡層頂,色彩鮮明,布
占地:150平方米
最火現代風三層半別墅設計圖,時尚簡約寬敞舒適
占地:169平方米
一層帶閣樓農村別墅設計圖,多得一層可變空間,太值了!
占地:165.89平方米
推薦:10套新農村自建房設計圖,2026年最新設計
閱讀次數:4825737次
100套鄉村別墅圖片大全,2026年最新設計
閱讀次數:2492203次
6款農村蓋一層平房的設計圖,10萬元就能建起來
閱讀次數:1852637次
這11個一層農村自建房別墅火爆了朋友圈!我最喜歡戶型十!你呢
閱讀次數:750268次
農村6萬元建一層小別墅圖,你敢相信嗎
閱讀次數:567686次
農村5萬塊就能自建房,6套普通房子設計圖分享,你沒看錯!
閱讀次數:419410次
8套農村漂亮三間平房圖片,非常適合在農村修建!
閱讀次數:411197次
農村自建房化糞池怎么做?附方案及施工過程
閱讀次數:391783次
農村一層三間平房設計圖,告別土氣養老房,讓人忍不住點贊
閱讀次數:350581次
新農村二層樓房圖片造價12萬,挑一套回家建房吧!
閱讀次數:349126次
