
|
我們現在的農村住宅大多建于解放時期或者七八十年代,隨著城鄉生活水平的提高,居住環境也面臨著更新和優化;今天“圖紙之家”整理出10套適合農村人自建的20萬農村小別墅,布局合理樣式美觀,造價不高,施工方便,收藏了回家去蓋。 ▼ 戶型一 長 X 寬:12X11米 建筑面積:233平方米 平面布局圖:
戶型二 長 X 寬:17.8X11米 建筑面積:222平方米
戶型三 長 X 寬:11.4X13.7米 建筑面積:251平方米 戶型四 長 X 寬:14X10米 建筑面積:220平方米 戶型五 長X寬:13X12米 建筑面積:314平方米 戶型七 長X寬:8.7X13.3米 建筑面積:222平方米 戶型八 長X寬:13×12.3米 建筑面積:267.7平方米 戶型九 長X寬:12.5X11.1米 建筑面積:227.4平方米 戶型十 長X寬:19X18.5米 建筑面積:272平方米
轉載請注明出自別墅設計網:http://www.bjcyqiyejia.com/ 千套別墅設計帶別墅圖片 |

左右對稱的歐式高端三層別墅設計圖,外觀氣派、豪華
占地:200平方米
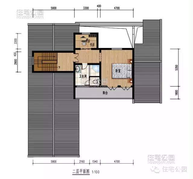
110平方米新農村二層別墅設計圖及效果圖,12.36x9.36米
占地:115平方米
130平左右三層樓房設計圖,新農村住宅自建推薦
占地:128平方米
農村一層四間平房設計圖方案,含外觀圖片,預算10萬
占地:190平方米
三層現代平頂別墅,簡約時尚百看不厭,外觀到布局都令人驚艷!
占地:125.142平方米
160平方米農村二層四合院別墅設計圖及外觀圖片
占地:158平方米
70平農村小戶型二層別墅設計圖,小宅基地的福音
占地:70平方米
鄉村最美三層別墅設計圖自建房戶型,外觀圖精致漂亮
占地:134平方米
170平方米農村二層小別墅設計圖及效果圖
占地:170平方米
現代別墅設計圖紙帶效果圖,85平、100平、145平三個戶型方案
占地:多種戶型
二層美式自建別墅設計圖,全套施工圖+外觀效果圖
占地:145平方米
經典農村三層樓房設計圖,10個不同尺寸戶型,各種戶型供您選擇
占地:多種
農村大氣四層樓房圖片及全套設計圖紙,復式客廳旋轉樓梯
占地:143平方米
新中式農村自建二層別墅設計圖,占地160平米左右,客廳中空
占地:160平方米
歐式三層小洋樓設計圖,外觀氣派,典雅、高貴
占地:145平方米
高端大氣中式四合院二層別墅小樓設計圖,外觀古香古色
占地:213平方米
10萬農村別墅設計圖小戶型,經濟、耐看、實用
占地:多種戶型
獨棟三層樓房設計圖紙及效果圖,農村蓋房推薦
占地:125平方米
舒適大方三層房屋設計圖紙及圖片,占地150平米,布局合理,臥室
占地:150平方米
歐式大戶型三層農村房屋設計圖紙,歐式住宅圖推薦
占地:178平方米
11×10造價25萬帶神位平頂三層自建房設計圖
閱讀次數:29678次
2021年最流行的10套經典農村別墅,最愛那一套?
閱讀次數:25940次
進深8.5米,開間12米,帶堂屋的樓房設計圖怎么做?
閱讀次數:23817次
18萬搞定的農村二層別墅,詳細施工過程實拍!含別墅設計圖!
閱讀次數:17744次
5款帶落地窗的農村別墅,大氣的別墅就應該是這個樣子
閱讀次數:17217次
15套2017年最新潮二層農村別墅,這樣蓋既實用又上檔次!
閱讀次數:12834次
2021農村建的最多的2款二層小別墅戶型,爆款是有理由的
閱讀次數:11876次
農村自建房這樣預埋水電管,老師傅說規范又實用
閱讀次數:11471次
9X12米二層農村別墅,不超過規定面積還能有小院
閱讀次數:10618次
農村自建房打地基的費用是多少,需要注意哪些問題?
閱讀次數:10549次
