
|
農村蓋房子也要走一個流程,什么時候蓋合適,房屋的結構類型怎么選,紅磚水泥砂石,這些基礎的建房材料要貨比三家。還有更重要的一步,那就是圖紙怎么弄,雖說現在網上有很多免費圖紙可以下載,但都沒有圖紙之家的好,所以蓋房子找圖紙,最好還是去圖紙之家里找比較合適。 還是來看看今天的這一棟現代風格的房子是什么樣的吧,利落分明的建筑形態讓別墅有了一絲新趣味,圍欄陽臺完美融合在一起,更顯別墅不俗的質感。
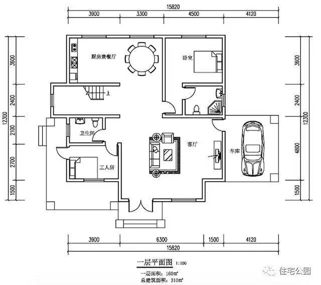
平面布局圖: 首層布局設計了客廳車庫廚房臥室,按照現在流行的生活方式,廚房一體化設計,加大了空間闊度;東側的臥室設計帶有獨立衛生間,可讓家中老人生活在此,很是方便。
二層布局帶有三間臥室一間偏廳,同時帶有雙露臺設計,保證居室內擁有穩定的光照;西側的茶室作為休閑空間,連接外向露臺,更加適用于農村人的生活。
轉載請注明出自別墅設計網:http://www.bjcyqiyejia.com/ 千套別墅設計帶別墅圖片 |

農村15萬元二層小樓圖,占地100平米左右,簡單實用,戶型合理
占地:100平方米
新農村二層半房屋設計圖紙及效果圖,別墅設計圖精選
占地:113平方米
帶獨立廚房的二層自建房設計圖,大戶型方案
占地:233平方米
帶車庫簡約二層小別墅房屋設計圖紙,占地120平米,彎彎的樓梯打
占地:120平方米
二層半房子設計圖及效果圖,客廳中空,南北通透
占地:160平方米
農村新中式別墅設計圖及效果圖,造價25萬左右
占地:95平方米
最新小別墅設計圖,復式三層,外觀非常漂亮
占地:158平方米
復式客廳挑空三層別墅設計圖,帶外觀效果圖片,推薦
占地:150平方米
農村18萬元二層小樓圖,占地120平面,戶型緊湊合理
占地:120平方米
最新三層農村別墅設計圖紙,推薦農村自建
占地:106平方米
兩層半20多萬復式農村自建房設計圖,經典不過時戶型
占地:120平方米
175平方米二層別墅設計CAD圖紙及效果圖大全,中式風格
占地:175平方米
農村中式二層雙拼四合院別墅設計圖,兄弟父母三戶典雅大氣
占地:360平方米
農村四層樓房設計圖及外觀效果圖,造價60萬左右
占地:163.84平方米
2021最受歡迎的三層農村小別墅設計圖紙,占地155平方米
占地:155平方米
二層平頂別墅設計圖,漂亮經濟實用二層農村小別墅最新房屋設計
占地:多種戶型
最新歐式三層別墅設計圖紙,超漂亮,預算30到40萬
占地:160平方米
最新農村20萬元二層半別墅設計圖,占地僅110多平
占地:110平方米
最好看大氣的豪華三層樓房設計圖,客廳中空,旋轉樓梯
占地:340平方米
戶型經典的鄉村雙拼別墅房屋設計圖,帶外觀效果圖片
占地:192平方米
11×10造價25萬帶神位平頂三層自建房設計圖
閱讀次數:29678次
2021年最流行的10套經典農村別墅,最愛那一套?
閱讀次數:25940次
進深8.5米,開間12米,帶堂屋的樓房設計圖怎么做?
閱讀次數:23817次
18萬搞定的農村二層別墅,詳細施工過程實拍!含別墅設計圖!
閱讀次數:17744次
5款帶落地窗的農村別墅,大氣的別墅就應該是這個樣子
閱讀次數:17217次
15套2017年最新潮二層農村別墅,這樣蓋既實用又上檔次!
閱讀次數:12834次
2021農村建的最多的2款二層小別墅戶型,爆款是有理由的
閱讀次數:11876次
農村自建房這樣預埋水電管,老師傅說規范又實用
閱讀次數:11471次
9X12米二層農村別墅,不超過規定面積還能有小院
閱讀次數:10618次
農村自建房打地基的費用是多少,需要注意哪些問題?
閱讀次數:10549次
