
|
房屋基本信息 占地尺寸:14.5X11.6m 占地面積:150m2 建筑面積:280 m2 總高度:9.435m 設計團隊:雅墅名坊建筑團隊 建筑情況:6室3廳3衛1雜物間1儲藏間1廚房1洗衣房1大露臺 建筑特點:該別墅外觀效果圖戶型空間布局緊湊合理,動靜分離,外觀時尚,造型簡約大氣。 效果圖展示:
正立面
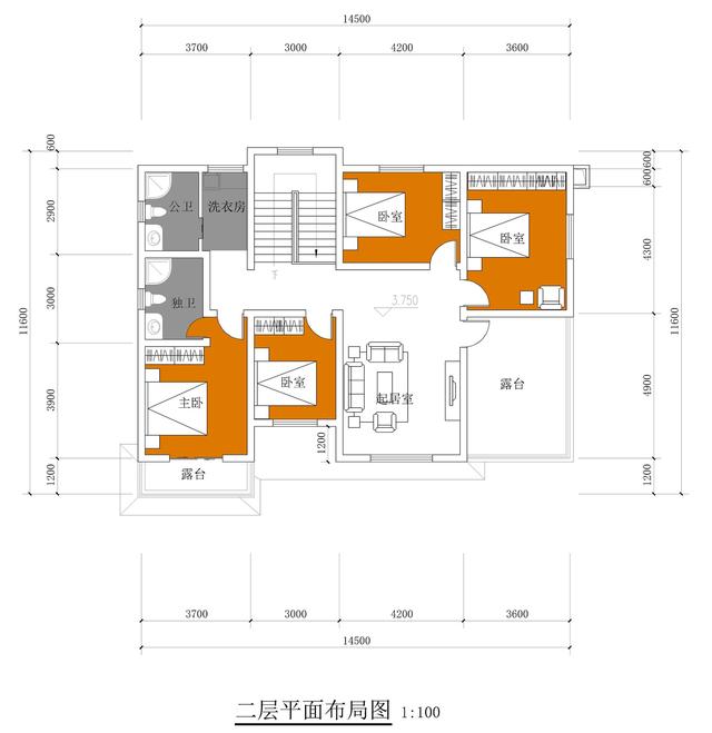
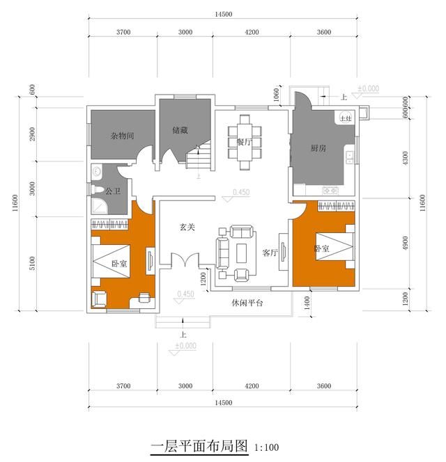
俯視圖 說明: 1、一層入戶處設置了玄關,避免了室外視線對室內的干擾,起到室外向室內的過度的作用,也較多地在別墅上作為風水學等考慮應用。雜物間可作為日常堆放雜物之所,也可作為客房備用使用,廚房考慮廣大農村地區使用習慣設置柴火灶。
如果您也準備建房,找不到建房圖紙,歡迎關注本頭條號,我們會定期分享建房設計施工相關方面的干貨哦。 轉載請注明出自別墅設計網:http://www.bjcyqiyejia.com/ 千套別墅設計帶別墅圖片 |

門廳共用二層歐式兄弟雙拼別墅圖片及施工圖
占地:340平方米
鄉村最美四合院設計圖及外觀效果圖片,國人的理想住宅
占地:280.62平方米
新農村三層房屋設計圖紙大全,新農村住宅圖紙
占地:108平方米
兩戶250平方米農村豪華歐式三層兄弟雙拼別墅設計圖
占地:251平方米
農村10萬元一層小別墅設計圖,農村一層自建房屋設計圖
占地:多種戶型
帶堂屋設計一層5間平房新農村自建別墅效果圖全套施工圖
占地:198.41平方米
農村四層樓房外形設計圖,主臥配有陽臺和衣帽間還有衛生間
占地:126平方米
最新歐式三層別墅設計圖紙,超漂亮,預算30到40萬
占地:160平方米
新農村一層平屋頂簡單自建房別墅設計圖紙,全套設計
占地:130平方米
兄弟合建房新農村三層雙拼別墅建筑圖紙及效果圖,300平方米
占地:301平方米
農村四間三層半雙拼樓設計圖,住三帶人都沒有問題!
占地:270平方米
農村四層樓房設計圖,占地120平方米,歐式風格,高端大氣
占地:120平方米
鄉村兩層半150平帶閣樓別墅房屋設計圖,客廳大、臥室多
占地:150平方米
140平方米一層歐式新農村平房設計圖,主體造價僅11萬
占地:141.218平方米
大戶型高端三層別墅設計圖紙,外觀效果圖+CAD建筑圖
占地:227平方米
110平方米農村三層自建房設計圖紙帶外觀圖
占地:110平方米
預算30萬三層樓房設計圖含效果圖,戶型經典
占地:125平方米
好看又簡單的二層小樓設計圖,農村自建20萬元左右
占地:130平方米
預算造價20萬以內的新農村三層自建房別墅房屋設計圖紙及效果圖
占地:100平方米
農村建房兄弟雙拼三層,經典的歐式風格,大氣的外觀
占地:250平方米
11×10造價25萬帶神位平頂三層自建房設計圖
閱讀次數:29678次
2021年最流行的10套經典農村別墅,最愛那一套?
閱讀次數:25940次
進深8.5米,開間12米,帶堂屋的樓房設計圖怎么做?
閱讀次數:23817次
18萬搞定的農村二層別墅,詳細施工過程實拍!含別墅設計圖!
閱讀次數:17744次
5款帶落地窗的農村別墅,大氣的別墅就應該是這個樣子
閱讀次數:17217次
15套2017年最新潮二層農村別墅,這樣蓋既實用又上檔次!
閱讀次數:12834次
2021農村建的最多的2款二層小別墅戶型,爆款是有理由的
閱讀次數:11876次
農村自建房這樣預埋水電管,老師傅說規范又實用
閱讀次數:11471次
9X12米二層農村別墅,不超過規定面積還能有小院
閱讀次數:10618次
農村自建房打地基的費用是多少,需要注意哪些問題?
閱讀次數:10549次
