
|
建筑層數:農村二層樓房實景圖 建筑高度:9.7m(含屋頂);坡屋頂; 建筑結構:磚混結構;
轉載請注明出自別墅設計網:http://www.bjcyqiyejia.com/ 千套別墅設計帶別墅圖片 |

仿古別墅建筑設計圖,外觀效果圖+全套施工圖
占地:142平方米
漂亮的農村三層小樓房設計圖,簡單大氣,帶車庫
占地:150平方米
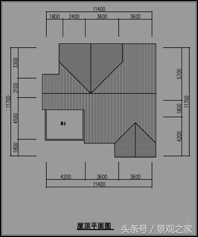
130平方米湖南二層復式自建房屋設計圖紙12x11米
占地:128平方米
95平方米農村四層房屋設計圖,8米X11米 ,預算37萬
占地:95平方米
三層農村自建房別墅設計圖紙,大廳中空,外觀高端大氣
占地:230平方米
高端二層新中式四合院別墅設計圖,含全套CAD施工圖
占地:217平方米
經濟實用二層樓房設計圖紙,功能布局多,12×11米
占地:130平方米
農村簡單雙拼小戶型,簡單適用,客廳中空,總占地210平方米
占地:210平方米
簡單大方二層小別墅設計圖,占地180平米,造型美觀,構造整齊有
占地:180平方米
農村10萬元一層小別墅平房設計圖大全,含效果圖
占地:120平方米
簡單時尚二層住宅設計圖紙,簡單的設計,不平凡的視覺感受
占地:110平方米
農村建房就該選新中式!13X11米新中式三層美宅,經典不過時
占地:130平方米左右
造價30多萬的三層簡歐新農村別墅設計施工圖紙及效果圖
占地:133平方米左右
120平方米新農村房屋設計圖紙,新中式效果圖,3層住宅設計方案
占地:120平方米
新農村自建二層別墅設計圖,帶車庫,簡歐風格
占地:210平方米
農村兄弟倆雙拼別墅房屋設計圖,外觀質樸
占地:195平方米
兄弟四間三層雙拼別墅設計圖,造價40萬左右
占地:210平方米
140平方米三層半新農村房屋別墅設計圖,帶車庫
占地:140平方米
占地70平方米的三層獨棟別墅設計圖,小戶型自建房屋效果圖
占地:70平方米左右
新農村三層自建房屋設計圖,含外觀圖片
占地:136平方米
11×10造價25萬帶神位平頂三層自建房設計圖
閱讀次數:29678次
2021年最流行的10套經典農村別墅,最愛那一套?
閱讀次數:25940次
進深8.5米,開間12米,帶堂屋的樓房設計圖怎么做?
閱讀次數:23817次
18萬搞定的農村二層別墅,詳細施工過程實拍!含別墅設計圖!
閱讀次數:17744次
5款帶落地窗的農村別墅,大氣的別墅就應該是這個樣子
閱讀次數:17217次
15套2017年最新潮二層農村別墅,這樣蓋既實用又上檔次!
閱讀次數:12834次
2021農村建的最多的2款二層小別墅戶型,爆款是有理由的
閱讀次數:11876次
農村自建房這樣預埋水電管,老師傅說規范又實用
閱讀次數:11471次
9X12米二層農村別墅,不超過規定面積還能有小院
閱讀次數:10618次
農村自建房打地基的費用是多少,需要注意哪些問題?
閱讀次數:10549次
