
|
農村建房子,無外乎磚混結構、框架結構,現在也有人會選擇輕鋼結構。不算運費和裝修,毛坯房按市場均價來說,磚混結構毛坯房造價800元左右一平方米,框架結構和輕鋼結構1200元左右一平方米。當然,地區不同,造價相差也會很大。下面這6套獨棟別墅設計,戶型不大,如果35萬左右能將毛坯房建出來,你會建哪座?
第一套:
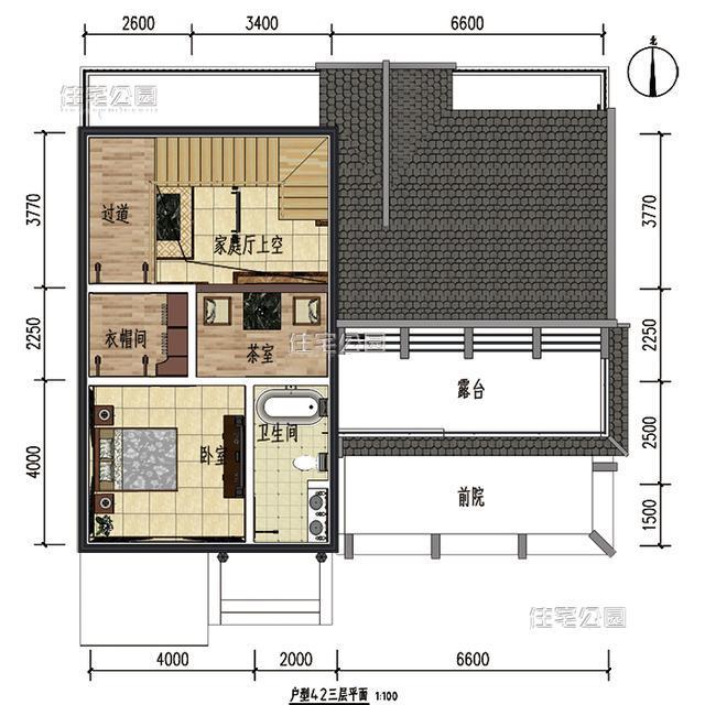
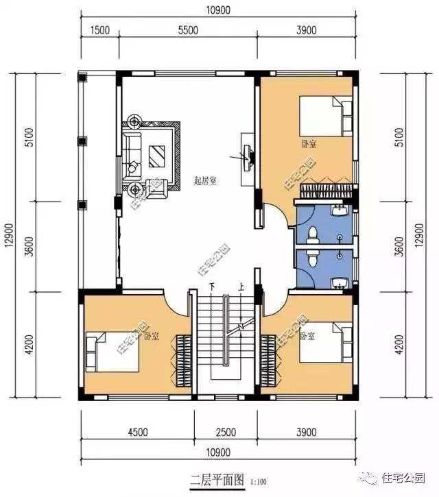
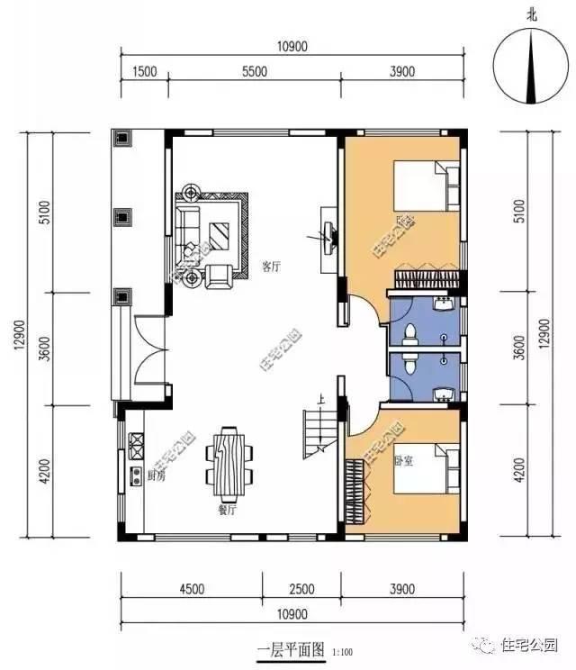
白色的外墻恰當的用一些文化石,房子一下子洋氣起來,同時也起到了很好的藝術裝飾的效果。 360度全景圖展示: 平面布局圖: 此戶型有前院和后院兩個小院,車從前院開入車庫。一層有客廳、廚房和餐廳,東側還有一個有著獨立衛生間和衣帽間的套間做老人房; 二層3個臥室、一個家庭廳,家庭廳是挑空的,每個臥室都有獨立的衛生間設置; 三層有一個獨立的居室,這里有衣帽間、衛生間,也有茶室和露臺,獨立性很好。
此套戶型干凈、清新,白色外墻加一個藍色屋頂,給人以清爽、寧靜之感。 360度全景圖展示: 平面布局圖: 此戶型一層不僅有客廳、廚房、餐廳和老人間,還有一個農具間; 二層有3臥室、1書房、1起居室和一個陽臺,學習、交流亦或是擺放盆栽、養花,都有去處。 三層更注重休閑,除了臥室和起居室外,還有一個活動室和兩個露臺。 第三套:
優美的弧線、筆直的柱子,讓這座兩層半的鄉村別墅既有了柔性之美,又不缺少陽剛之氣。 360度全景圖展示: 平面布局圖: 此戶型一層設:2臥室、1客廳、1餐廳、1廚房; 二層設3臥室、1起居室、2衛生間; 三層設:2臥室、1衛生間、1儲藏室、1大露臺;
這是一套田園風格的二層小別墅,設計師很注重與環境的融合,二層和屋頂都各自設置了大露臺用于觀景,并在二層設計陽光房。 360度全景圖展示: 平面布局圖: 此戶型一層設:2臥室、1堂屋、1挑空客廳、1餐廳、1廚房、1鍋爐房、1衛生間兼洗浴室;
二層設有4臥室、1起居室、1露臺; 坡屋頂平面布局:
此戶型色彩搭配舒適,造型美觀,并帶有一個庭院,通過鐵柵欄還可以看到院內的菜園和花園,生活氣息很濃重。 360度全景圖展示: 平面布局圖: 此戶型一層設:車庫、客廳、玄關、臥室、餐廳、廚房、儲藏室、衛生間;
二層設起居室、主臥、兒童房、書房和衛生間; 三層一個臥室一個備用房和一個大露臺,備用房可根據自家情況來使用。
此套設計采光很好,它的南北通透,并采用弧形采光窗和落地窗的設計,室內光照好,還可以享受飄窗給我們帶來的生活享受。 360度全景圖展示:
平面布局圖: 戶型一層設有車庫、廚房兼餐廳、客廳、書房和一個衛生間; 二層有4個臥室、1衣帽間、1起居室,陽面的兩個臥室有獨立衛生間; 三層兩個臥室、一個衛生間、一個茶室和一個棋牌室,還有一個大露臺; 這6套別墅,你更喜歡哪個呢? 轉載請注明出自別墅設計網:http://www.bjcyqiyejia.com/ 千套別墅設計帶別墅圖片 |

普通農村二層房子設計圖 ,復式結構,帶車庫,占地160平米左右
占地:160平方米
復式200平米三層樓房設計圖紙,大露臺還有健身房和書房
占地:200平方米
農村一層獨棟別墅設計圖,帶閣樓,設計感十足
占地:250平方米
20萬以內二層歐式小別墅設計方案,全套施工圖+效果圖
占地:115平方米
110平方米二層自建小別墅設計CAD施工圖紙帶效果圖,12x13米
占地:110平方米
高端大氣三層歐式別墅設計圖,高檔新款外型圖片美觀時尚
占地:168平方米
100平二層精致小別墅房屋設計圖,外觀精致、漂亮
占地:100平方米
面寬13米二層鄉村自建別墅戶型圖,帶堂屋和露臺
占地:135.47平方米
農村20萬左右三層住房設計圖,小宅基地首選
占地:95平方米
農村建房兄弟雙拼兩層住宅設計圖,單戶150平米左右
占地:300平方米
農村三合院設計圖及效果圖,自建三合院圖紙
占地:470平方米
別致漂亮二層別墅設計圖紙,占地160平米左右,精致的外觀,讓人
占地:160平方米
小型四合院二層別墅設計圖方案,對稱設計,頂層大露臺
占地:114平方米
農村二層帶車庫樓房設計圖,帶外觀效果圖片
占地:125平方米
歐式風格三層別墅建筑設計圖,復式樓中樓結構
占地:138平方米
135平方米新農村三層別墅設計圖紙,外觀效果圖很漂亮
占地:134平方米
爆款120平米三層農村別墅房屋設計圖,室內布局功能齊全,色彩搭
占地:120平方米
農村兩間三層房屋設計圖,含外觀圖片
占地:120平方米
面寬15米的農村三層房屋設計圖,帶別墅效果圖
占地:137平方米左右
兄弟雙拼四間三層別墅設計圖,農村自建推薦戶型方案
占地:260平方米
11×10造價25萬帶神位平頂三層自建房設計圖
閱讀次數:29678次
2021年最流行的10套經典農村別墅,最愛那一套?
閱讀次數:25940次
進深8.5米,開間12米,帶堂屋的樓房設計圖怎么做?
閱讀次數:23817次
18萬搞定的農村二層別墅,詳細施工過程實拍!含別墅設計圖!
閱讀次數:17744次
5款帶落地窗的農村別墅,大氣的別墅就應該是這個樣子
閱讀次數:17217次
15套2017年最新潮二層農村別墅,這樣蓋既實用又上檔次!
閱讀次數:12834次
2021農村建的最多的2款二層小別墅戶型,爆款是有理由的
閱讀次數:11876次
農村自建房這樣預埋水電管,老師傅說規范又實用
閱讀次數:11471次
9X12米二層農村別墅,不超過規定面積還能有小院
閱讀次數:10618次
農村自建房打地基的費用是多少,需要注意哪些問題?
閱讀次數:10549次
