
|
鄉村自建三層別墅19米X11米,堂屋、車庫、旋轉樓梯任你選! 該建筑配備了完善室內暖通施工系統圖 正面外觀效果圖
背面外觀效果圖
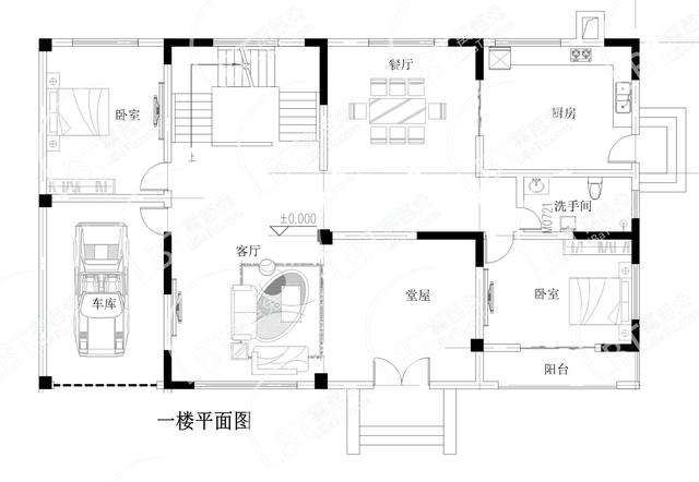
一樓平米布局圖
二樓平米布局圖
三樓平米布局圖 開間:19米、進深:11米 占地面積:216平米 建筑面積:570平米 結構類型:框架結構 考慮到北方居住的實際情況,增加了地暖施工圖紙,住在大西北再也不用擔心冬天冷了。內有堂屋,適合農村祭祖的風俗習慣,客廳和餐廳的配套又有一種大城市的風范。 轉載請注明出自別墅設計網:http://www.bjcyqiyejia.com/ 千套別墅設計帶別墅圖片 |

新農村一層平屋頂簡單自建房別墅設計圖紙,全套設計
占地:130平方米
大戶型高端三層別墅設計圖紙,外觀效果圖+CAD建筑圖
占地:227平方米
中國最美建筑四合院設計圖紙及效果圖,顏值爆棚
占地:152平方米左右
經典小戶型雙拼二層新農村房屋住宅設計圖,含效果圖
占地:80平方米
160平方米二層平屋頂房屋設計圖紙及效果圖17x11米
占地:164平方米
2021年經典新中式三層別墅設計圖紙,新款自建房戶型圖
占地:158.19平方米
135平方米新農村三層別墅設計圖紙,外觀效果圖很漂亮
占地:134平方米
地中海風格二層別墅房屋設計圖,帶外觀效果圖
占地:150平方米
歐式四層(三層半)獨棟別墅設計圖復式,設計豪華時尚
占地:194平方米
農村兄弟雙拼二層四合院別墅設計圖,戶型左右對稱
占地:430平方米
2021帶車庫三層雙拼別墅房屋設計圖,配色淡雅低調
占地:224平方米
120平米簡單實用型農村小別墅設計圖,二層屋頂為全露臺,小開間
占地:120平方米
最新農村20萬元二層半別墅設計圖,占地僅110多平
占地:110平方米
美式田園二層別墅設計方案圖,全套設計圖+效果圖
占地:235平方米
農村三層樓房圖造價26萬,客廳中空,占地90平米
占地:90平方米
50萬左右農村三層別墅設計圖紙,帶大露臺,外觀大氣
占地:150平方米
新中式三層雙拼別墅設計圖及效果圖,中式大氣風格
占地:235.26平方米
農村25萬別墅款式二層自建房設計圖,外觀簡約大氣
占地:多種戶型
農村小戶型三層別墅設計圖,平屋頂,造價20萬左右
占地:80平方米
二層歐式小別墅設計方案,全套建筑設計圖紙+外觀效果圖
占地:146平方米
11×10造價25萬帶神位平頂三層自建房設計圖
閱讀次數:29678次
2021年最流行的10套經典農村別墅,最愛那一套?
閱讀次數:25940次
進深8.5米,開間12米,帶堂屋的樓房設計圖怎么做?
閱讀次數:23817次
18萬搞定的農村二層別墅,詳細施工過程實拍!含別墅設計圖!
閱讀次數:17744次
5款帶落地窗的農村別墅,大氣的別墅就應該是這個樣子
閱讀次數:17217次
15套2017年最新潮二層農村別墅,這樣蓋既實用又上檔次!
閱讀次數:12834次
2021農村建的最多的2款二層小別墅戶型,爆款是有理由的
閱讀次數:11876次
農村自建房這樣預埋水電管,老師傅說規范又實用
閱讀次數:11471次
9X12米二層農村別墅,不超過規定面積還能有小院
閱讀次數:10618次
農村自建房打地基的費用是多少,需要注意哪些問題?
閱讀次數:10549次
