
|
案例基本信息 ? 占地尺寸:11.7x12.3m ? 占地面積:143㎡ ? 建筑面積:268㎡ ? 建筑情況:5室2廳1廚房2衛1餐廳1書房 ? 建筑結構:框架結構 ? 造價估算:31.5萬元
設計說明: 這所農村二層樓房設計圖主體建筑占地12x12米,面積處于適中水平,四周以圍墻圍繞,創造出住宅的一個私密的戶外空間,同時方便停放車輛。 效果圖
別墅深色線腳,分隔一二兩層,通高玻璃窗與門廊立柱拉伸了住宅外觀效果,提升了住宅的奢華氣度。
住宅圍墻三色與建筑主體相搭配,注重細節處理,正面圍墻使用鐵藝柵欄,較為通透,從外界也可以看到別墅的整體,給人舒適的視覺效果。
橘黃色屋頂,提升了建筑整體明艷度,各個坡面處理合理統一。
平面圖 一層入口玄關處可增加隔斷,起到裝飾作用,避免入戶一覽無余。挑高客廳兩面開窗,能保證良好的視野及充足的光線。
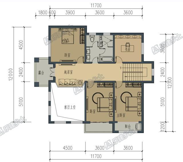
▲ 一層平面圖 二層兩臥室向陽并設置露臺和陽臺,具有舒適的居住體驗,起居室與一層通高客廳形成了良好的互通,空間感豐富。
▲ 二層平面圖 立面圖
▲ 南立面
▲ 北立面
▲ 東立面
▲ 西立面 自建房設計圖的整體造型較穩重、規矩,在露臺、陽臺、通高客廳等處理上追求更高端、舒適的生活體驗。您也想建一座注重細節的住宅么?聯系我們的設計師吧,為您做最周全的考慮。 轉載請注明出自別墅設計網:http://www.bjcyqiyejia.com/ 千套別墅設計帶別墅圖片 |

簡單二層半現代復式別墅設計圖,簡約大氣帶開放車庫
占地:174平方米左右
面寬13米三層新中式獨棟別墅設計圖,復式自建房戶型方案
占地:201.25平方米
適合兄弟自建的二層雙拼別墅設計方案,帶效果圖
占地:180平方米
三層現代平頂別墅,簡約時尚百看不厭,外觀到布局都令人驚艷!
占地:125.142平方米
鄉下120平米二層樓房設計圖,23萬就可以建漂亮別墅
占地:120平方米
現代風格建房圖紙二層別墅設計方案,外觀百看不厭
占地:171.6平方米左右
農村蓋房設計大全一層房子的設計圖紙,色調清新靚麗
占地:220平方米
時尚創意型二層小別墅設計圖,占地面積110平方米,外觀清新典雅
占地:110平方米
共用中堂雙拼兄弟三層別墅設計圖,簡歐式風格
占地:230平方米
大氣豪華四層別墅設計圖紙,占地180平米左右
占地:180平方米
18X12米農村二層溫馨小別墅設計圖,美式風格
占地:203平方米
預算30萬左右的新農村三層房屋設計圖推薦,含外觀效果圖
占地:117平方米
全新農村簡歐風格三層房屋別墅效果圖,110,210兩個戶型,帶電梯
占地:多種戶型
帶車庫現代三層樓房設計圖,外觀效果圖時尚、美觀
占地:160平方米
簡單農村二層自建房子設計圖,主體18萬就能建好,太心動了!
占地:124.53
古典韻味的四層房屋設計圖,占地140平米左右,這樣的外觀配上紅
占地:140平方米
現代風格精致兩層農村自建房住宅設計圖,帶儲藏室
占地:163平方米
新中式農村兄弟合建三層雙拼別墅全套設計圖紙,3款戶型方案
占地:多種戶型
帶開放式車庫二層農村自建別墅設計方案,造價僅15萬
占地:89.412平方米
二層農村小別墅設計圖,造價經濟實惠,參考價30萬以內
占地:140平方米
11×10造價25萬帶神位平頂三層自建房設計圖
閱讀次數:29678次
2021年最流行的10套經典農村別墅,最愛那一套?
閱讀次數:25940次
進深8.5米,開間12米,帶堂屋的樓房設計圖怎么做?
閱讀次數:23817次
18萬搞定的農村二層別墅,詳細施工過程實拍!含別墅設計圖!
閱讀次數:17744次
5款帶落地窗的農村別墅,大氣的別墅就應該是這個樣子
閱讀次數:17217次
15套2017年最新潮二層農村別墅,這樣蓋既實用又上檔次!
閱讀次數:12834次
2021農村建的最多的2款二層小別墅戶型,爆款是有理由的
閱讀次數:11876次
農村自建房這樣預埋水電管,老師傅說規范又實用
閱讀次數:11471次
9X12米二層農村別墅,不超過規定面積還能有小院
閱讀次數:10618次
農村自建房打地基的費用是多少,需要注意哪些問題?
閱讀次數:10549次
