
|
現在農村里興起了一股建房潮流,所以我家也跟上了這股潮流,為了這套房子我準備把我10年的積蓄都拿出來,別人建的那么好看的房子,我也不能比別人差,對吧!接下來就是選圖紙了,我就看中了下面這套別墅,大家覺得怎么樣?對了我分享一下我村里人建的疊拼別墅圖片,大家給點意見。 我村里的首富的房子
這是我看中的別墅效果圖
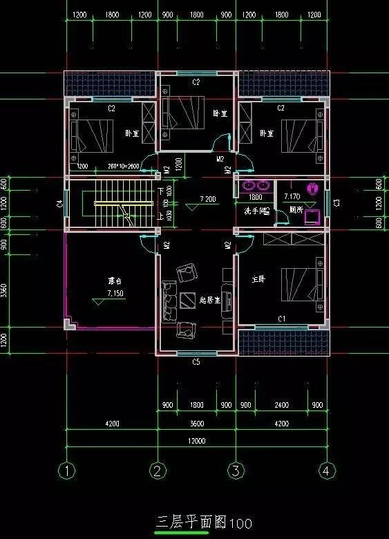
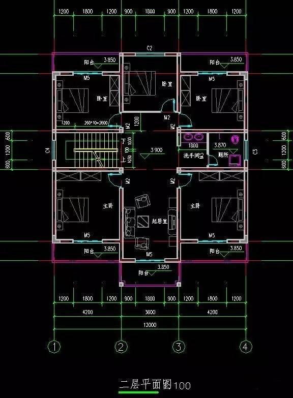
門面寬:12m 進深:12.9m 占地面積:154.8平方米 建筑層數:三層,帶閣樓 建筑高度:13.2米(含屋頂)坡屋頂 結構形式:磚混結構 主體造價:45~49萬,僅供參考 這套別墅怎么樣,相比我村首富的別墅,我會比他的差? 轉載請注明出自別墅設計網:http://www.bjcyqiyejia.com/ 千套別墅設計帶別墅圖片 |

2021最新兄弟簡歐雙拼別墅設計圖紙,單戶130平米左右
占地:260平方米
歐式風格三層自建房設計圖,外觀高端大氣,彰顯業主的高貴品質
占地:180平方米
一層半房屋別墅設計圖,帶閣樓圖、帶露臺,外觀新穎時尚
占地:130平方米
二層四間樓房設計圖及效果圖片大全,帶露臺,外觀時尚
占地:150平方米
一層平房小面積雙拼房屋住宅設計圖,造價低,面積小
占地:130平方米
現代二層別墅房屋設計圖,帶外觀圖片
占地:138平方米
自建三層小洋樓設計圖紙,含效果圖,帶車庫
占地:121平方米
兩層15萬農村自建房設計圖,農村蓋房設計大全圖
占地:130平方米
兩層20萬農村自建房設計圖,經典農村建房款式,越看越有韻味
占地:160平方米
190平方米新農村二層別墅設計圖紙及效果圖大全,14.2x13.5米
占地:190平方米
四層別墅豪宅外觀效果圖及全套施工圖,高端歐式風格
占地:176.97平方米
預算30萬三層樓房設計圖含效果圖,戶型經典
占地:125平方米
鄉村中式四合院二層別墅設計圖,中式韻味十足
占地:223平方米左右
農村兩間兩層樓房設計圖,造價15萬左右,獨立的廚房設計,干凈
占地:95平方米
最漂亮的農村二層小樓設計圖紙,簡約又大氣時尚
占地:120平方米
鄉村高檔四層豪華別墅自建房設計圖,一層不帶餐廳廚房戶型
占地:147平方米
農村四間二層別墅設計方案圖,外觀精致、時尚
占地:152平方米
農村四間二層小洋樓設計圖,歐式別墅、現代洋氣
占地:200平方米
復式200平米三層樓房設計圖紙,大露臺還有健身房和書房
占地:200平方米
三層樓房設計圖紙含效果圖,外觀造型高低錯落,別致大方
占地:152.4平方米
11×10造價25萬帶神位平頂三層自建房設計圖
閱讀次數:29678次
2021年最流行的10套經典農村別墅,最愛那一套?
閱讀次數:25940次
進深8.5米,開間12米,帶堂屋的樓房設計圖怎么做?
閱讀次數:23817次
18萬搞定的農村二層別墅,詳細施工過程實拍!含別墅設計圖!
閱讀次數:17744次
5款帶落地窗的農村別墅,大氣的別墅就應該是這個樣子
閱讀次數:17217次
15套2017年最新潮二層農村別墅,這樣蓋既實用又上檔次!
閱讀次數:12834次
2021農村建的最多的2款二層小別墅戶型,爆款是有理由的
閱讀次數:11876次
農村自建房這樣預埋水電管,老師傅說規范又實用
閱讀次數:11471次
9X12米二層農村別墅,不超過規定面積還能有小院
閱讀次數:10618次
農村自建房打地基的費用是多少,需要注意哪些問題?
閱讀次數:10549次
