
|
今天給大家介紹的這款經濟型別墅設計圖如果看過小編之前發的文章就應該知道小編之前其實介紹過,不過之前只是介紹了平面圖,但是呢,去年湖南的陳先生想要蓋房,看中了這一套圖紙,現在已經完工了,給我們發來了他施工的全過程,所以小編今天也發了出來,希望可以給正在考慮建房的人們一個參考。 別墅效果圖:
主體施工圖: 建房子基礎很關鍵,可是絲毫馬虎不得。首先地基深挖一米,澆10cm的混凝土硬化。
然后開始扎鋼筋,再澆筑60cm的混凝土。
還沒結束,上面還要繼續砌60cm的磚,可以看到9層磚做的大放腳結構。
最后磚上搭建模板,再澆筑40X30的地梁。至此整個基礎包括:10cm素混凝土墊層、60cm高少筋混凝土、大放腳磚基礎以及圈梁。
地基回填整平壓實后,一部分地坪用老房拆除的碎磚塊做墊層,一部分用碎石做墊層,然后綁扎鋼筋澆筑混凝土。
這比直接在土層上澆筑混凝土更防潮、而且減少原土對混凝土的影響,混凝土強度也會更高。
在經過混凝土養護后,基礎部分才算就此完成。
基礎打好了,現開始主體部分建設了,首先當然還是砌墻,門斗柱也是采用磚包柱的形式施工,建成后效果更加大氣!
然后是綁扎樓梯鋼筋、搭建的樓梯模板。
一樓樓板澆筑完成,抹平后當然不能忘了灑水養護。
和一樓樣的的工序:砌二樓墻體,綁扎二樓樓板鋼筋,澆筑混凝土。
澆筑屋頂后,主體結構完成,現在已經能夠看出別墅輪廓。
這一張剛施工完成,還沒有整理現場,加上陰天照片效果并不好。天晴云清的日子來張近照再看。
總有人說效果圖和實際情況是兩回事,這回看到了吧。用心去做房子完全可以比擬效果圖,甚至做的還要更好看!
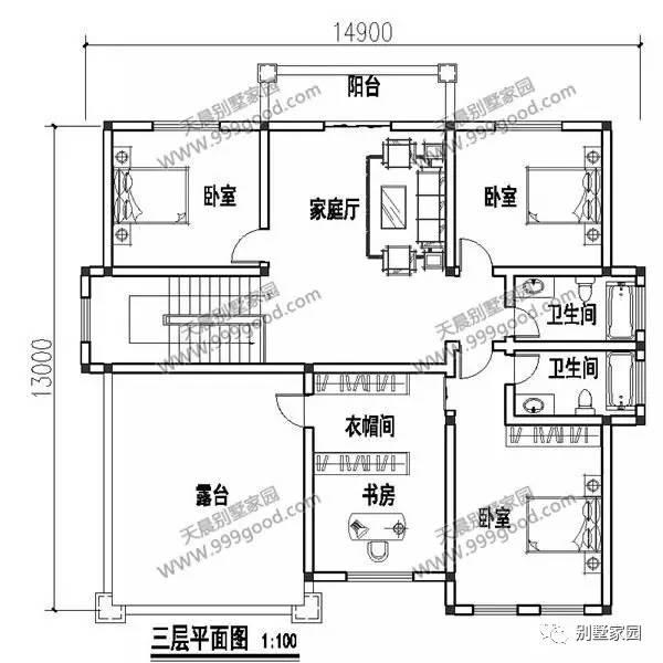
別墅平面圖:
房屋建成,陳先生十分滿意,通過自己的辛勞達到了自己滿意的效果,喜歡的朋友也可以收藏了以后建哦! 轉載請注明出自別墅設計網:http://www.bjcyqiyejia.com/ 千套別墅設計帶別墅圖片 |

帶地下室三層別墅設計圖紙(含外觀效果圖),別墅設計方案
占地:134平方米
大氣自建三層雙拼別墅戶型圖方案,完美的戶型就是它
占地:287平方米
新農村二層自建房設計圖帶外觀圖片,自建戶型大全
占地:160平方米
100平二層精致小別墅房屋設計圖,外觀精致、漂亮
占地:100平方米
135平復式別墅房屋設計圖,外觀時尚、漂亮
占地:135平方米
26萬二層平頂別墅樓設計圖,客廳中空,占地120平米
占地:120平方米
35萬左右的農村小別墅設計圖及效果圖,新中式風格
占地:137平方米
130平方米湖南二層復式自建房屋設計圖紙12x11米
占地:128平方米
農村二層小洋樓設計圖,帶外觀效果圖,外觀新穎,漂亮
占地:130平方米
125平方米復式三層別墅房屋設計圖,房間多,采光好
占地:125平方米
開間8米的小戶型二層別墅設計圖,2開間占地不到60平
占地:56平方米左右
140-150平方米新農村別墅設計圖紙,帶外觀效果圖,復式戶型
占地:146平方米
最新高端四層別墅外觀效果圖及全套設計圖,真土豪就這樣建
占地:174.08平方米
倆兄弟蓋房子的雙拼設計圖,小宅基地設計方案
占地:151.91平方米
獨棟三層樓房設計圖紙及效果圖,農村蓋房推薦
占地:125平方米
90平方米農村二層房屋設計施工圖紙及效果圖,11x8.5米
占地:90平方米
最新三層農村別墅設計圖紙,推薦農村自建
占地:106平方米
7.8X12.3米小面寬自建房設計,兩開間二層半,好看不貴
占地:96平方米左右
120平方米帶地下室三層復式別墅戶型圖,現代風格
占地:120.78平方米左
農村二層樓房設計圖紙,含全套設計方案(施工圖+效果圖)
占地:98平方米
11×10造價25萬帶神位平頂三層自建房設計圖
閱讀次數:29678次
2021年最流行的10套經典農村別墅,最愛那一套?
閱讀次數:25940次
進深8.5米,開間12米,帶堂屋的樓房設計圖怎么做?
閱讀次數:23817次
18萬搞定的農村二層別墅,詳細施工過程實拍!含別墅設計圖!
閱讀次數:17744次
5款帶落地窗的農村別墅,大氣的別墅就應該是這個樣子
閱讀次數:17217次
15套2017年最新潮二層農村別墅,這樣蓋既實用又上檔次!
閱讀次數:12834次
2021農村建的最多的2款二層小別墅戶型,爆款是有理由的
閱讀次數:11876次
農村自建房這樣預埋水電管,老師傅說規范又實用
閱讀次數:11471次
9X12米二層農村別墅,不超過規定面積還能有小院
閱讀次數:10618次
農村自建房打地基的費用是多少,需要注意哪些問題?
閱讀次數:10549次
