
|
農村自建房的設計在農村已經漸漸成熟,那些外觀高端大氣獨特的設計讓人第一眼看去就很喜歡,而就在這兩年農村自建房雙拼房好像到處可見,不再是很單薄的一棟小別墅。在農村自建房也不需要那么麻煩,農村的雙拼別墅常見也是情理之中,因為雙拼的 建筑很適合兄弟姐妹一起建,這樣可以凝聚一家人的親情,互相幫助。 首先雙拼別墅就是由兩個單元的別墅拼聯組成的獨棟別墅,它是聯排別墅與獨棟別墅之間的中間產品。它有寬闊的室外空間。那都有那些讓人一見鐘情的雙拼別墅設計呢? 一、中式風格的兩層雙拼洋房 這是一棟中式風格的兩層雙拼洋房,青磚白墻搭配木質欄桿和樓柱特別有古樸韻味,結合了現代的玻璃推窗中西結合的氣質真的是讓人第一眼就會愛上的設計。
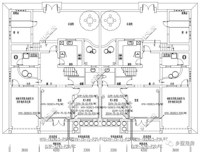
這是別墅兩層的平面設計圖紙,左右設計是一樣的,一樓有個老人房,在農村老人房還是比較有必要的,因為上下樓對年紀大的老人來說畢竟還是存在安全隱患的,有個后庭院和天井。
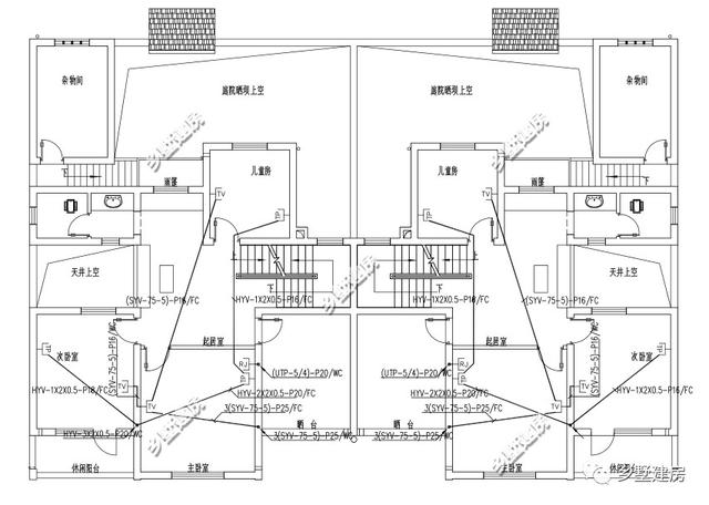
此棟別墅臥室不多都在二樓,二樓還有一個起居室和兒童房,可以說是非常適合在農村建的別墅了。
二、歐式風格的四層別墅 這是一棟歐式風格的四層別墅,帶院子花壇和游泳池的別墅,不說別的就只是從外觀上看就可以感受到住在這棟別墅里面幸福指數超高,房前屋后都是 花草樹木,在農村可以說是處處鳥語花香了。
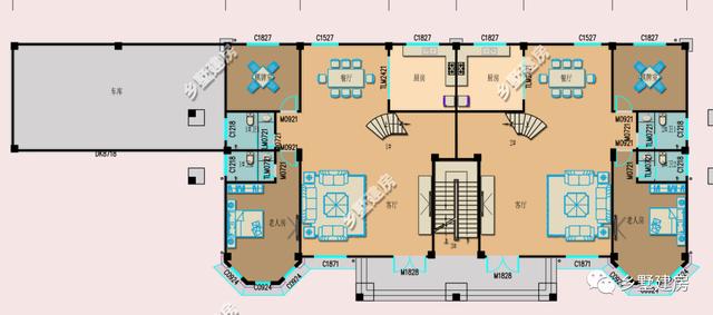
這是雙拼別墅的四層平面設計圖,最左邊是一個很大的車庫。
一樓進門是客廳,做了挑空的設計,還做了一個老人房,給老人方便,不用上下樓梯,除了廚房餐廳衛生間以外還做了一個棋牌室,平常休閑娛樂以外過年過節親朋好友多了還是很好的。
二樓有個客廳的鏤空,然后臥室都設在了二三樓,三樓還有個起居室。
四樓的空間兩邊都連在一起,做了個水池,蓄水共兩家起居使用,還有很大的空間預留了一間房間可以設計自己喜歡的樣子,書房也好,KTV房也好,健身房也好,自由發揮。剩下的空間做了一個大露臺,在農村晾曬海慧寺很方便的,或者做個涼亭,可以在休閑的下午喝杯咖啡欣賞一下鄉間的美好。
不知道你第一眼鐘情了哪棟別墅呢? 轉載請注明出自別墅設計網:http://www.bjcyqiyejia.com/ 千套別墅設計帶別墅圖片 |

140平歐式二層半帶露臺的獨棟別墅圖片,含全套設計圖
占地:140平方米
時尚漂亮的二層小洋樓設計圖,設計師建房都選這個方案
占地:149.27平方米
最漂亮的一層平房圖片及設計圖,造價18萬左右,結構簡單易于施
占地:186平方米
二層帶地下室樓房設計方案,效果圖+全套施工圖
占地:160平方米
大氣農村三層歐式雙拼別墅全套施工圖紙,帶堂屋設計,外觀圖片
占地:196.056平方米
新農村三層房屋設計圖紙(含效果圖),農村小別墅圖紙推薦
占地:116.15平方米
帶小院新農村房屋設計圖紙,三層別墅推薦
占地:115平方米
農村40萬房子圖片外觀設計效果圖,帶地下室,外觀時尚大氣
占地:110平方米
新農村帶陽臺三層樓房圖紙,占地180平米左右,豪華大氣
占地:180平方米
120平方米新農村房屋設計圖紙,新中式效果圖,3層住宅設計方案
占地:120平方米
155平方米自建二層CAD房屋設計圖紙及效果圖,13X12米
占地:156平方米
農村2021新式好看又簡單的二層樓房設計圖,外形美觀,家用足夠
占地:200平方米
新中式農村三層樓房設計圖,帶地下室,主體建筑面積110平米
占地:110平方米
最美建筑四合院別墅設計方案,大氣經典,開間19米
占地:168.61平方米
一層5間歐式平房小洋樓建筑設計圖紙,大戶型一層別墅戶型
占地:216平方米
120平方米現代二層半自建房屋設計圖紙,帶閣樓12x10米
占地:120平方米
新農村三層小別墅設計圖紙,占地160平左右,好看不貴
占地:160平方米
農村三層半自建房子效果圖及設計圖,戶型占地90平方米左右
占地:92.17平方米
二層新農村自建房設計圖,帶外觀效果圖
占地:140平方米
現代風格建房圖紙二層別墅設計方案,外觀百看不厭
占地:171.6平方米左右
11×10造價25萬帶神位平頂三層自建房設計圖
閱讀次數:29678次
2021年最流行的10套經典農村別墅,最愛那一套?
閱讀次數:25940次
進深8.5米,開間12米,帶堂屋的樓房設計圖怎么做?
閱讀次數:23817次
18萬搞定的農村二層別墅,詳細施工過程實拍!含別墅設計圖!
閱讀次數:17744次
5款帶落地窗的農村別墅,大氣的別墅就應該是這個樣子
閱讀次數:17217次
15套2017年最新潮二層農村別墅,這樣蓋既實用又上檔次!
閱讀次數:12834次
2021農村建的最多的2款二層小別墅戶型,爆款是有理由的
閱讀次數:11876次
農村自建房這樣預埋水電管,老師傅說規范又實用
閱讀次數:11471次
9X12米二層農村別墅,不超過規定面積還能有小院
閱讀次數:10618次
農村自建房打地基的費用是多少,需要注意哪些問題?
閱讀次數:10549次
