
|
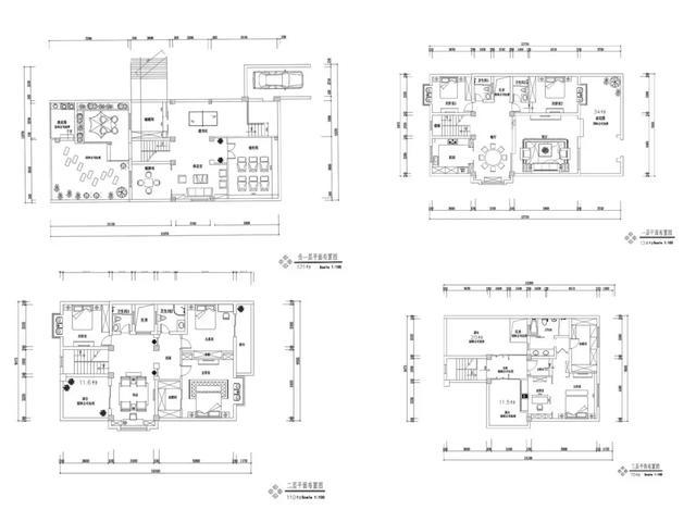
客廳
超大的客廳是為了周末兒女回家一起聊聊家常,聊聊工作
大客廳可以容納家里人一起洽談
餐廳選擇則地面抬高,使空間富有層次感
空間各色彩點翠,使空間看著更精彩 餐廳
圓桌容納一家人一起進餐
入戶后一個玄關,規避了穿堂風水問題,又不影響空間的動線
二樓一個開放書房,一家人可以在這里各自展示自己的才華,各顯身手,陶冶情操
二樓做了一根假柱,讓過道兩邊對稱,且以一幅畫作為了端景,是空間更加完美 臥室
二樓的主臥室配上一個休閑茶桌,兩個人在一起喝喝茶,聊聊家常
二樓臥室還配置了一個床尾凳
主臥配上套內書房,讓主人可以在早上起來練練書法,寫寫字 衛生間
超大洗漱區域,使三樓主臥的洗漱區也看著非常大氣
三樓主臥室配上浴缸,就算是洗浴也不忘享受
平面圖 轉載請注明出自別墅設計網:http://www.bjcyqiyejia.com/ 千套別墅設計帶別墅圖片 |
一層中式仿古三合院設計圖,實用又大氣,百年不過時
占地:366.67平方米
130平帶閣樓兩層半別墅房屋設計圖,含外觀效果圖
占地:130平方米
新中式農村自建三層別墅房屋施工,12x10米簡潔雅致
占地:121.77平方米
中式四合院風格別墅設計圖,平屋頂,書房、茶室、健身房一應俱
占地:370平方米
辦公居住共用的一層別墅設計圖,簡約優雅,精致生活新體驗
占地:265.3平方米
200平方米農村二層中式四合院設計圖,含外觀圖片
占地:200平方米
獨立餐廳廚房,平屋頂現代風格三層別墅設計圖
占地:159.02平方米
私人二層農村小樓設計圖,外觀靚麗,富有現代氣息
占地:160平方米
130平方米歐式實用農村二層樓別墅圖紙帶外觀圖12X13米
占地:132平方米
35萬內三層自建別墅設計圖,外觀美觀,戶型舒適
占地:135平方米
3款挑空客廳的二層小樓房設計圖,款款漂亮
閱讀次數:48516次
立邦油漆哪個系列好?小編一一對比分析
閱讀次數:31501次
2024十大環保油漆,中國十大環保油漆排名榜
閱讀次數:11505次
手上的油漆怎么洗-快速洗掉油漆小竅門
閱讀次數:7981次
無味油漆到底對人有沒有害?真實曝光
閱讀次數:7922次
8款不同風格樓梯設計效果圖,我最喜歡第8款
閱讀次數:7024次
立邦油漆價格表,立邦油漆一般多少錢一桶?
閱讀次數:6809次
為大家分享一套兩層農村自建房裝修案例,15萬搞定裝修
閱讀次數:6111次
2024年紫荊花油漆價格一般是多少錢一桶?品牌怎么樣
閱讀次數:6012次
嘉寶莉油漆價格一般是多少錢一桶?
閱讀次數:5765次
