
|
婚房的準夫妻為自己的小窩,選用了宜家風的北歐風格,簡單又有創意,每個小擺件都會有生命,平靜且安然 。 戶型:116平三室 設計風格:簡歐風格 裝修模式:669套餐 全包造價:11萬
客餐廳
電視背景墻
餐廳
走道背景墻
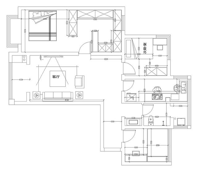
戶型布局方案
臥室 轉載請注明出自別墅設計網:http://www.bjcyqiyejia.com/ 千套別墅設計帶別墅圖片 |
占地200平米時尚現代三層農村別墅設計圖,簡簡單單百看不厭
占地:202.95平方米
110平米一層小別墅設計方案,布局四室兩廳一廚兩衛
占地:110.5平方米
農村二層半兄弟共建房別墅設計圖,復式戶型帶車庫,面寬24米
占地:312平方米左右
130平米新農村自建房屋施工建筑圖紙及效果圖
占地:132平米
面寬不到10米的小戶型自建房戶型圖,全套設計圖紙可施工
占地:123.2平方米左右
農村三層雙拼別墅戶型圖設計圖,整體外觀氣派
占地:220平方米
架空層的一層三合院別墅設計圖紙,這樣設計太贊了
占地:172.06平方米
四層豪華別墅設計圖及效果圖,高端房屋設計方案
占地:250平方米
人氣頗高的三層新中式別墅方案,五種戶型,五種尺寸
占地:120-165平方米
三層小別墅40萬造價,大氣農村三層新中式自建房設計圖紙
占地:171.656平方米
3款挑空客廳的二層小樓房設計圖,款款漂亮
閱讀次數:48516次
立邦油漆哪個系列好?小編一一對比分析
閱讀次數:31501次
2024十大環保油漆,中國十大環保油漆排名榜
閱讀次數:11505次
手上的油漆怎么洗-快速洗掉油漆小竅門
閱讀次數:7981次
無味油漆到底對人有沒有害?真實曝光
閱讀次數:7922次
8款不同風格樓梯設計效果圖,我最喜歡第8款
閱讀次數:7024次
立邦油漆價格表,立邦油漆一般多少錢一桶?
閱讀次數:6809次
為大家分享一套兩層農村自建房裝修案例,15萬搞定裝修
閱讀次數:6111次
2024年紫荊花油漆價格一般是多少錢一桶?品牌怎么樣
閱讀次數:6012次
嘉寶莉油漆價格一般是多少錢一桶?
閱讀次數:5765次
