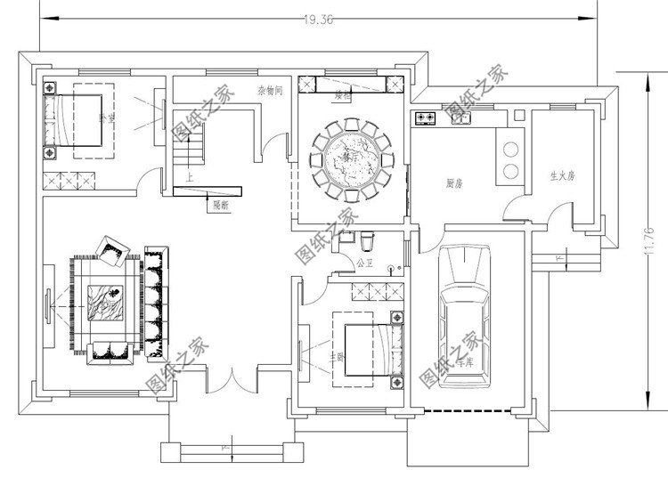
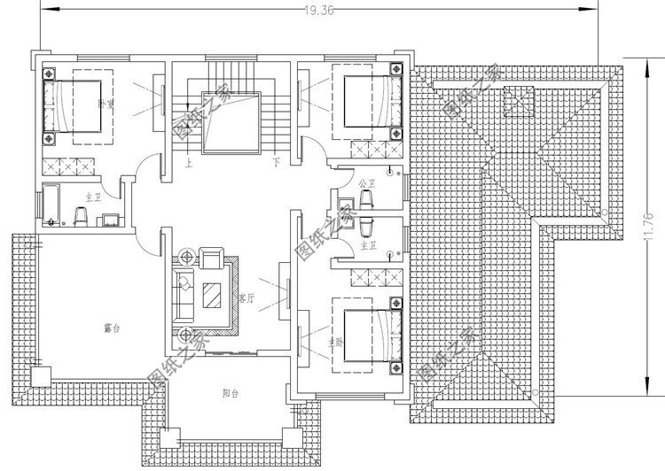
圖紙介紹:農村二層小5間新中式自建房設計圖,帶柴火房(配房)和車庫二層小別墅外觀圖,老家建一棟,農村生活樂悠悠。褐色面磚點綴暖黃色外墻面磚,古樸大氣。多窗的設計利于室內通風,保證采光;方形羅馬柱搭配嵌入式裝飾,別出心裁又不失莊重。灰色坡屋利于排水散熱,提升整體質感。一層大廳寬敞透亮,土灶房與室內廚房分開,干凈衛生。土灶房和后門可以通向后院,適合農村的生活需求。二層三個臥室,一個休息廳,一個露臺,一個陽臺。功能布置齊全,滿足家中各人年齡段的人使用需求。
占地面積:19.36m*11.76m,202.99平方米左右;
建筑層高:二層;
建筑高度:9.425米(含屋頂);
設計功能:
一層戶型:客廳、廚房、餐廳、生火房、雜物間、車庫、臥室x2、衛生間;
二層戶型:客廳、臥室(帶衛生間)x2、臥室、衛生間、陽臺、露臺;
圖紙目錄:
建 筑 圖:建筑設計說明、一層平面圖、二層平面圖、屋頂平面圖、正立面圖、背立面圖、左立面圖、右立面圖、1-1剖面圖、樓梯大樣圖、門斗大樣圖、節點大樣圖、門窗詳圖、門窗表等;
結 構 圖:結構設計說明、基礎平面布置圖、基礎大樣圖、一層梁結構平面圖、二層梁結構平面圖、屋頂梁結構平面圖、二層板結構平面圖、屋面板結構平面圖、樓梯大樣圖、節點大樣圖等;
給排水圖:給排水設計說明、一層給排水平面圖、二層給排水平面圖、屋頂給排水平面圖、衛生間大樣圖、給排水系統圖等;
電 氣 圖:電氣設計說明、配電系統圖、弱電系統圖、配電干線系統圖、一層照明平面圖、二層照明平面圖、一層插座平面圖、二層插座平面圖、一層弱電平面圖、二層弱電平面圖、接地平面圖、屋頂防雷平面圖等;
































































































