圖紙介紹:本戶型為新農村二層住宅設計圖,外觀素凈,精致,本戶型帶車庫(如果不需要車庫,施工過程中讓施工隊做成臥室,不需要改圖紙,施工隊都可以做的)。
占地面積:12.3m*9.4m,115平方米左右;
建筑層高:二層;
建筑高度:9.48米(含屋頂);
設計功能:
一層別墅戶型:堂屋、客廳、廚房、餐廳、衛生間、車庫(可以改成臥室);
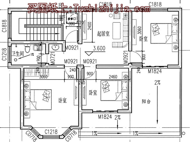
二層別墅戶型:起居室、臥室x3、衛生間、露臺;
圖紙目錄:
建筑圖:建筑施工圖目錄、建筑設計說明、一層平面圖、二層平面圖、屋頂平面圖、正立面圖、背立面圖、左立面圖、右立面圖、1-1剖面圖、樓梯大樣圖、門斗大樣圖、節點大樣圖、門窗表等;
結構圖:建筑施工圖目錄、結構設計總說明、基礎平面布置圖、基礎大樣圖、一層梁結構平面圖、二層梁結構平面圖、屋頂梁結構平面圖、二層板結構平面圖、屋面板結構平面圖、樓梯大樣圖、節點大樣圖等;
給排水圖:給排水圖目錄、給排水設計說明及圖例、給排水平面圖、給水系統圖、排水系統圖、衛生間排水大樣圖、給排水系統圖等;
電氣圖:電氣圖目錄、電氣設計說明、等離子電位做法、強電系統圖、弱電系統圖、照明布置圖、插座布置圖、基礎接地布置圖、屋頂防雷布置圖等;
本套圖紙含全套A3設計圖+高清效果圖,拿到即可施工。

































































































