圖紙介紹:145平方米現代二層自建房屋設計CAD圖紙帶外觀效果圖,這款別墅經濟實用,帶車庫設計,主體造價都在30萬以內,功能布局合理,人車分流,潔凈分開,空間利用率高,適用于大部分農村建房使用。
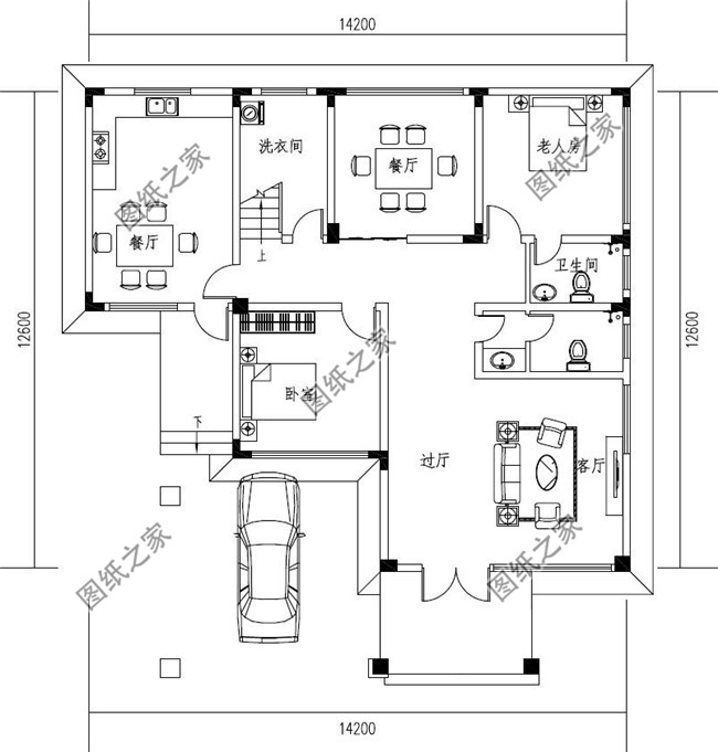
占地面積:14.2m*12.6m,145平方米左右;
建筑層高:二層;
建筑高度:9.95米(含屋頂);
設計功能:
一層戶型:過廳、客廳、廚房、餐廳、洗衣間、老人房、臥室、衛生間x2、車庫;
二層戶型:客廳、書房、臥室(帶衛生間)、臥室、衣帽間、衛生間、露臺;
圖紙目錄:
建 筑 圖:建筑設計說明、一層平面圖、二層平面圖、屋頂平面圖、正立面圖、背立面圖、左立面圖、右立面圖、1-1剖面圖、樓梯大樣圖、門斗大樣圖、節點大樣圖、門窗詳圖、門窗表等;
結 構 圖:結構設計說明、基礎平面布置圖、基礎大樣圖、一層梁結構平面圖、二層梁結構平面圖、、屋頂梁結構平面圖、二層板結構平面圖、屋面板結構平面圖、樓梯大樣圖、節點大樣圖等;
給排水圖:給排水設計說明、一層給排水平面圖、二層給排水平面圖、屋頂給排水平面圖、衛生間大樣圖、給排水系統圖等;
電 氣 圖:電氣設計說明、配電系統圖、弱電系統圖、配電干線系統圖、一層照明平面圖、二層照明平面圖、一層插座平面圖、二層插座平面圖、一層弱電平面圖、二層弱電平面圖、接地平面圖、屋頂防雷平面圖等;
本套方案包含全套A3設計圖+彩色效果圖。




































































































