
|
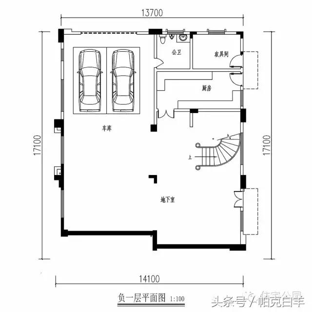
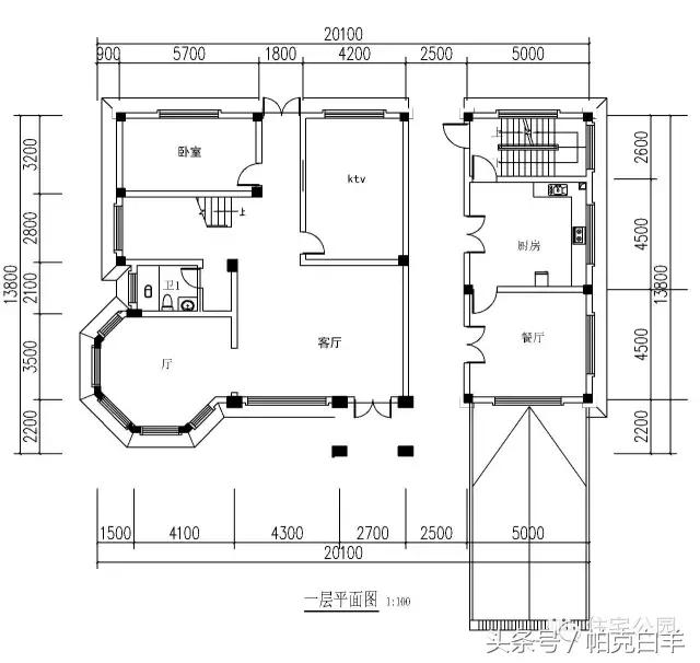
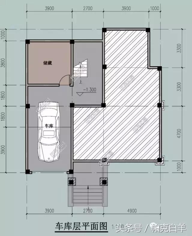
現在的農村生活越來越好,汽車已經成為了標配之物,可是家里的宅地大小受限,買了新車卻沒地方停靠,只能靠在路邊,不安全也操心。其實不妨蓋一個地下車庫,省地又便利,既不占用居室空間,又能儲藏雜物,保證上層起居功能更獨立。今天這10套農村別墅,均帶有地下車庫設計,戶型方正又實用,自家建房就選這樣的,保證村里無同款。 戶型一 長 X 寬:15X13米 占地面積:190㎡ 建筑面積:461㎡
平面布局圖:
戶型二 長 X 寬:11.5X17米 占地面積:192㎡ 建筑面積:574㎡
平面布局圖:
戶型三 長 X 寬:11.2X14.7米 占地面積:165㎡ 建筑面積:354㎡
平面布局圖:
戶型四 長 X 寬:12X13.6米 占地面積:133㎡ 建筑面積:431㎡
平面布局圖:
戶型五 長 X 寬:13X12米 占地面積:156㎡ 建筑面積:314㎡
平面布局圖:
戶型六 長 X 寬:16X16.7米 占地面積:170㎡ 建筑面積:360㎡
平面布局圖:
戶型七 長 X 寬:14X17.1米 占地面積:230㎡ 建筑面積:776㎡
平面布局圖:
戶型八 長 X 寬:11X10米(單戶面積) 占地面積:206㎡ 建筑面積:492㎡
平面布局圖:
戶型九 長 X 寬:20.3X14米 占地面積:285㎡ 建筑面積:836㎡
平面布局圖:
戶型十 長 X 寬:15X18米,梯形占地,上寬18米,下寬15米 占地面積:270㎡ 建筑面積:786㎡
平面布局圖:
![]() 圖紙之家-專注農村別墅/自建房設計18年,集合國內200余位經驗豐富的設計師,被評為口碑最好的農村建筑設計公司! |

帶電梯的農村歐式雙拼三層豪宅別墅設計圖,樓梯電梯共用
占地:268.448平方米
帶車庫的新中式風格一層別墅設計圖,鳥語花香回家建房
占地:184平方米
大戶型高端三層別墅設計圖紙,外觀效果圖+CAD建筑圖
占地:227平方米
歐式三層樓中樓別墅設計圖紙帶車庫(含外觀效果圖)
占地:130平方米
農家中式小院一層三合院自建房,布局寬敞大氣又舒適
占地:186.07平方米
農村二層L戶型農村別墅!設計圖簡約時尚又大氣,住著超舒適
占地:170.55平方米
新中式三層別墅設計圖紙(含效果圖),110平農村自建房施工圖推
占地:110平方米
農村三層帶地下室住宅設計圖及圖片,房內設計了兩個套間
占地:210平方米
面寬13米二層新農村別墅自建房設計圖,功能實用,外觀大氣
占地:168.96平方米
三層現代別墅設計圖紙,全套私人別墅圖紙(含外觀效果圖)
占地:170.38平方米
農村三間三層半別墅設計圖,舒適寬敞時尚經濟,居住生活方便舒
占地:168.29平方米
農村15萬元二層小樓圖,經濟實用小別墅設計圖
占地:105平方米
仿古別墅建筑設計圖,外觀效果圖+全套施工圖
占地:142平方米
210平米新農村自建二層施工圖紙,預留電梯位,美觀大氣舒適實用
占地:208.5平方米
新農村二層帶庭院的小別墅設計圖及效果圖
占地:137平方米
115平方米農村三層別墅設計圖,預算30萬左右
占地:115平方米
鄉下建房一層平房設計圖紙及戶型圖,占地150平米左右
占地:150平方米
現代風格三層別墅設計圖紙和效果圖,農村自建精選
占地:129平方米
二層樓房圖片及施工圖紙,占地160平米左右,帶車庫
占地:160平方米
小占地三層現代時尚風別墅設計圖,平屋頂占地不足100平
占地:98.35平方米
推薦:10套新農村自建房設計圖,2026年最新設計
閱讀次數:4825737次
100套鄉村別墅圖片大全,2026年最新設計
閱讀次數:2492203次
6款農村蓋一層平房的設計圖,10萬元就能建起來
閱讀次數:1852637次
這11個一層農村自建房別墅火爆了朋友圈!我最喜歡戶型十!你呢
閱讀次數:750268次
農村6萬元建一層小別墅圖,你敢相信嗎
閱讀次數:567686次
農村5萬塊就能自建房,6套普通房子設計圖分享,你沒看錯!
閱讀次數:419410次
8套農村漂亮三間平房圖片,非常適合在農村修建!
閱讀次數:411197次
農村自建房化糞池怎么做?附方案及施工過程
閱讀次數:391783次
農村一層三間平房設計圖,告別土氣養老房,讓人忍不住點贊
閱讀次數:350581次
新農村二層樓房圖片造價12萬,挑一套回家建房吧!
閱讀次數:349126次
