
|
農村人蓋別墅,現在是越來越講究了,尤其的廣東、福建、江浙、河南、山東等地的農村。首先樣子一定要漂亮,其次功能布局要合理,要符合自己的生活習慣,這就得要有專門的設計了,施工隊可沒那么多本事。但是大家都舍不得花幾千塊的設計費,所以農村小別墅為大家送上這套極美的戶型分享給大家,希望大家喜歡,如果喜歡,可以在老家宅基地上蓋一棟。新農村要有新氣象,80后蓋房要有新特點,不能再沿襲哪些陳舊的老戶型老樣式了。 而且現在經濟發展迅速,人人一車的想法基本也快實現了,而人人一房卻有些困難,這不,城里房價的飆升,讓更多的人回到了農村,雖然無奈,但沒想到的是,建的農村小別墅,卻不比城里差,而且這造價也是沒誰了!不信?看下面,小編可是帶事實出門喔!
農村別墅基本信息 ? 占地尺寸:11.3×13.6米 ? 占地面積:108.48平方米 ? 建筑面積:224.18平方米 ? 建筑高度:11.1米 ? 建筑結構:磚混結構 ?毛坯造價:17萬左右 效果圖 本套圖紙有施工圖和效果圖,包打印(效果圖為彩圖,施工圖為A3大圖) 這款別墅看起來就是現代風格明顯,開放式車庫醒目,大氣,構造雖然簡單,卻不樸素,對于農村來說,這樣的外觀,完全可以是全村一道亮麗的風景線。
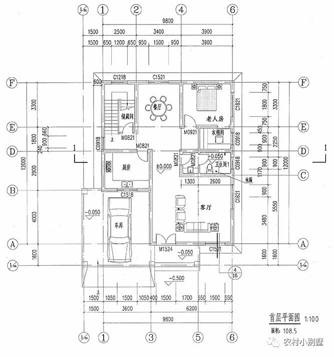
一層平面圖▲▲
一層設有客廳、車庫、廚房、餐廳、臥室、衣帽間、洗手間、儲物間。大家可以看出來,雖然占地面積不大,但是內部的分配還是很齊全的,大家都知道,現在農村其實老人小孩居多,成年人基本是不怎么回農村的,這時候,開放式車庫就發揮了它的作用,在沒車的時候,完全可以當成一個涼亭,聊天,乘涼,聽起來就很完美,衣帽間比衣柜要更方便,拿衣物要更快捷。
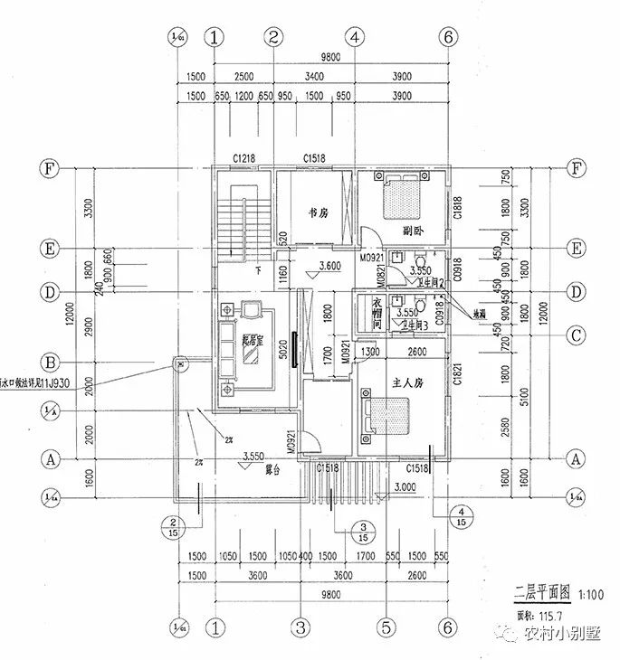
二層平面圖▲▲
二層設有2臥室、衣帽間、客廳、2洗手間、露臺。整棟房屋臥室只有三間,適合小戶型住戶,因為二層是私人空間,一般都是一家人,所以公共衣帽間不占用空間,還實用,去露臺的藍色區域,其實可以設計成一處景觀,或茶室等,大的露臺,除了曬晾,娛樂,也是好處多多。
這樣建起的實景,比效果圖更甚一籌啊,他有著效果圖的精美,夢幻,卻又帶著真實,當然,這樣的真實更美,也更讓人信任,你心動了嗎?什么,這些你還沒看夠,當然,小編今天就是雷鋒,保證管夠! 圖紙之家-專注農村別墅/自建房設計18年,集合國內200余位經驗豐富的設計師,被評為口碑最好的農村建筑設計公司! |

160平方米歐式一層半別墅施工設計圖紙13X13米
占地:160平方米
開間9到10米簡約別墅設計圖紙帶效果圖,全套別墅設計方案
占地:122平方米
30萬左右的新農村自建三層別墅施工設計圖紙及效果圖
占地:148平方米
私家二層農村自建房設計圖及效果圖,造價20萬左右
占地:125平方米
豪華高端三層帶地下室別墅設計圖,可帶電梯
占地:210平方米
農村三層自建房子圖紙設計方案,開間11米左右
占地:151.96平方米
新農村自建二層樓房戶型設計圖,簡單大氣,外觀漂亮精致
占地:多種戶型
農村自建房10萬以下兩層別墅設計圖含外觀效果圖片
占地:105平方米
2026兩層半20多萬農村自建房圖,簡歐風格,美觀大氣
占地:120平方米
農村二層舒適好房,這款四開間別墅設計圖真的很不錯
占地:220.46平方米
140平歐式二層半帶露臺的獨棟別墅圖片,含全套設計圖
占地:140平方米
簡單的二層樓房圖片及設計方案,自建樓房必看
占地:140平方米
新農村共用堂屋和樓梯的雙拼別墅設計圖紙,戶型布局空間利用率
占地:207平方米左右
帶架空層的農村一層小別墅設計圖,大氣穩重又很實用
占地:123.5平方米
新款的農村自建房子中式二層四合院別墅設計圖,占地300平左右
占地:304平方米
新農村三層房屋設計圖紙大全,新農村住宅圖紙
占地:108平方米
160平方米農村三層小別墅設計圖紙,13.8x12.7米
占地:163平方米
帶地下室+挑空客廳,農村三層洋樓別墅誰家圖在
占地:97.74平方米
農村25萬元二層小樓圖,經典大氣建成20年不過時
占地:150平方米
農村四間兩層樓房設計圖,含外觀圖片
占地:138平方米
推薦:10套新農村自建房設計圖,2026年最新設計
閱讀次數:4825737次
100套鄉村別墅圖片大全,2026年最新設計
閱讀次數:2492203次
6款農村蓋一層平房的設計圖,10萬元就能建起來
閱讀次數:1852637次
這11個一層農村自建房別墅火爆了朋友圈!我最喜歡戶型十!你呢
閱讀次數:750268次
農村6萬元建一層小別墅圖,你敢相信嗎
閱讀次數:567686次
農村5萬塊就能自建房,6套普通房子設計圖分享,你沒看錯!
閱讀次數:419410次
8套農村漂亮三間平房圖片,非常適合在農村修建!
閱讀次數:411197次
農村自建房化糞池怎么做?附方案及施工過程
閱讀次數:391783次
農村一層三間平房設計圖,告別土氣養老房,讓人忍不住點贊
閱讀次數:350581次
新農村二層樓房圖片造價12萬,挑一套回家建房吧!
閱讀次數:349126次
