
|
近幾年城市房價節節攀升,高樓大廈是越來越多,很多人日夜辛勞工作,只為能在城市里買上一套房,擁有一處穩定的住所。可是城市的房子少則幾十萬,多則上百萬,面積還不大,住在里面感覺沒有鄉下的獨棟自建房那么舒適,還要每個月償還房貸,生活壓力讓人喘不過氣來。 因此,很多人選擇回農村老家建房,錢少的蓋棟簡約大氣的房屋,錢多的蓋別墅,居住舒適。今天小編給大家分享一款35萬三層美觀實用農村自建房15×10米,帶堂屋車庫臥室套間!
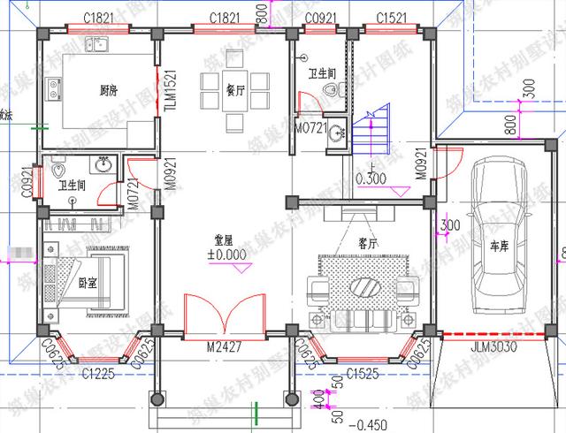
圖紙詳細介紹: 層數: 三層 結構形式: 框架結構 開間: 15.3米 進深: 9.8米 占地面積: 134.66平方米 二層建筑面積:113.42平方米 三層建筑面積:109.48平方米 總建筑面積: 357.56平方米 建筑高度10.65米 主體造價: 35萬 戶型點評: 本戶型設計清新靚麗,外立面凹凸有致,層次感極強,帶獨立車庫,車庫可根據自家的需求決定是否建造,功能靈活性較強。以及飄窗、拱形窗戶、小虎窗的設計讓整棟房子別致秀氣,外觀配色好看,大方。房屋建筑面積比較大,室內功能齊全,多陽臺多露臺設計為家人提供了很多活動空間。 設計功能
一層:堂屋、客廳、餐廳、廚房、臥室(帶內衛)、公衛、車庫
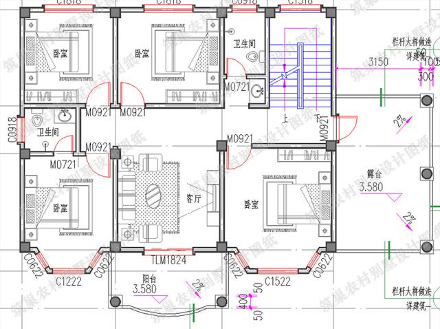
二 層: 客廳(帶陽臺)、主臥(帶內衛)、次臥×3、公衛、大陽臺
三層:客廳(帶陽臺)、主臥(帶內衛)、次臥×3、公衛、大露臺 圖紙之家-專注農村別墅/自建房設計18年,集合國內200余位經驗豐富的設計師,被評為口碑最好的農村建筑設計公司! |

農村三層四合院別墅設計圖紙,自建房建這棟面子十足
占地:227.49平方米
大戶型帶車庫的兩層農村自建房設計圖,施工簡單,戶型方正
占地:236平方米
農村一層7字型平房別墅設計圖,“L”自行戶型,外觀簡約低調
占地:213.39平方米
小面寬大進深三層別墅圖紙設計,戶型非常實用經典
占地:171.39平方米
20萬左右普通農村房子設計圖,二層簡約小別墅
占地:140平方米
性價比超高一層農村自建別墅設計圖,戶型耐看不用爬樓
占地:158.6平方米
農村大戶型中式二層四合院別墅設計圖含外觀效果圖,戶型經典、
占地:464平方米
一層農房別墅設計圖紙,140平方米,面寬15米
占地:140平方米
帶獨立廚房的二層自建房設計圖,大戶型方案
占地:233平方米
農村18萬元二層小樓圖紙,漂亮實用的農村二層樓房設計圖
占地:140平方米
二層半大客廳復式別墅房屋設計圖,客廳寬闊明亮
占地:125平方米
兩戶250平方米農村豪華歐式三層兄弟雙拼別墅設計圖
占地:251平方米
兩層半帶閣樓別墅房屋設計圖,含外觀效果圖片
占地:118平方米
私人別墅房屋cad施工設計圖,造型精致、美觀
占地:105平方米
三層新農村別墅設計圖片及全套圖紙,外形對稱,帶露臺,這個戶
占地:160平方米
農村二層住宅別墅設計圖,貼心實用,12.8米乘14.5米
占地:156.16平方米
農村三間四層樓房設計圖,農村輕奢型四層別墅
占地:160平方米
農村三層歐式別墅豪宅戶型圖設計方案,復式中空客廳+旋轉樓梯
占地:134.84平方米
巴洛克風格別墅設計圖紙及效果圖,農村建一棟想低調都難
占地:256平方米左右
鄉下120平米二層樓房設計圖,23萬就可以建漂亮別墅
占地:120平方米
推薦:10套新農村自建房設計圖,2026年最新設計
閱讀次數:4825737次
100套鄉村別墅圖片大全,2026年最新設計
閱讀次數:2492203次
6款農村蓋一層平房的設計圖,10萬元就能建起來
閱讀次數:1852637次
這11個一層農村自建房別墅火爆了朋友圈!我最喜歡戶型十!你呢
閱讀次數:750268次
農村6萬元建一層小別墅圖,你敢相信嗎
閱讀次數:567686次
農村5萬塊就能自建房,6套普通房子設計圖分享,你沒看錯!
閱讀次數:419410次
8套農村漂亮三間平房圖片,非常適合在農村修建!
閱讀次數:411197次
農村自建房化糞池怎么做?附方案及施工過程
閱讀次數:391783次
農村一層三間平房設計圖,告別土氣養老房,讓人忍不住點贊
閱讀次數:350581次
新農村二層樓房圖片造價12萬,挑一套回家建房吧!
閱讀次數:349126次
