
|
帶堂屋的戶型在農村是比較實用的,農村很多家庭在進行室內布局的時候,都會預留堂屋的空間(即進門就是堂屋),方便設立神位,放置香火臺,同時還方便家里舉辦家庭聚會、紅白事等等。今天小編給大家分享一款25萬以內9×8三層6臥簡約大氣帶堂屋農村自建房圖紙(含平面圖) 圖紙詳情 層數: 三層 結構形式: 磚混結構 主體造價: 22萬 開間: 8.8米 進深: 8米 占地面積: 97.42平方米 建筑面積: 246.60平方米
效果圖 本戶型在設計上比較簡潔大氣,屬于簡歐風格,一層外墻采用灰色蘑菇石裝飾,比較耐臟,二三層使用淡雅的米黃色墻漆涂刷,屋頂灰色坡面設計,配色上比較低調耐看。二三層均設有外挑陽臺,延伸室內空間,提供了晾曬場地,同時也方便觀賞鄉村美景。 設計功能
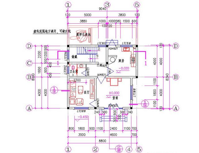
一層平面圖 一 層: 客廳、堂前、儲藏室、廚房、衛生間
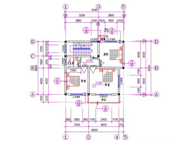
二層平面圖 二 層: 臥室(附陽臺)、臥室、臥室、衛生間
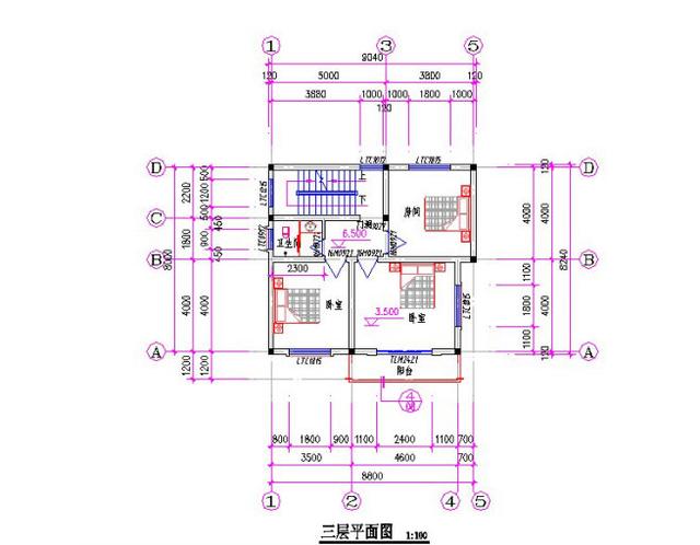
三層平面圖 三 層: 臥室(附陽臺)、臥室、臥室、衛生間 圖紙之家-專注農村別墅/自建房設計18年,集合國內200余位經驗豐富的設計師,被評為口碑最好的農村建筑設計公司! |

后面帶小院的農村房屋設計圖,適合鄉村自建
占地:300平方米
兩層半20萬農村自建房,占地120平米左右
占地:120平方米
精致簡歐一層別墅設計圖,經典大氣百看不厭
占地:139.57平方米
農村三層別墅設計圖紙,造價50萬左右,中式風格,沉穩內斂
占地:160平方米
新中式農村兄弟合建三層雙拼別墅全套設計圖紙,3款戶型方案
占地:多種戶型
農村中式一層三合院自建房設計圖,古典大氣白墻黛瓦
占地:177.62平方米
經典的農村三層小樓房設計圖,外觀圖片時尚、精致
占地:100平方米
四間兩層別墅房屋設計圖,外觀效果圖好看
占地:235平方米
新款240平方米三層雙拼別墅設計圖,歐式兄弟雙拼圖片
占地:240平方米
140平方米新農村三層房屋設計圖,磚混結構帶地下室
占地:138平方米左右
鄉村高檔四層別墅樓設計圖,二三層復式挑空客廳
占地:148.992平方米
16x14米三層雙拼別墅設計圖,外觀精致大氣內里實用,兄弟建房上
占地:217.28平方米
140平方米三層豪華新中式別墅設計圖紙帶外觀效果圖
占地:141.35平方米
簡簡單單一層農村自建別墅方案,布局緊湊又不擁擠
占地:133.55平方米
簡單實用農村自建小樓二層別墅設計圖,戶型造型簡約好看
占地:146平方米
18X12米農村二層溫馨小別墅設計圖,美式風格
占地:203平方米
適合農村建造的二層房屋設計圖紙及效果圖,帶悶頂層,占地15
占地:150平方米
2026帶車庫三層雙拼別墅房屋設計圖,配色淡雅低調
占地:224平方米
經典美式二層小別墅設計圖,回鄉建房不可不看的經典之作
占地:109.33平方米
160平方米左右二層自建別墅設計圖,對稱設計,23萬建好
占地:157平方米左右
推薦:10套新農村自建房設計圖,2026年最新設計
閱讀次數:4825737次
100套鄉村別墅圖片大全,2026年最新設計
閱讀次數:2492203次
6款農村蓋一層平房的設計圖,10萬元就能建起來
閱讀次數:1852637次
這11個一層農村自建房別墅火爆了朋友圈!我最喜歡戶型十!你呢
閱讀次數:750268次
農村6萬元建一層小別墅圖,你敢相信嗎
閱讀次數:567686次
農村5萬塊就能自建房,6套普通房子設計圖分享,你沒看錯!
閱讀次數:419410次
8套農村漂亮三間平房圖片,非常適合在農村修建!
閱讀次數:411197次
農村自建房化糞池怎么做?附方案及施工過程
閱讀次數:391783次
農村一層三間平房設計圖,告別土氣養老房,讓人忍不住點贊
閱讀次數:350581次
新農村二層樓房圖片造價12萬,挑一套回家建房吧!
閱讀次數:349126次
