
|
很多人提起來別墅,就會覺得離我們的生活有點遠。現在在農村建一棟別墅已經成了很平常的事,建一棟一二層別墅,一般造價都不高。不像我們以前以為的那樣,多么的遙不可及。 下面的4套別墅主體造價都不超過25萬,一家人住絕對是足夠了。還不抓緊時間蓋起來! 第一套 基本信息 別墅編號:MS1702123 占地尺寸:11X12.5米 占地面積:127.3平方米 建筑面積:254.3平方米 結構類型:磚混結構 主體造價:20-25萬左右 建筑風格:簡歐風格
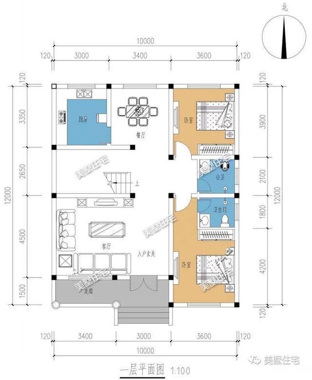
一層布局 1臥室、公衛、私衛、客廳、餐廳、廚房、陽臺
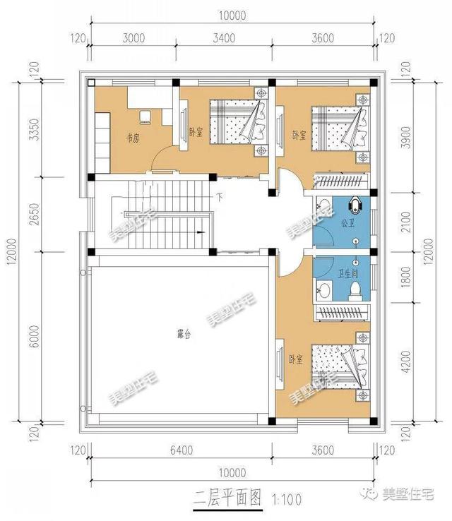
二層布局 3臥室、1公衛、1私衛、2陽臺、書房
第二套 基本信息 別墅編號:MS1702126 占地尺寸:12X10.8米 占地面積:120平方米 建筑面積:233平方米 結構類型:磚混結構 主體造價:19-24萬左右 建筑風格:簡歐風格
一層布局 1臥室、1公衛、1私衛、客廳、餐廳、廚房
二層布局 3臥室、衣帽間、1公衛、1私衛、起居室、露臺、陽臺 主臥帶有衣帽間、衛生間、露臺、陽臺
第三套 基本信息 別墅編號:MS1702109 占地尺寸:11.1X12米 占地面積:123.05平方米 建筑面積:246.1平方米 結構類型:磚混結構 主體造價:20-25萬左右 建筑風格:簡歐風格
一層布局 2臥室、2衛生間、客廳、餐廳、廚房
二層布局 3臥室、2衛生間、客廳、書房、陽臺
第四套 基本信息 別墅編號:MS1702129 占地尺寸:10.2X12.2米 占地面積:125平方米 建筑面積:207平方米 結構類型:磚混結構 造價預算:16-20萬左右 建筑風格:簡歐風格
一層布局 2臥室、1公衛、1私衛、客廳、餐廳、廚房、門口走廊
二層布局 3臥室、1公衛、1私衛、書房、超大露臺
四套造價不超過25的別墅,你想建哪一套? 圖紙之家-專注農村別墅/自建房設計18年,集合國內200余位經驗豐富的設計師,被評為口碑最好的農村建筑設計公司! |

堂屋共用五間雙拼別墅設計圖,適合二兄弟的二層別墅
占地:292.5平方米左右
一層農村自建房別墅設計圖,簡潔時尚的設計,給父母建養老房
占地:144平方米
農村三層雙拼別墅戶型圖設計圖,整體外觀氣派
占地:220平方米
130平方米別墅設計圖紙(含外觀效果圖,)三層別墅設計方案
占地:135平方米
新農村三層房屋設計圖紙大全,新農村住宅圖紙
占地:108平方米
農村三層樓房設計圖紙及效果圖,經典自建圖紙
占地:201平方米
二層現代風格雙拼別墅設計圖,平屋頂,帶地下室設計
占地:192.47平方米
145平方米新農村二層別墅設計效果圖及施工圖,12.6米x11.4米
占地:147平方米
一層鄉村別墅設計戶型圖,占地100平左右,外觀很時尚
占地:100平方米左右
中式三層新農村房子別墅設計圖,看了那么久,還是中式最有韻味
占地:97.2平方米
12米乘9米占地百平一層平房戶型設計圖,布局寬敞大氣又舒適
占地:108平方米
2026最好看的農村三層樓房圖片及施工圖紙,客廳寬敞
占地:120平方米
100平方米左右新農村二層房屋設計建筑CAD圖紙帶外觀效果圖
占地:多戶型可選
爆款農村兄弟雙拼自建房設計圖,占地不大舒適宜居
占地:147.2平方米
80平方米三層農村自建民房設計圖,小戶型別墅方案
占地:81平方米
造價25萬農村二層小別墅設計圖,外觀效果圖美觀、精致
占地:165平方米
新農村小戶型4層自建房三層半別墅設計圖,平屋頂設計
占地:95平方米
120平方米新農村全套二層施工設計圖紙大全11X11米
占地:120平方米
仿古中式四合院別墅設計戶型圖,外觀圖古典風格
占地:524平方米
100平客廳挑高三層樓房設計圖,復式結構
占地:100平方米
推薦:10套新農村自建房設計圖,2026年最新設計
閱讀次數:4825737次
100套鄉村別墅圖片大全,2026年最新設計
閱讀次數:2492203次
6款農村蓋一層平房的設計圖,10萬元就能建起來
閱讀次數:1852637次
這11個一層農村自建房別墅火爆了朋友圈!我最喜歡戶型十!你呢
閱讀次數:750268次
農村6萬元建一層小別墅圖,你敢相信嗎
閱讀次數:567686次
農村5萬塊就能自建房,6套普通房子設計圖分享,你沒看錯!
閱讀次數:419410次
8套農村漂亮三間平房圖片,非常適合在農村修建!
閱讀次數:411197次
農村自建房化糞池怎么做?附方案及施工過程
閱讀次數:391783次
農村一層三間平房設計圖,告別土氣養老房,讓人忍不住點贊
閱讀次數:350581次
新農村二層樓房圖片造價12萬,挑一套回家建房吧!
閱讀次數:349126次
