
|
以前大家都吃不飽穿不暖,自然不會想怎么去改善居住環境,畢竟這個想法還是挺奢侈的。現在就不同了,大家的生活已經進入了另一個水平,物質條件得到了很大的提升,開始追求精神層面的居住條件。今天推薦的這5套別墅,以舒適美觀為第一要求,一起來看看吧! 第一套
正面效果圖
側面效果圖 占地面積:13.00m*12.60m,160平方米左右; 建筑層高:一層半; 建筑高度:6.04米(含屋頂); 設計功能: 一層:門廳、客廳、餐廳、廚房、衛生間、臥室x3、衛生間;
一層平面圖
立面圖 第二套
正面效果圖
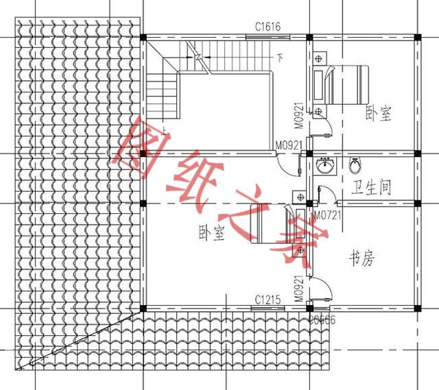
背面鳥瞰圖 占地面積:16.00m*12.00m,190平方米左右; 建筑高度:6.18米(含屋頂); 設計功能: 一層:門廳、客廳、餐廳、廚房、衛生間、臥室x4(其中1個臥室帶衣帽間和衛生間,1個臥室帶衛生間);
一層平面圖
立面圖 第三套
別墅效果圖 占地面積:13.80m*11.30m,155平方米左右; 建筑高度:7.58米(含屋頂); 設計功能: 一層:客廳、餐廳、廚房、書房、衛生間、主臥(帶衛生間)、臥室x2 閣樓:臥室、主臥(帶衛生間和書房)
一層平面圖
閣樓平面圖
立面圖 第四套
別墅效果圖 占地面積:18.14m*16.34m,300平方米左右; 建筑高度:5.40米(含屋頂); 設計功能: 一層:客廳、餐廳、廚房、臥室(帶衛生間)、書房、衛生間、臥室x2、后院、左花園、右花園
一層平面圖
立面圖 第五套
別墅效果圖 占地面積:16.00m*9.50m,150平方米左右; 建筑高度:6.60米(含屋頂); 設計功能: 一層:客廳、廚房、儲藏室(建造時可以去掉儲藏室,這樣餐廳比較大)、衛生間、主臥(帶衛生間)、次臥x3
一層平面圖
立面圖 這5套別墅的設計圖,你最喜歡哪一套? 圖紙之家-專注農村別墅/自建房設計18年,集合國內200余位經驗豐富的設計師,被評為口碑最好的農村建筑設計公司! |

150平米二層鄉村小別墅圖,戶型合理,外觀清新淡雅
占地:150平方米
二層別墅設計圖紙及效果圖,占地200平米,外觀精致優雅,小有情
占地:200平方米
最新小別墅設計圖,復式三層,外觀非常漂亮
占地:158平方米
最新12x9米一層平房別墅設計圖,好看不貴居住舒適!
占地:108平方米
平頂三層別墅設計方案,簡潔舒適大氣通透,12乘9米,打造理想住
占地:98.21平方米
90平-100平小戶型一層三間平房農村別墅設計圖方案戶型
占地:多戶型可選
造價40萬內三層別墅房屋設計方案,設計圖+外觀效果圖
占地:150平方米
小宅基地自建房設計圖,占地不到90平三層別墅圖紙
占地:87平方米左右
新農村中式一層三合院效果圖及全套設計圖,喜歡合院的有福了
占地:118平方米
農村養老房還是一層好,帶閣樓的一層房子設計圖
占地:135平方米
3層20萬農村自建房設計圖,占地110平米
占地:110平方米
極簡大氣二層別墅設計圖,15米面寬,簡約大氣,年輕人的最愛!
占地:150平方米
占地170平米2026新款三層別墅設計圖片及設計方案
占地:170平方米
185平方米二層自建別墅設計施工圖紙及外觀效果圖,15x13米
占地:186平方米
一層半小別墅設計圖帶效果圖,農村自建帶閣樓一層半方案
占地:155平方米
簡單大氣二層兄弟雙拼樓房設計圖,外觀簡約
占地:268平方米
鄉下建房一層戶型圖,一層住宅設計圖紙,誰說一層平房不能叫別
占地:200平方米
高端大氣三層雙拼自建房設計圖,外觀漂亮,240平左右
占地:240平方米
帶車庫三間復式三層樓房設計圖,外觀精致、大方
占地:150平方米
2026新款農村15萬元二層小樓圖,占地90平米左右
占地:多種戶型
推薦:10套新農村自建房設計圖,2026年最新設計
閱讀次數:4825737次
100套鄉村別墅圖片大全,2026年最新設計
閱讀次數:2492203次
6款農村蓋一層平房的設計圖,10萬元就能建起來
閱讀次數:1852637次
這11個一層農村自建房別墅火爆了朋友圈!我最喜歡戶型十!你呢
閱讀次數:750268次
農村6萬元建一層小別墅圖,你敢相信嗎
閱讀次數:567686次
農村5萬塊就能自建房,6套普通房子設計圖分享,你沒看錯!
閱讀次數:419410次
8套農村漂亮三間平房圖片,非常適合在農村修建!
閱讀次數:411197次
農村自建房化糞池怎么做?附方案及施工過程
閱讀次數:391783次
農村一層三間平房設計圖,告別土氣養老房,讓人忍不住點贊
閱讀次數:350581次
新農村二層樓房圖片造價12萬,挑一套回家建房吧!
閱讀次數:349126次
