
|
歐式別墅固然好看,終究贏不了我們中國人的心,每一個中國人內心最深處最美的那套房子,永遠是飛檐掛角、白墻黛瓦的中式美宅。
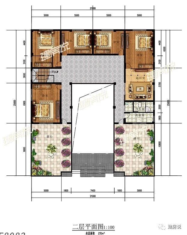
開間18.9米,進深18.5米,占地面積529平方米,建筑面積819平方米,磚混結構,主體造價90—100萬
四合院就像一個安樂窩,一大家子圍合庭院展開生活,形成一派熱鬧和諧的生活場景,陪伴一家人度過慢悠悠的歲月。 圖紙之家-專注農村別墅/自建房設計18年,集合國內200余位經驗豐富的設計師,被評為口碑最好的農村建筑設計公司! |

現代簡約時尚二層帶超大露臺農村別墅戶型,既可以休閑又可晾曬
占地:100.06平方米
11×10米農村二層別墅圖,百平占地經典實用舒適大氣
占地:103.47平方米
私人別墅房屋cad施工設計圖,造型精致、美觀
占地:105平方米
三間三層房子設計圖,高端三層樓房設計圖,三層兩個大露臺
占地:170平方米
居家養老一層別墅設計圖,面寬20米,農村建一棟不吃虧
占地:259.7平方米
好評不斷二層簡歐房屋設計圖,占地150平,農村建房就選它
占地:150平方米左右
現代風格建房圖紙二層別墅設計方案,外觀百看不厭
占地:多戶型可選
110平左右二層小洋樓設計圖,含效果圖片
占地:108平方米
農村三層雙拼別墅設計圖,兄弟建房開間20米,單戶80平方
占地:160平方米
門廳共用二層歐式兄弟雙拼別墅圖片及施工圖
占地:340平方米
農村二層半雙拼別墅設計圖,客廳中空,帶大露臺
占地:270平方米
鄉村最美四合院設計圖及外觀效果圖片,國人的理想住宅
占地:280.62平方米
地中海風格二層別墅設計圖方案,含外觀效果圖
占地:130平方米
面寬20米四開間二層別墅,火爆全村的戶型,美好生活的起點
占地:245.73平方米
氣派的歐式風格三層房子設計圖紙,外觀圖太漂亮了
占地:132平方米
南方新農村三層樓房設計圖紙,帶房屋效果圖
占地:110平方米
小面寬的農村簡單四層2建平屋頂別墅設計圖,農村自建房首選
占地:109.29平方米
農村建房兄弟雙拼兩層住宅設計圖,單戶150平米左右
占地:300平方米
130平帶閣樓兩層半別墅房屋設計圖,含外觀效果圖
占地:130平方米
好看實用農村2開間二層別墅設計圖,主體19萬
占地:117.36平方米
推薦:10套新農村自建房設計圖,2026年最新設計
閱讀次數:4825737次
100套鄉村別墅圖片大全,2026年最新設計
閱讀次數:2492203次
6款農村蓋一層平房的設計圖,10萬元就能建起來
閱讀次數:1852637次
這11個一層農村自建房別墅火爆了朋友圈!我最喜歡戶型十!你呢
閱讀次數:750268次
農村6萬元建一層小別墅圖,你敢相信嗎
閱讀次數:567686次
農村5萬塊就能自建房,6套普通房子設計圖分享,你沒看錯!
閱讀次數:419410次
8套農村漂亮三間平房圖片,非常適合在農村修建!
閱讀次數:411197次
農村自建房化糞池怎么做?附方案及施工過程
閱讀次數:391783次
農村一層三間平房設計圖,告別土氣養老房,讓人忍不住點贊
閱讀次數:350581次
新農村二層樓房圖片造價12萬,挑一套回家建房吧!
閱讀次數:349126次
