
|
隨著農村生活水平的提高,越來越多的朋友選擇回鄉建房。農村空氣清新,又沒有城市的喧囂,可以放慢節奏做自己想做的事,這樣的生活才有味道。今天給大家推薦5套二層農村別墅設計,喜歡的朋友一起看看吧。 第一套
正面效果圖
背面效果圖
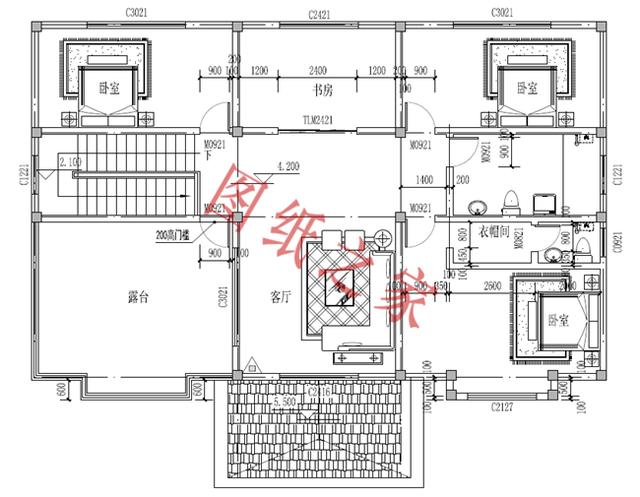
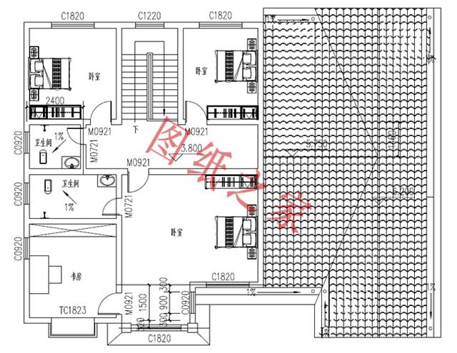
鳥瞰圖 占地面積:15.0m*12.2m,180平方米左右; 建筑高度:9.3米(含屋頂); 設計功能: 一層戶型:客廳、餐廳、廚房、臥室×2、娛樂室、衛生間、儲藏間; 二層戶型:客廳、臥室×4、陽臺、書房、衛生間、陽臺×2;
一層平面圖
二層平面圖
立面圖 第二套
正面效果圖
背面效果圖
鳥瞰圖 占地面積:17.6m*11.0m,200平方米左右; 建筑高度:10.7米(含屋頂); 設計功能: 一層戶型:客廳、餐廳、廚房、衛生間、主臥(帶衣帽間、衛生間)、臥室; 二層戶型:客廳、主臥(帶衣帽間、衛生間)、臥室x2、書房、衛生間、大露臺;
一層平面圖
二層平面圖
立面圖 第三套
正面效果圖
背面效果圖
鳥瞰圖 占地面積:9.1m*11.2m,95平方米左右; 建筑高度:7.5米(含屋頂); 設計功能: 一層戶型:客廳、餐廳、廚房、衛生間、臥室×2; 二層戶型:臥室x2、衛生間、陽臺、大露臺;
一層平面圖
二層平面圖
立面圖 第四套
正面效果圖
背面效果圖
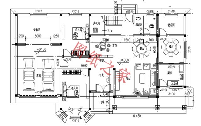
鳥瞰圖 占地面積:20.5m*11.5m,210平方米左右; 建筑高度:9.6米(含屋頂); 設計功能: 一層戶型:客廳、餐廳、廚房、茶室、老人房×2、衛生間、儲藏間、洗衣間、設備間、車庫; 二層戶型:臥室×4、書房、衛生間、儲藏間、露臺×2;
一層平面圖
二層平面圖
立面圖 第五套
正面效果圖
背面效果圖
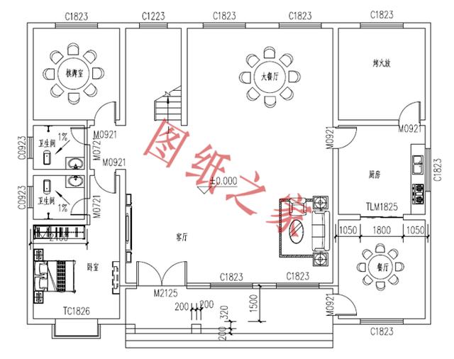
鳥瞰圖 占地面積:16.8m*12.5m,200平方米左右; 建筑高度:10.7米(含屋頂); 設計功能: 一層戶型:客廳、餐廳、廚房、大餐廳、衛生間、主臥(帶衛生間)、棋牌室、烤火房; 二層戶型:主臥(帶衛生間、書房)、臥室x2、衛生間;
一層平面圖
二層平面圖
立面圖
圖紙之家-專注農村別墅/自建房設計18年,集合國內200余位經驗豐富的設計師,被評為口碑最好的農村建筑設計公司! |

一層田園風坡屋頂平房設計圖,造型漂亮時尚
占地:134.9平方米
二層農村兄弟雙拼別墅設計圖,一墻之隔互不干擾,鄰居看了都喜
占地:164.24平方米
面寬8米兩開間四層歐式風別墅,布局實用,小占地大精彩!
占地:100.86平方米
好看又簡單二層仿古中式四合院樓房設計圖
占地:352平方米
農村一層房屋設計圖,自建一層房子圖紙推薦
占地:200平方米
160平小開間大進深農村三層別墅設計圖紙
占地:158.73平方米
獨棟小別墅設計圖,造價30萬左右的獨棟小別墅設計推薦
占地:150平方米
小占地二層徽派別墅設計圖,白墻黛瓦韻味十足,太氣派了
占地:89.6平方米
方正對稱二層農村自建別墅施工圖,經濟實用舒適大氣
占地:129.6平方米
現代四合院別墅設計圖紙,二層戶型,外觀時尚漂亮
占地:287.97平方米
最新12x9米一層平房別墅設計圖,好看不貴居住舒適!
占地:108平方米
13×10米現代簡約風格三層別墅圖,坡屋頂和平屋頂完美結合
占地:120平方米
120平米三層別墅房屋設計圖,帶車庫,帶閣樓
占地:120平方米
人字坡房屋一層別墅設計圖,簡約低調超實用,、
占地:101.17平方米
三層新農村自建小型別墅設計圖及效果圖,三間三層樓房戶型
占地:114平方米
農村三層四合院別墅設計圖紙,自建房建這棟面子十足
占地:227.49平方米
豪華三層歐式雙拼別墅設計圖紙,雙拼歐式別墅如何設計看這款
占地:258.294平方米
占地130平三層現代別墅設計圖方案,帶電梯和地下室設計
占地:134.75平方米
120平帶車庫二層農村別墅施工圖,簡約時尚的外觀
占地:119.13平方米
鄉村最美三層別墅設計圖自建房戶型,外觀圖精致漂亮
占地:134平方米
推薦:10套新農村自建房設計圖,2026年最新設計
閱讀次數:4825737次
100套鄉村別墅圖片大全,2026年最新設計
閱讀次數:2492203次
6款農村蓋一層平房的設計圖,10萬元就能建起來
閱讀次數:1852637次
這11個一層農村自建房別墅火爆了朋友圈!我最喜歡戶型十!你呢
閱讀次數:750268次
農村6萬元建一層小別墅圖,你敢相信嗎
閱讀次數:567686次
農村5萬塊就能自建房,6套普通房子設計圖分享,你沒看錯!
閱讀次數:419410次
8套農村漂亮三間平房圖片,非常適合在農村修建!
閱讀次數:411197次
農村自建房化糞池怎么做?附方案及施工過程
閱讀次數:391783次
農村一層三間平房設計圖,告別土氣養老房,讓人忍不住點贊
閱讀次數:350581次
新農村二層樓房圖片造價12萬,挑一套回家建房吧!
閱讀次數:349126次
