
|
農村別墅和自建房的區別就在于“設計”二字,今天農村小別墅就以下面這套別墅為例,此套自建房戶型宅基地面積為10米X12米,總建筑面積為350平方米。5房間,5衛生間,2車位,適合幾代同堂大家庭。戶型設計非常合理,可以稱為最贊自建房戶型第一名。
農村別墅基本信息 ? 占地尺寸:10米*12米 ? 占地面積:120平方 ? 建筑面積:350平方米 ? 建筑結構:磚混結構 ?主體造價:26-30萬
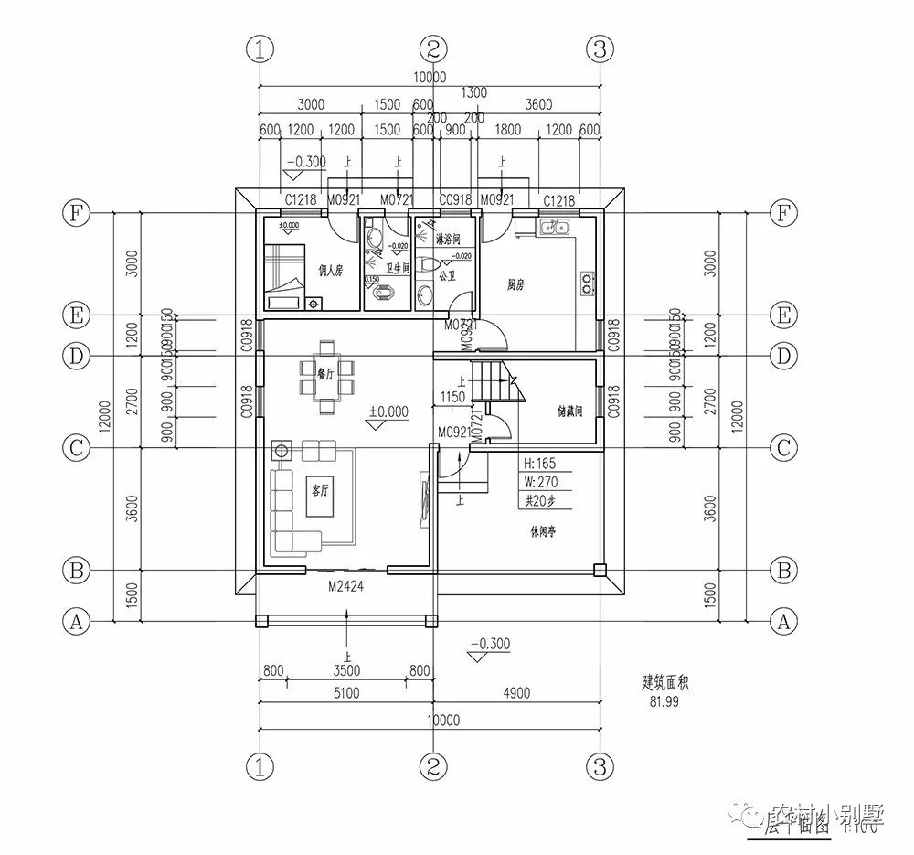
本套圖紙有施工圖和效果圖,包打印(效果圖為彩圖,施工圖為A3大圖) 設計功能: 一層設雙車庫、客廳、餐廳、半開放式廚房、衛生間、洗衣間、客臥,客臥獨立開門,避免客人居住尷尬。(此戶型入口有三個,第一個是主入戶門,進門是客廳;第二個入戶門在車庫,進門是餐廳,方便停車的人進出室內外;第三個入戶門在廚房,方便油煙排放,也貫穿南北。此外一層還有臥室、衛生間和洗衣房。)
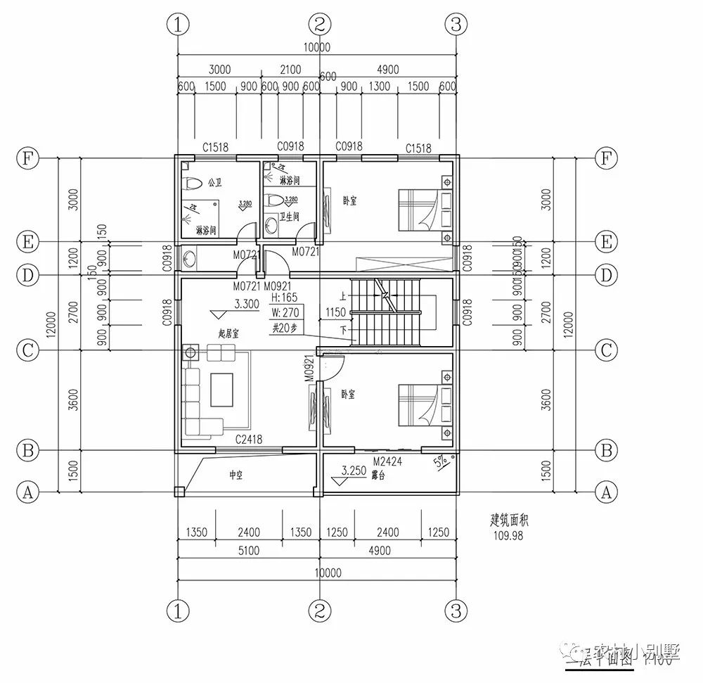
二層:二樓主臥自帶衣帽間,洗手間,以及陽臺。其余為一間臥室,一個客廳。(二層兩個臥室、一個起居室,兩臥室都有可以擺放盆栽、觀賞自然美景的陽臺。西側的為主臥,有獨立的休閑區域、衣帽間和衛生間、洗浴室,獨立性強,私密性好。)
三層:三樓設置了一個小露臺,可以曬衣服,養花,休閑時刻和家人喝個茶賞個月還是很不錯的。(三層戶型與二層一樣,只是此層的起居室換成了露臺,以彌補坡屋頂不能晾曬的弊端。)
圖紙之家-專注農村別墅/自建房設計18年,集合國內200余位經驗豐富的設計師,被評為口碑最好的農村建筑設計公司! |
|||||||||||||||||||||||||||||||||||||||||

歐式三層樓房設計圖,客廳中空,旋轉樓梯,帶土灶房
占地:206平方米
兩層樓房設計圖,兩層新農村樓房圖紙,外觀典雅古樸
占地:140平方米
80多平米二層小型自建房設計圖,經濟舒適別具一格
占地:84.48平方米
150平方米二層別墅設計及效果圖展示下載,17X10米
占地:150平方米
簡歐二層別墅設計圖紙含效果圖片,寶家鄉墅經典風格
占地:137.34平方米
經濟實用二層樓房設計圖紙,功能布局多,12×11米
占地:130平方米
農村16萬一層平房小院設計圖,左右對稱布局好,南北方都能建
占地:195.9平方米
農村兩間兩層樓房設計圖,造價15萬左右,獨立的廚房設計,干凈
占地:95平方米
四間兩層農村別墅戶型圖,外觀時尚色調搭配和諧,占地超200平米
占地:212.95平方米
中國最好看的二層農村房子圖片及施工圖紙,20萬現代風格
占地:130平方米
四層雙拼豪華別墅設計圖及外觀效果圖,貴族氣質爆棚
占地:188.5平方米
120平米三層小別墅設計方案和效果圖,端莊大氣很經典
占地:120平方米
100平客廳挑高三層樓房設計圖,復式結構
占地:100平方米
帶堂屋新農村三層房屋別墅設計圖紙,帶外觀效果圖
占地:214平方米
四層豪華歐式別墅自建樓房設計圖紙,帶效果圖和全套施工圖
占地:300平方米
四層農村別墅設計圖,一二層都有廚房和餐廳的戶型方案
占地:128.52平方米
農村簡單雙拼小戶型,總面積190平方米,合理的利用了每一個空間
占地:190平方米
普通簡單的平屋頂二層房子設計,造價低施工簡單
占地:151.04平方米
私人二層中式四合院別墅建筑設計圖,新農村經濟實用戶型
占地:145平方米
兩層半20多萬復式農村自建房設計圖,經典不過時戶型
占地:120平方米
推薦:10套新農村自建房設計圖,2026年最新設計
閱讀次數:4825737次
100套鄉村別墅圖片大全,2026年最新設計
閱讀次數:2492203次
6款農村蓋一層平房的設計圖,10萬元就能建起來
閱讀次數:1852637次
這11個一層農村自建房別墅火爆了朋友圈!我最喜歡戶型十!你呢
閱讀次數:750268次
農村6萬元建一層小別墅圖,你敢相信嗎
閱讀次數:567686次
農村5萬塊就能自建房,6套普通房子設計圖分享,你沒看錯!
閱讀次數:419410次
8套農村漂亮三間平房圖片,非常適合在農村修建!
閱讀次數:411197次
農村自建房化糞池怎么做?附方案及施工過程
閱讀次數:391783次
農村一層三間平房設計圖,告別土氣養老房,讓人忍不住點贊
閱讀次數:350581次
新農村二層樓房圖片造價12萬,挑一套回家建房吧!
閱讀次數:349126次
