
|
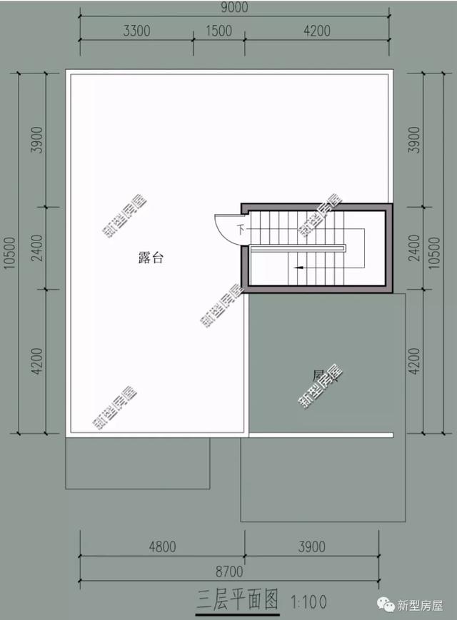
年輕的時候在外打拼,本想等老了之后回農村蓋一套小別墅。可是建房時發現如今審批下來的宅基地面積還不到100平;隨便建起既不好看又不適用,而自己又不會設計。可能很多人都會遇到上邊的情況?不用怕,今天小編就給大家帶來7款占地不到100平的小別墅,建好不比別人家的豪宅差。 第一套:大落地窗歐式3層別墅 占地尺寸:9m×9m 占地面積:81㎡ 建筑面積:227㎡ 建筑情況:共設 8室 3廳 1廚 3衛
一層設置兩間臥室的同時,還有挑空客廳、餐廳及廚房;配上兩層高的大落地窗,將客廳的采光達到最優,同時還很美觀。
二層設臥室、起居室和書房,南向的主臥加了一個小陽臺可以說設計師是別出心裁,占地不大,但豐富了空間功能,升級了居住體驗。
三層主要為臥室和露臺。農村人都比較好客,有了這3個臥室,即使家里多來上幾個客人,也不怕沒地方休息。
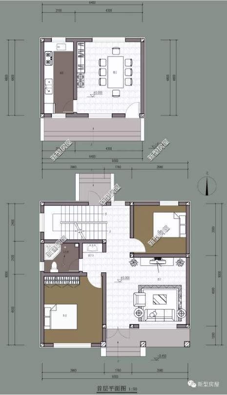
第二套:2層美式別墅 占地尺寸:8.2m×10.6m 占地面積:87㎡ 建筑面積:174㎡ 建筑情況:共設 3室 2廳 1廚 2衛
這套戶型將每寸空間都做了最大化利用,是非常適合小兩口回農村養老的戶型。并且在這么小的面積中還能有一個車庫,不得不贊嘆設計師的用心。
第二層主要設置了主臥(帶衣帽間)、起居室和露臺,充分滿足了農村晾曬休閑等需要。
第三套:2層現代別墅 占地尺寸:8m×11.6m 占地面積:92.8㎡ 建筑面積:167.6㎡ 建筑情況:共設 4室 2廳 1洗衣房 4衛
這套戶型大家看來可能比較有疑慮,為什么沒有看到廚房呢?原來考慮到農村老房拆遷時都會留一點老房子作為廚房或者儲物間,所以整個下來沒有看到廚房、餐廳。這樣也是保證了新房不受廚房油煙的熏擾。
二層設置了臥室、起居室和露臺,也是為了把有限的面積利用大最大化。
第四套:2層現代別墅 占地尺寸:9m×10.5m 占地面積:94.5㎡ 建筑面積:189㎡ 建筑情況:共設 2室 2廳 1廚 2衛
這套戶型非常適合兩口之家,餐廳、廚房、臥室,動靜分離,即使家人在樓下做飯、看電視,樓上睡覺都不會受到影響,并且還帶有一個車庫。
二層主要設置為休息區,如果臥室比較少的話,還可將露臺改做書房或者臥室。
三層為一個大露臺,農村都會種點稻谷或者小麥,而露臺正好可以晾曬衣物和農作物。
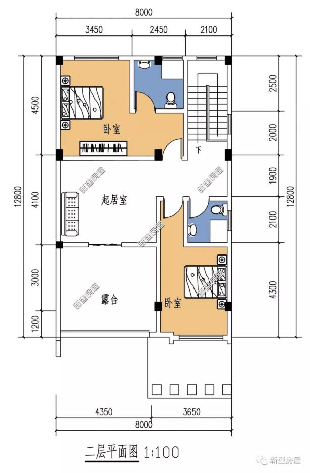
第五套:2層美式別墅 占地尺寸:9.9m×9m 占地面積:98.1㎡ 建筑面積:172㎡ 建筑情況:共設 5室 3廳 1廚 3衛
一層設客廳、餐廳、廚房。一進門就是敞亮的大客廳,而餐廳獨特的沉落式設計,更是讓人眼前一亮。
二層主要設臥室和客廳,而小陽臺的設計既滿足了晾曬休閑等生活需求,又不浪費一點面積。
第六套:2層簡歐別墅 占地尺寸:9m×9.3m 占地面積:83.7㎡ 建筑面積:157㎡ 建筑情況:共設 4房 2廳 2衛
這套戶型是比較周正的方形戶型,室內布局和第3套有些類似,不同的是這套是新建了獨立的廚房和餐廳,優點缺點可以自行評判。
二層設置了臥室、起居室和露臺。簡單明了,沒有一點面積浪費。
這6套別墅戶型,經濟實惠,可以為農村的父母養老,也可以供一家人休閑娛樂。 圖紙之家-專注農村別墅/自建房設計18年,集合國內200余位經驗豐富的設計師,被評為口碑最好的農村建筑設計公司! |

150平農村三層歐式別墅設計圖紙,盡顯豪華與精致,讓人羨慕不已
占地:147.62平方米
一層4間自建平房別墅及全套戶型圖紙,占地160平左右,簡單實用
占地:162.13平方米
農村中式一層三合院自建房戶型方案圖,帶庭院設計
占地:222平方米
一層平房小面積雙拼房屋住宅設計圖,造價低,面積適中
占地:245.7平方米
現代風格四合院別墅設計圖,回老家建一棟吧
占地:177.89平方米
時尚現代的二層農村別墅設計圖,年輕人建房的不二之選
占地:131.76平方米
最新款二層鄉下別墅設計圖,新中式風格,24萬建好主體
占地:150.94平方米
豪華二層別墅設計圖紙及別墅圖片,旋轉樓梯,內設佛堂,大大落
占地:260平方米
農村三層帶地下室小樓房設計圖,客廳中空,帶書房,旋轉樓梯
占地:130平方米
農村兩層新中式別墅圖紙設計圖,外觀圖片大氣,21萬左右
占地:108平方米
160平方米二層自建別墅設計施工建筑圖紙及效果圖,15x11米
占地:163平方米
經典二層農村自建房屋別墅設計圖紙,占地110平米左右
占地:110平方米
占地130平三層現代別墅設計圖方案,帶電梯和地下室設計
占地:134.75平方米
新款漂亮農村三層別墅建筑設計圖紙帶效果圖片,3種戶型
占地:125平方米
7字型一層半農村別墅設計圖,美觀舒適,買了別墅的都會羨慕你
占地:229.14平方米
簡約偏現代三層別墅設計圖紙及效果圖,鄉村蓋房推薦方案
占地:130平方米左右
100平方米自建三層半別墅設計圖紙,帶地下車庫
占地:100平方米
帶大套間新農村二層別墅自建房設計圖紙帶效果圖
占地:185平方米
超漂亮的二層別墅設計圖,外觀對稱設計,建好很大氣
占地:255平方米
80平方米農村四層房屋設計圖紙及效果圖
占地:80平方米
推薦:10套新農村自建房設計圖,2026年最新設計
閱讀次數:4825737次
100套鄉村別墅圖片大全,2026年最新設計
閱讀次數:2492203次
6款農村蓋一層平房的設計圖,10萬元就能建起來
閱讀次數:1852637次
這11個一層農村自建房別墅火爆了朋友圈!我最喜歡戶型十!你呢
閱讀次數:750268次
農村6萬元建一層小別墅圖,你敢相信嗎
閱讀次數:567686次
農村5萬塊就能自建房,6套普通房子設計圖分享,你沒看錯!
閱讀次數:419410次
8套農村漂亮三間平房圖片,非常適合在農村修建!
閱讀次數:411197次
農村自建房化糞池怎么做?附方案及施工過程
閱讀次數:391783次
農村一層三間平房設計圖,告別土氣養老房,讓人忍不住點贊
閱讀次數:350581次
新農村二層樓房圖片造價12萬,挑一套回家建房吧!
閱讀次數:349126次
