
|
對于自建房來說頂層建半層閣樓是很有必要的,首先閣樓相當于隔熱層,特別有利于節能環保而且防潮。其次閣樓空間有很大的作用,可以安放設備,水箱、電機、太陽能等,閣樓空間還可以用作一些輔助空間比如健身房、書房、畫室等,而且從外觀上閣樓的坡屋頂配上老虎窗看上去豐富、親切還有生活趣味性。當然閣樓也有點小缺點,閣樓有高低不等的梁柱,不規則的特點,設計上受到一定的限制,而且閣樓不適合做廚房和衛生間等上下水。但整體來說閣樓的好處還是很多的,這里我們給大家介紹一套二層半帶閣樓的自建房圖紙,建筑面積230平米,占地面積是130平方米,主體建筑面寬14米進深11.8米,磚混結構造價約20萬元。
項目基地比鄰瀘沽湖,四周自然景觀良好。北側距離基地較遠位置有河流,且北側與項目基地存在1.5米高差。東、西、南三側為空地。基地四周整體環境十分簡單。建筑整體為現代風格,外立面材質選擇木質裝飾板、文化石和水泥。不同材質的互相碰撞使得建筑整體造型十分出彩。
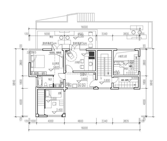
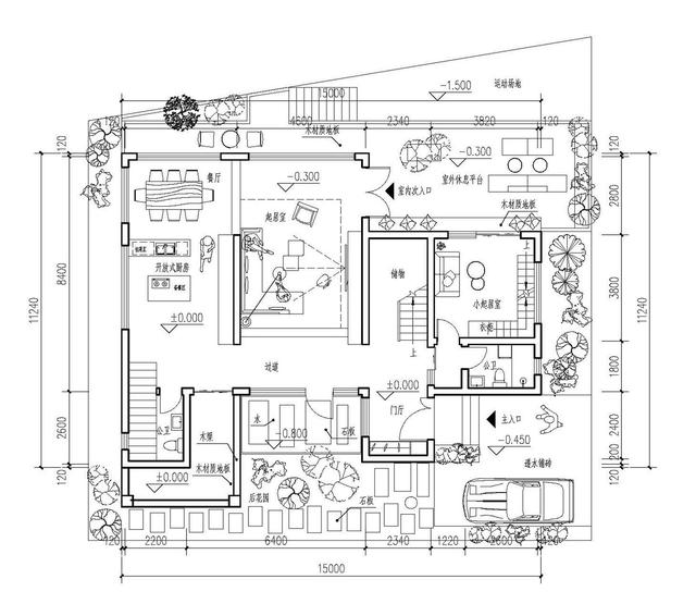
平面設計時,考慮到建筑日后會作為家用民宿使用,一層空間均設計為公共空間。大面積的客廳和東北角的loft起居室均能很好的為入住者提供室內的休閑空間。
二層設計有三間臥室。建筑北側的湖泊提供了良好的自然景觀,室外陽臺和北側大面積開窗能很好地保證室內良好的觀景視角。
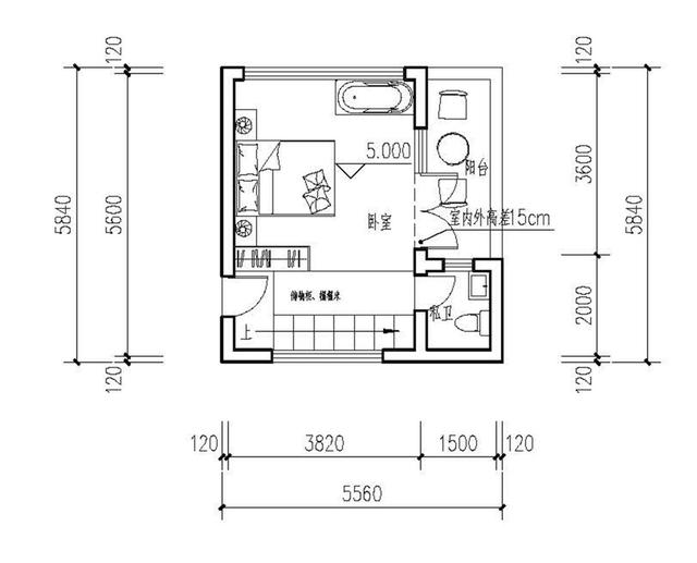
閣樓衛生間設置在東北角,將北側空間盡量讓給臥室和陽臺。單層獨立空間保證了入住者或業主自用時的私密性。
建筑整體限高9米,但是考慮到項目位于云南麗江,屋頂仍然選擇坡屋頂,以保證良好的排水能力。
屋頂上部開有天井,為室內樓梯間提供了采光和通風的能力。建筑整體開窗較多,大量玻璃的運用與堅實的墻面對比,使得建筑正面造型虛實結合,提升設計完整度。通透的玻璃讓室內空間和視野十分開闊。
院門采用木質材料,木質建材在白色真石漆的對比下,得以凸顯。門頭的效果讓建筑基調十分自然。
一層開窗位置與庭院內水景相鄰,推開窗戶就能擁抱自然和美景。
庭院西南角的木質休息平臺與秋千搭配更適合建筑的整體風格。童趣、自然和現代、時尚在庭院空間巧妙融合。讓你生活在這樣一棟房子里感覺趣味無窮,生活永遠不單調。現在房子對于我們來說不止是居住,我們大部分的休閑時光都在這里,來造一棟會呼吸的房子吧,這套有生命的房子喜歡拿走。 圖紙之家-專注農村別墅/自建房設計18年,集合國內200余位經驗豐富的設計師,被評為口碑最好的農村建筑設計公司! |

農村4間3層樓房設計圖,帶車庫,挑空客廳,坡屋頂設計
占地:160平方米
110平方米新農村三層房屋設計圖紙,含效果圖,帶車庫
占地:113平方米
歐式三層豪宅樓設計圖紙及外觀效果圖,占地180平左右
占地:177.82平方米
150平米一層農村別墅設計圖,養老自住都很不錯,關鍵是造價也很
占地:156平方米
150平農村二層復式別墅房屋設計方案圖,帶外觀效果圖片
占地:150平方米
簡單時尚二層住宅設計圖紙,簡單的設計,不平凡的視覺感受
占地:110平方米
全套三層農村房屋設計圖紙,客廳中空,大大的窗戶,采光極好,
占地:160平米
超實用超現代兩層自建小樓圖,純粹極簡風格
占地:184平方米左右
鄉村一層房屋設計圖,養老還是一層好,多臥室的設計
占地:195平方米
2026二層農村新款別墅圖片及施工圖,新中式風格古典大氣
占地:200平方米
面寬13米三層新中式獨棟別墅設計圖,復式自建房戶型方案
占地:201.25平方米
一層中式四合院別墅設計圖,符合國人審美,簡單大氣穩妥沉穩
占地:388平方米
私人二層中式四合院別墅建筑設計圖,新農村經濟實用戶型
占地:145平方米
12.8乘10米一層平房別墅設計圖,四室二廳南北通透
占地:128.85平方米
160平米三層別墅設計圖,功能齊全,外觀漂亮,適合和父母同住
占地:160平方米
160-170平方米二層自建別墅設計CAD圖紙帶效果圖,田園風
占地:167平方米左右
中式四合院風格別墅設計圖,平屋頂,書房、茶室、健身房一應俱
占地:370平方米
二層復式雙拼別墅設計圖(客廳中空),含外觀效果圖
占地:195平方米
豪華二層別墅設計圖紙及別墅圖片,旋轉樓梯,內設佛堂,大大落
占地:260平方米
130平方米現代簡約農村兩層樓房施工設計圖紙帶外觀圖
占地:126平方米
推薦:10套新農村自建房設計圖,2026年最新設計
閱讀次數:4825737次
100套鄉村別墅圖片大全,2026年最新設計
閱讀次數:2492203次
6款農村蓋一層平房的設計圖,10萬元就能建起來
閱讀次數:1852637次
這11個一層農村自建房別墅火爆了朋友圈!我最喜歡戶型十!你呢
閱讀次數:750268次
農村6萬元建一層小別墅圖,你敢相信嗎
閱讀次數:567686次
農村5萬塊就能自建房,6套普通房子設計圖分享,你沒看錯!
閱讀次數:419410次
8套農村漂亮三間平房圖片,非常適合在農村修建!
閱讀次數:411197次
農村自建房化糞池怎么做?附方案及施工過程
閱讀次數:391783次
農村一層三間平房設計圖,告別土氣養老房,讓人忍不住點贊
閱讀次數:350581次
新農村二層樓房圖片造價12萬,挑一套回家建房吧!
閱讀次數:349126次
