
|
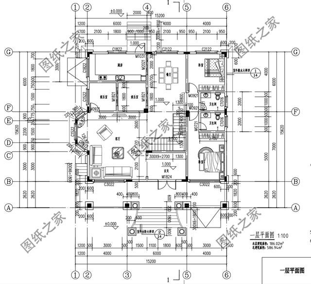
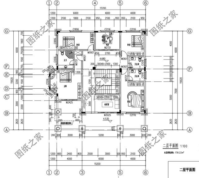
現在農村建房不像以往那樣千篇一律,除了在造型上也是追求著千變萬化,豐富多彩之外,在功能上更要滿足現代生活人的生活需求,很多農村朋友都想要有地下室的自建房。今天小編就帶來了三款農村帶地下室的二層自建房設計圖以及戶型圖,快分享給有需要的朋友吧! 第一款:現代二層別墅設計圖以及戶型圖,有露臺![]() 二層鄉村別墅設計圖紙,戶型方正實用,功能齊全,非常適合農村自建房。房體富有層次感,構造規整有力,線條流暢,顯得端正穩重。淡色外墻搭配黃色文化石以及藍紫色琉璃瓦尊貴典雅。別墅帶有設有地下室,設計了旋轉樓梯,弧度優美造型大氣,提升了別墅的質感。 占地面積:17.5m*13.45m,208.98平方米左右 建筑高度:9.82米(含屋頂); 功能: 地下室戶型:家庭影音、酒窖、棋牌室、儲物間、健身區 一層戶型:玄關、客廳、餐廳、廚房、臥室(帶衛生間)、臥室(帶衛生間、衣帽間)、車庫 二層戶型:臥室(帶衛生間、衣帽間、書房)x2、臥室、露臺x2、陽臺 ![]() ![]() ![]() 第二款:歐式別墅設計圖以及戶型圖![]() ![]() ![]() 奢華歐式二層樓房,帶獨立衛生間的主臥,陽臺的設計既美觀又可以方便晾曬等,小客廳的設計完全符合農村的傳統,一般用來接待親朋好友比較重要的客人,整個布局緊湊又不擁擠,不浪費面積。 占地面積:15.2m*15.6m,190平方米左右 建筑高度:10.58米(含屋頂) 功能: 地下室:車庫、活動室、衛生間 一層戶型:玄關、客廳、餐廳、廚房、衛生間、主臥(帶衛生間)、臥室 二層戶型:起居室、主臥(帶衛生間)×2、臥室×2、書房、衛生間、、大露臺
![]() ![]() ![]() 第三款: 簡單二層別墅設計圖以及戶型圖![]() 精致的農村二層別墅自建房設計圖,內設挑空客廳布局實用,不帶廚房餐廳設計戶型(餐廳廚房建在配房中)。別墅外形是比較耐看型的,白色外墻、棕色文化石搭配紅色坡屋頂,搭配精致落地窗,給房子增添了不少豪氣感;門口的方柱搭建起的門廳空間,襯托出沉穩莊重的大家風范,多窗戶多陽臺的設計讓室內的采光也更佳。整間房子一共5間臥室,足夠一般家庭使用 占地面積:11.76m*11.46m,236.09平方米左右 建筑高度:9.082米(含屋頂) 功能: 地下室戶型:儲藏室x3、衛生間 一層戶型:客廳、帶衣帽間、臥室x3、衛生間 二層戶型:客廳上空、小客廳、臥室x2、衛生間、露臺、陽臺 ![]() ![]() ![]() 以上就是帶地下室二層自建房設計圖以及戶型圖,快分享給你有需要的朋友吧!本文由圖紙之家原創,歡迎關注,帶你一起長知識!
圖紙之家-專注農村別墅/自建房設計18年,集合國內200余位經驗豐富的設計師,被評為口碑最好的農村建筑設計公司! |

農村自建三間三層樓房設計圖,帶露臺,經典實用
占地:135平方米
新農村兩層帶露臺自建房設計圖,造價30萬內
占地:170平方米
四開間2層別墅設計圖,外觀圖配色清新淡雅,占地200平米
占地:200平方米
大戶型高端三層別墅設計圖紙,外觀效果圖+CAD建筑圖
占地:227平方米
120平方米新農村全套二層施工設計圖紙大全11X11米
占地:120平方米
帶架空層一層農村別墅設計圖,回鄉建房優選,家有豪宅幸福來敲
占地:124.76平方米
帶架空層的三層農村別墅設計火了!雨季不怕返潮
占地:147.15平方米
帶車庫三層自建別墅設計圖紙,客廳中空,外觀洋氣時尚,這款戶
占地:170平方米
鄉下二層樓房住宅設計圖紙及效果圖,農村二層小洋樓
占地:140平方米
帶小院新農村房屋設計圖紙,三層別墅推薦
占地:115平方米
新農村三層房屋設計圖紙大全,新農村住宅圖紙
占地:108平方米
農村現代三層建房子設計圖及圖片,平屋頂的設計
占地:150平方米
50萬左右農村豪華二層別墅設計圖 ,大廳中空,外觀精美
占地:210平方米
中式四合院風格別墅設計圖,平屋頂,書房、茶室、健身房一應俱
占地:370平方米
漂亮實用三層自建別墅設計圖紙,超高的性價比
占地:160平方米
250平方米農村三層別墅設計圖紙及效果圖大全,18.3x15米
占地:247平方米
網紅農村一層小別墅設計圖,建一層的必看
占地:多戶型可選
二間二層小型別墅設計圖,美觀、經濟、實用!
占地:96平方米
農村27萬二層自建別墅設計圖,占地140平米左右,戶型極好
占地:140平方米
兄弟合建中式一層四合院設計圖,古樸雅致代代相傳,永不過時
占地:468.03平方米
推薦:10套新農村自建房設計圖,2026年最新設計
閱讀次數:4825737次
100套鄉村別墅圖片大全,2026年最新設計
閱讀次數:2492203次
6款農村蓋一層平房的設計圖,10萬元就能建起來
閱讀次數:1852637次
這11個一層農村自建房別墅火爆了朋友圈!我最喜歡戶型十!你呢
閱讀次數:750268次
農村6萬元建一層小別墅圖,你敢相信嗎
閱讀次數:567686次
農村5萬塊就能自建房,6套普通房子設計圖分享,你沒看錯!
閱讀次數:419410次
8套農村漂亮三間平房圖片,非常適合在農村修建!
閱讀次數:411197次
農村自建房化糞池怎么做?附方案及施工過程
閱讀次數:391783次
農村一層三間平房設計圖,告別土氣養老房,讓人忍不住點贊
閱讀次數:350581次
新農村二層樓房圖片造價12萬,挑一套回家建房吧!
閱讀次數:349126次
