
|
今天給大家分享2款20萬以內二層占地面積80㎡左右農村自建房全套設計施工圖,戶型簡單大方,造價不高,非常適合農村建房,戶型1配有建成效果圖,戶型2屬于偏中式設計風格,各有各的特色,下面一起來看看圖紙詳情介紹。 【戶型1】 開間進深:8m×9.7m 占地面積:80㎡ 建筑面積:160㎡ 參考造價:18萬元
戶型1 戶型1設計簡單大氣,有入戶平臺,可以擺放綠色盆栽,二樓前后帶有大露臺,休閑空間充足,方便晾曬東西,屋頂坡面設計,利于排水。配色上,一層外墻采用紅色,二層采用純凈的白色墻漆裝飾,屋頂是經典的藍色,配色優雅大方。布局上,側重居住的便利性,臥室均帶有獨立衛生間,十分方便。 功能設計 一層:長輩房(附衛生間)、客廳、餐廳、廚房、農具存放室 二層:主臥(附衛生間、陽臺)、兒童房(附曬臺、衛生間)、貯藏室 建成效果圖展示
建成效果圖與原設計圖對比 這是業主建成效果圖展示,業主自己調整了配色方案,外觀采用米白色墻磚裝飾,素雅而耐看,房屋前面有大地坪,為小孩提供嬉戲玩耍的場地,還能晾曬東西。二樓露臺架了遮雨棚,擺放一桌一椅,喝茶聊天,共賞室外美景。 平面圖展示
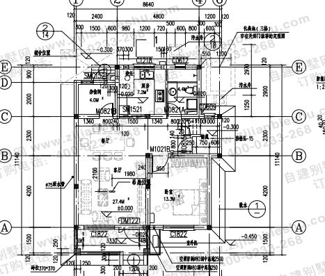
一層平面圖 【戶型2】 開間進深:8.64m×11.14m 占地面積:75.1㎡ 建筑面積:119.7㎡ 參考造價:15萬元
戶型2 功能設計
一層平面圖
一層:客廳、臥室、廚房、餐廳、雜物間、儲藏間、衛生間
二層平面圖 二層:主臥(附露臺)、書房、衛生間 圖紙之家-專注農村別墅/自建房設計18年,集合國內200余位經驗豐富的設計師,被評為口碑最好的農村建筑設計公司! |

11×10米農村二層別墅圖,百平占地經典實用舒適大氣
占地:103.47平方米
人字坡房屋一層別墅設計圖,簡約低調超實用,、
占地:101.17平方米
豪華三層別墅設計圖紙,全套施工方案帶效果圖
占地:130平方米
190平方米新農村三層(二層半)雙拼房屋設計圖紙,兄弟合建
占地:192平方米左右
35萬內三層自建別墅設計圖,外觀美觀,戶型舒適
占地:135平方米
戶型簡單實用的三層農村房屋設計圖紙,復式結構,大面積開窗,
占地:170平方米
最新款農村三層自建房戶型設計圖及外觀圖片照片,鄉村蓋房精選
占地:112.56平方米
三層三間別墅設計圖方案,含外觀圖片,自建推薦
占地:125平方米
120平農村三層房屋設計圖,含外觀圖片
占地:120平方米
110平方米新農村三層房屋設計圖,含外觀效果圖
占地:110平方米
新款農村三拼三戶別墅設計圖及效果圖三層戶型,外觀靚麗新穎
占地:360平方米
80平方米農村四層房屋設計圖紙及效果圖
占地:80平方米
農村一層中式三合院戶型設計圖,造型古香古色
占地:215平方米左右
農村60萬別墅款式設計圖及外觀效果圖,客廳中空
占地:150平方米
中國最好看的二層農村房子圖片及施工圖紙,20萬現代風格
占地:130平方米
農村10萬元一層小別墅平房設計圖大全,含效果圖
占地:120平方米
驚艷全村的三層別墅設計圖,12×16米美觀大氣布局超合理
占地:179.8平方米
兄弟雙拼四間三層別墅設計圖,農村自建推薦戶型方案
占地:260平方米
地中海風格二層別墅設計圖及效果圖,外觀有格調
占地:125平方米
簡單經濟一層自建養老房,12米乘9.5米,溫暖舒適施工簡單
占地:103.2平方米
推薦:10套新農村自建房設計圖,2026年最新設計
閱讀次數:4825737次
100套鄉村別墅圖片大全,2026年最新設計
閱讀次數:2492203次
6款農村蓋一層平房的設計圖,10萬元就能建起來
閱讀次數:1852637次
這11個一層農村自建房別墅火爆了朋友圈!我最喜歡戶型十!你呢
閱讀次數:750268次
農村6萬元建一層小別墅圖,你敢相信嗎
閱讀次數:567686次
農村5萬塊就能自建房,6套普通房子設計圖分享,你沒看錯!
閱讀次數:419410次
8套農村漂亮三間平房圖片,非常適合在農村修建!
閱讀次數:411197次
農村自建房化糞池怎么做?附方案及施工過程
閱讀次數:391783次
農村一層三間平房設計圖,告別土氣養老房,讓人忍不住點贊
閱讀次數:350581次
新農村二層樓房圖片造價12萬,挑一套回家建房吧!
閱讀次數:349126次
