
|
這是一款美式風格農村自建房設計圖,濃烈鮮艷的紅色外墻個性時尚,彰顯對生活的熱情。拱形線條的使用柔化了整個房屋的線條感,雙坡屋頂設計優雅別致,同時也利于排水。二層的露臺和三層的露臺錯落有致,外立面富有設計美感,整體外觀采用了錯位視覺設計手法,讓外觀大氣上檔次。室內布局充分考慮空間的實用性和舒適性。
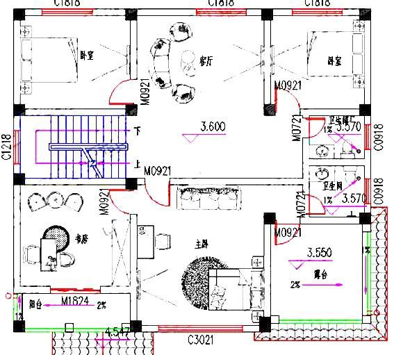
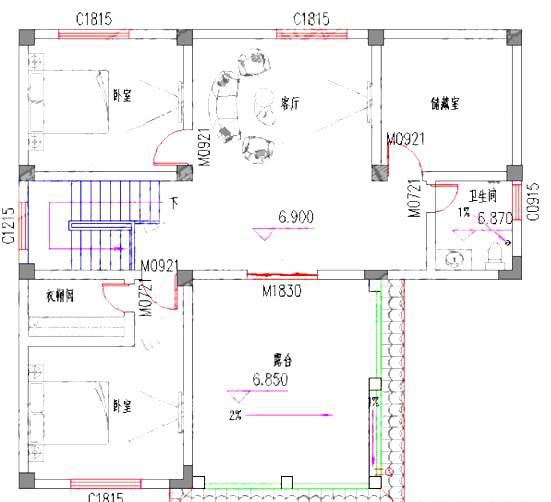
本套農村自建房設計圖開間進深12.6米×11.4米,首層占地面積142.5㎡,總建筑面積376.97㎡,采用框架結構,主體造價40萬左右。一層設有3廳2臥1廚1衛1車庫,二層設有1廳3臥1書房1陽臺1露臺2衛,三層設有1廳2臥1衛1露臺1儲藏室。 室內布局展示
一層:客廳25.63㎡、堂屋14.49㎡、車庫18.35㎡、衛生間3.06㎡、2臥室11.29㎡、餐廳11.02㎡、廚房11.02㎡、 入門是堂屋,農村一貫的是功能區域,也是必備功能,可以擺放神位,祭拜先祖神靈,招財納氣。 客廳和餐廳開放式設計,擴大整個室內的空間感。 設有兩間臥室,如有需要,車庫也可以做臥室使用,具有較高的靈活性。
二層:客廳、主臥室(帶書房、陽臺、露臺、衛生間)、次臥*2、公衛 二樓主臥室是豪華套間,帶有書房和露臺,還有陽臺以及獨立衛生間,書房直通陽臺,采光效果利于學習和工作,同時讓我們看書休閑之余享受更開闊的視野。
三層:客廳、儲藏室、衛生間、臥室、臥室(帶衣帽間)、露臺 三樓共設有2間臥室,大臥室帶有衣帽間。儲藏室空間較大,可以收納大量生活雜物,大型露臺設計提供了更多生活娛樂空間。 圖紙之家-專注農村別墅/自建房設計18年,集合國內200余位經驗豐富的設計師,被評為口碑最好的農村建筑設計公司! |

平頂新中式三層農村別墅設計圖,最適合鄉村自建占地150平米
占地:150.35平方米
網紅農村一層小別墅設計圖,建一層的必看
占地:多戶型可選
2026年最新款四間二層別墅設計圖,15米乘13米
占地:171.01平方米
歐式兩層別墅設計圖及歐式效果圖,造價25萬左右
占地:150平方米
小面寬大進深三層別墅圖紙設計,戶型非常實用經典
占地:171.39平方米
新式160平方米農村三層樓房設計圖,客廳中空
占地:160平方米
農村最漂亮平頂三層別墅設計圖,10.5乘11.5米
占地:119.35平方米
農村一層中式別墅設計圖,經典大氣,布局舒適,面寬20米
占地:192.92平方米
新農村復試兩層半樓房設計圖,帶大露臺,簡單經濟實用大氣
占地:190平方米
自建一層三合院別墅圖,雅致鄉村居造價經濟,南北通透更宜居!
占地:176.36平方米
帶土灶房一層四開間別墅設計方案,溫馨舒適的雅舍
占地:164.34平方米
獨棟經濟型二層小別墅房屋設計圖,含全套施工圖效果圖
占地:多種戶型
新款現代一層小別墅設計圖,農村自建平房推薦戶型
占地:多戶型可選
二層復式小別墅設計圖,樓中樓結構,外觀漂亮,簡單
占地:120平方米
備受好評二層半歐式別墅設計圖,五開間對稱設計,布局合理又實
占地:192.48平方米
二開間小戶型設計三層農村自建房方案,經濟型適合小宅基地建房
占地:107.02平方米
130平帶閣樓兩層半別墅房屋設計圖,含外觀效果圖
占地:130平方米
造價便宜的二層雙拼別墅設計圖,造型簡約大氣,進深10米
占地:SP23059
小占地三層現代時尚風別墅設計圖,平屋頂占地不足100平
占地:98.35平方米
農村四間二層小洋樓設計圖,歐式別墅、現代洋氣
占地:200平方米
推薦:10套新農村自建房設計圖,2026年最新設計
閱讀次數:4825737次
100套鄉村別墅圖片大全,2026年最新設計
閱讀次數:2492203次
6款農村蓋一層平房的設計圖,10萬元就能建起來
閱讀次數:1852637次
這11個一層農村自建房別墅火爆了朋友圈!我最喜歡戶型十!你呢
閱讀次數:750268次
農村6萬元建一層小別墅圖,你敢相信嗎
閱讀次數:567686次
農村5萬塊就能自建房,6套普通房子設計圖分享,你沒看錯!
閱讀次數:419410次
8套農村漂亮三間平房圖片,非常適合在農村修建!
閱讀次數:411197次
農村自建房化糞池怎么做?附方案及施工過程
閱讀次數:391783次
農村一層三間平房設計圖,告別土氣養老房,讓人忍不住點贊
閱讀次數:350581次
新農村二層樓房圖片造價12萬,挑一套回家建房吧!
閱讀次數:349126次
