
|
農村人掙點錢不容易,手里的錢都是多年辛苦拼搏、省吃儉用才攢下來的,所以才要慎重使用。建房子也是這樣,一定要建成經濟實惠又好看實用的。下邊給大家推薦5套優雅大氣的三層別墅,占地170平方米,造價不到40萬元,這可算是撿到寶了! 第一套
正面效果圖
鳥瞰效果圖
背面效果圖 占地面積:14.4m*12.9m,一層占地160平方米左右; 建筑層高:三層; 建筑高度:12.9米(含屋頂); 設計功能: 一 層:客廳、廚房、餐廳、臥室(帶衛生間)、臥室、衛生間; 二 層:客廳上空、客廳、臥室(帶衛生間)、臥室、書房、衛生間、陽臺; 三 層:家庭娛樂廳、健身房、臥室(帶衛生間)、臥室、衛生間、大露臺、陽臺;
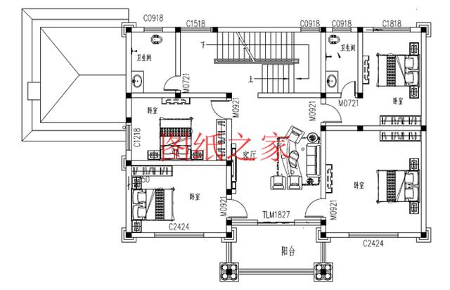
一層平面圖
二層平面圖
三層平面圖 第二套
正面效果圖
鳥瞰效果圖
背面效果圖 占地面積:18.6m*11.8m,一層占地166平方米左右; 建筑層高:三層; 建筑高度:13.1米(含屋頂); 設計功能: 一 層:堂屋、客廳、廚房、餐廳、臥室(帶衛生間)、臥室、衛生間; 二 層:客廳、臥室(帶衛生間)、臥室x3、衛生間、陽臺; 三 層:活動室、臥室(帶衛生間)、臥室x2、衛生間、大露臺;
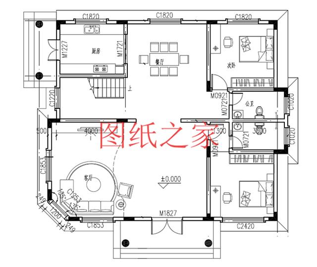
一層平面圖
二層平面圖
三層平面圖 第三套
正面效果圖
鳥瞰效果圖
背面效果圖 占地面積:15.8m*13.0m,一層占地170平方米左右(不含院子); 建筑層高:三層; 建筑高度:12.8米(含屋頂); 設計功能: 一 層:客廳、廚房、餐廳、臥室(帶衛生間)、客臥、衛生間、儲藏間(可以根據實際情況來調整); 二 層:茶室、臥室(帶衛生間)、臥室x2、衣帽間、衛生間、露臺; 三 層:臥室×3、書房、露臺、衛生間、衣帽間; 一層平面圖
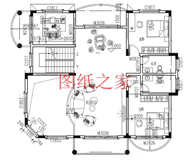
二層平面圖
三層平面圖 第四套
正面效果圖
鳥瞰效果圖
背面效果圖 占地面積:13.6m*12.6m,一層占地175平方米左右; 建筑層高:三層; 建筑高度:13.36米(含屋頂); 設計功能: 一 層:客廳、廚房、餐廳、臥室(帶衣帽間)、臥室、棋牌室、衛生間; 二 層:客廳、臥室x2、衛生間、陽臺; 三 層:客廳、臥室(帶衣帽間)、臥室x2、衛生間、大露臺;
一層平面圖
二層平面圖
三層平面圖 第五套
正面效果圖 鳥瞰效果圖
背面效果圖 占地面積:12.0m*14.8m,一層占地180平方米左右; 建筑層高:三層; 建筑高度:12.2米(含屋頂); 設計功能: 一 層:客廳、廚房、餐廳、老人房、臥室×2、衛生間、儲藏間; 二 層:客廳上空、臥室(帶衣帽間)、臥室x2、書房、衛生間、陽臺; 三 層:臥室(帶衣帽間)、臥室x2、書房、衛生間、大露臺;
一層平面圖
二層平面圖
三層平面圖 這幾套別墅的設計圖,你最喜歡哪一套? 圖紙之家-專注農村別墅/自建房設計18年,集合國內200余位經驗豐富的設計師,被評為口碑最好的農村建筑設計公司! |

35萬左右的農村小別墅設計圖及效果圖,新中式風格
占地:137平方米
170平方米農村二層房屋設計施工圖,外觀圖時尚、好看
占地:172平方米
新款私人定制四層歐式獨棟住宅別墅設計圖紙,含外觀效果圖
占地:138平方米左右
帶庭院中式二層四合院別墅設計效果圖片,方方正正
占地:404平方米
帶閣樓二層別墅設計圖,帶外觀效果圖片
占地:160平方米
中式四合院風格別墅設計圖,平屋頂,書房、茶室、健身房一應俱
占地:370平方米
四層雙拼豪華別墅設計圖及外觀效果圖,貴族氣質爆棚
占地:188.5平方米
140-150平方米新農村別墅設計圖紙,帶外觀效果圖,復式戶型
占地:146平方米
面寬8米的新農村三層自建房設計圖平屋頂,全套cad圖紙+效果圖
占地:115平方米
面寬20米大氣的農村二層別墅設計圖,戶型帶車庫和土灶房設計
占地:250.85平方米
農村二層半新中式小別墅設計圖(帶閣樓層),二層半自建房戶型
占地:144平方米
130平米最新氣派農村四層樓房設計圖,四層樓房圖片
占地:130平方米
外觀看起來高端、奢華的二層小別墅設計圖,推薦
占地:130平方米
12.5乘12米大氣優雅二層自建房設計圖,精美舒適布局實用
占地:149.27平方米
110平方米新農村實用現代的二層建筑設計圖紙帶外觀圖11X10米
占地:110平方米
四層豪華歐式別墅自建樓房設計圖紙,帶效果圖和全套施工圖
占地:300平方米
農村三層樓房設計圖紙及效果圖,經典自建圖紙
占地:201平方米
新款漂亮農村三層別墅建筑設計圖紙帶效果圖片,3種戶型
占地:125平方米
新農村三層房屋設計圖紙(含效果圖),農村小別墅圖紙推薦
占地:116.15平方米
農村中式二層4開間別墅圖紙設計方案圖,帶車庫戶型
占地:198平方米
推薦:10套新農村自建房設計圖,2026年最新設計
閱讀次數:4825737次
100套鄉村別墅圖片大全,2026年最新設計
閱讀次數:2492203次
6款農村蓋一層平房的設計圖,10萬元就能建起來
閱讀次數:1852637次
這11個一層農村自建房別墅火爆了朋友圈!我最喜歡戶型十!你呢
閱讀次數:750268次
農村6萬元建一層小別墅圖,你敢相信嗎
閱讀次數:567686次
農村5萬塊就能自建房,6套普通房子設計圖分享,你沒看錯!
閱讀次數:419410次
8套農村漂亮三間平房圖片,非常適合在農村修建!
閱讀次數:411197次
農村自建房化糞池怎么做?附方案及施工過程
閱讀次數:391783次
農村一層三間平房設計圖,告別土氣養老房,讓人忍不住點贊
閱讀次數:350581次
新農村二層樓房圖片造價12萬,挑一套回家建房吧!
閱讀次數:349126次
