
|
現在時代不一樣了,咱們農村自建房可以接受的風格也越多越多了,不單單是之前的中式和歐式了。現在是一個文化多元化的新時代,各種新生事物和新鮮事物頻繁碰撞和交匯,不要只盯著一點不放,要有的放矢地多嘗試一些其他的風格,就像本期我們將要推薦的這款設計方案,看看他是不是適合我們的新農村。 外觀效果圖:
頗具熱帶風情的小別墅,建筑整體造型別致,裝飾效果清新淡雅,沒有歐式風格那么張揚的外形,沒有傳統中式風格那些沉穩的裝飾,他自成一體,將家的溫馨和雅致結合的恰到好處。建筑設開放式車庫和露臺,布局合理,結構簡單,施工便利。 里面示意圖:
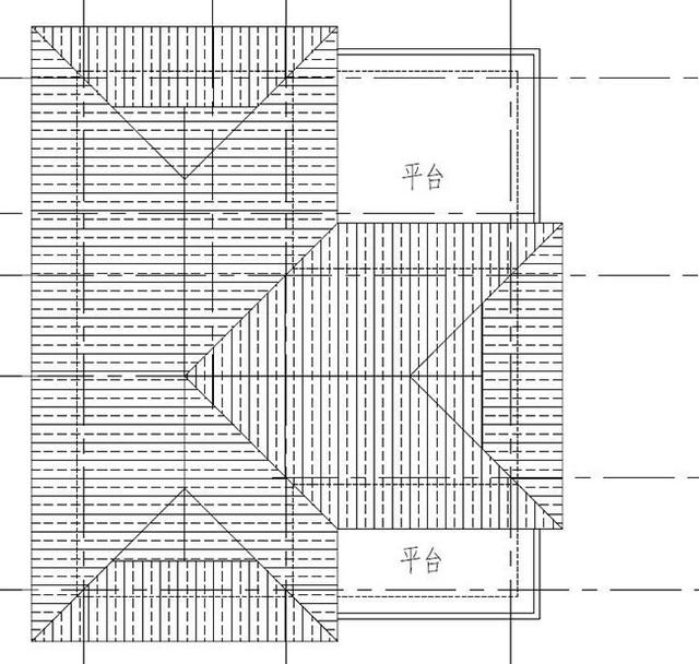
建筑設計尺寸:開間11.6米,進深9.1米,建筑占地105平米,建筑高度9.3米。建筑各立面效果如圖所示,戶型方正,設計巧妙。
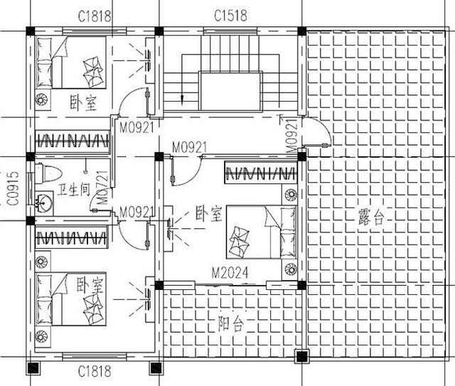
平面布局圖:
設計功能:建筑入戶設計客廳,右側戶外就是開放式車庫,內部廚房也是開放式設計,餐廳布局合理,一層預留兩間臥室,對門式設計,由公衛隔離,使用方便;二層設計三間臥室,室外有半開放式陽臺和大露臺,建筑整體時尚
![]() 圖紙之家-專注農村別墅/自建房設計18年,集合國內200余位經驗豐富的設計師,被評為口碑最好的農村建筑設計公司! |

90平農村自建房二層新款,占地不大但很實用,
占地:88平方米
豪華別墅設計圖紙(含效果圖),三層歐式別墅方案精選
占地:117平方米
10米×13米最好看的農村三層樓房圖,客廳中空
占地:124平方米
私人二層歐式別墅建筑設計圖(效果圖+全套別墅設計方案)
占地:144平方米
150平二層別墅房屋設計圖,現代風格,造型精致
占地:150平方米
歐式三層豪宅樓設計圖紙及外觀效果圖,占地180平左右
占地:177.82平方米
農村120平方房子設計圖,三層房屋設計圖精選
占地:120平方米
普通簡單的平屋頂二層房子設計,造價低施工簡單
占地:151.04平方米
二層中式四合院別墅設計圖,經典、漂亮(全套施工圖)
占地:350平方米
別致漂亮二層別墅設計圖紙,占地160平米左右,精致的外觀,讓人
占地:160平方米
農村18萬元二層小樓圖紙,漂亮實用的農村二層樓房設計圖
占地:140平方米
經典小戶型雙拼二層新農村房屋住宅設計圖,含效果圖
占地:80平方米
歐式風格三層別墅建筑設計圖,復式樓中樓結構
占地:138平方米
二層半別墅設計圖,占地150平米,帶露臺,地中海風格,內部布局
占地:150平方米
歐式風格高檔三層別墅設計圖紙,帶高清外觀效果圖
占地:105平方米
一層三間別墅設計圖,經濟實用 + 好看不貴,養老自住都適配
占地:119.31平方米
簡歐式三層半(4層)農村自建房別墅設計圖效果圖,帶車庫戶型
占地:127平方米
農村最漂亮二層歐式別墅設計圖,面寬16.5米(含車庫)
占地:180.366
帶車庫的一層雙拼別墅設計方案,出入方便保安全,大氣優雅還長
占地:179.7平方米
新農村三層房屋住宅設計圖紙大全(含效果圖)
占地:122平方米
推薦:10套新農村自建房設計圖,2026年最新設計
閱讀次數:4825737次
100套鄉村別墅圖片大全,2026年最新設計
閱讀次數:2492203次
6款農村蓋一層平房的設計圖,10萬元就能建起來
閱讀次數:1852637次
這11個一層農村自建房別墅火爆了朋友圈!我最喜歡戶型十!你呢
閱讀次數:750268次
農村6萬元建一層小別墅圖,你敢相信嗎
閱讀次數:567686次
農村5萬塊就能自建房,6套普通房子設計圖分享,你沒看錯!
閱讀次數:419410次
8套農村漂亮三間平房圖片,非常適合在農村修建!
閱讀次數:411197次
農村自建房化糞池怎么做?附方案及施工過程
閱讀次數:391783次
農村一層三間平房設計圖,告別土氣養老房,讓人忍不住點贊
閱讀次數:350581次
新農村二層樓房圖片造價12萬,挑一套回家建房吧!
閱讀次數:349126次
