
|
說道田園風格的別墅,很多人都是很向往的,在田園里建一棟這樣的房子,享受田園生活
如此簡單的造型,顯得格外清新脫俗,讓人感覺干凈利落,外觀都是真石漆,搭配藍色琉璃瓦,然而心曠神怡。下面我們看看平面的布局
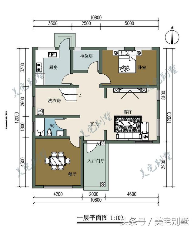
一層設置了客廳,廚房衛生間,還有獨立的餐廳,單獨的老人房,因為南北方差異較大,業主相信東北角是一個比較好的住人的地方,洗衣房設置在樓梯底下,充分利用了空間。
二層設置了挑空的客廳,這樣房間更加的明亮,讓整個室內看起來更加大氣,雖然只有很小的客廳,同樣能凸顯出大氣,此外二層一個臥室是和露臺聯通的,這樣方便晾曬東西,另外兩間也是次臥。 在立面方面,
外墻采用白色的真石漆,搭配米黃色,讓房子看起來更加的明亮清新,和田園風格更加相稱。
’ 北側設置了后面,方便出去
![]()
圖紙之家-專注農村別墅/自建房設計18年,集合國內200余位經驗豐富的設計師,被評為口碑最好的農村建筑設計公司! |

帶車庫現代三層樓房設計圖,外觀效果圖時尚、美觀
占地:160平方米
2026戶型方正三層農村小別墅設計圖紙(含外觀圖片)
占地:150平方米
170平方米農村二層房屋設計施工圖,外觀圖時尚、好看
占地:172平方米
舒適大方三層房屋設計圖紙及圖片,占地150平米,布局合理,臥室
占地:150平方米
農村二層舒適好房,這款四開間別墅設計圖真的很不錯
占地:220.46平方米
經典三層別墅設計圖,時尚典雅美觀大氣,新農村自建的理想之選
占地:119.45平方米
廚房餐廳在配房的歐式三層農村別墅設計方案,華麗又宜居
占地:177.58平方米
仿古中式三合院設計圖紙,帶堂屋,適合農村自建
占地:173平方米
農村三層半別墅設計圖及外觀效果圖,三層半樓房設計方案推薦
占地:100平方米
可以傳家的新中式二層別墅,經典耐看,再過幾十年也不過時
占地:146.81平方米
160平方米新農村三層半別墅設計圖11X16米65萬以內
占地:160平方米
新款私人定制四層歐式獨棟住宅別墅設計圖紙,含外觀效果圖
占地:138平方米左右
100平方米左右新農村二層房屋設計建筑CAD圖紙帶外觀效果圖
占地:多戶型可選
在農村30萬可以建造的三層別墅款式,帶別墅外觀圖片
占地:138平方米
農村超級好看的現代風格兩層小樓圖,清新優雅
占地:多種戶型
帶開放式車庫的二層別墅!配土灶、室外樓梯,新穎還顯品味
占地:127.2平方米
農村一層四開間自建別墅,美麗住宅如詩如畫里15米乘10米
占地:142平方米
農村60萬別墅款式設計圖及外觀效果圖,客廳中空
占地:150平方米
共用樓梯二層雙拼自建別墅設計圖,簡單大氣方正
占地:153.88平方米,
大面積農村一層房子設計圖,戶型實用、合理
占地:190平方米
推薦:10套新農村自建房設計圖,2026年最新設計
閱讀次數:4825737次
100套鄉村別墅圖片大全,2026年最新設計
閱讀次數:2492203次
6款農村蓋一層平房的設計圖,10萬元就能建起來
閱讀次數:1852637次
這11個一層農村自建房別墅火爆了朋友圈!我最喜歡戶型十!你呢
閱讀次數:750268次
農村6萬元建一層小別墅圖,你敢相信嗎
閱讀次數:567686次
農村5萬塊就能自建房,6套普通房子設計圖分享,你沒看錯!
閱讀次數:419410次
8套農村漂亮三間平房圖片,非常適合在農村修建!
閱讀次數:411197次
農村自建房化糞池怎么做?附方案及施工過程
閱讀次數:391783次
農村一層三間平房設計圖,告別土氣養老房,讓人忍不住點贊
閱讀次數:350581次
新農村二層樓房圖片造價12萬,挑一套回家建房吧!
閱讀次數:349126次
