
|
前些年,各種洋別墅在農村如雨后春筍,遍地開花。新穎的外觀,配上落地窗,再立幾根羅馬柱,當時看感覺很不錯,但今天看來似乎就有點落伍了。 說實話,最適合咱中國人的還是合院。或大或小,時間越久,越有韻味。今天給大家推薦5套合院戶型,1層、2層都有;中式、歐式、現代都有,看看有沒有合適你的吧。 第一套:中式三合院
占地尺寸:17.7m× 20.4m 占地面積:361平 建筑面積:268平 共設:5室 3廳 1廚 2衛 1娛樂房 設計好不好看布局,下面是這套合院的布局,非常實用。
第二套:最美不過中式,一見傾心
占地尺寸:19.5m×20.5m 占地面積:400平 建筑面積:223平 共設:5室 1中堂 1廚 1柴火房 3衛
第三套:帶堂屋的現代三合院 南方建房,堂屋是標配,平時不僅可堆放糧食,家里有個紅白喜事,也可用來供大家休息。
占地尺寸:19m×13m 占地面積:247平 建筑面積:300平 共設:6室 2廳 1堂屋 1棋牌室 1起居室 1廚 2衛 2露臺
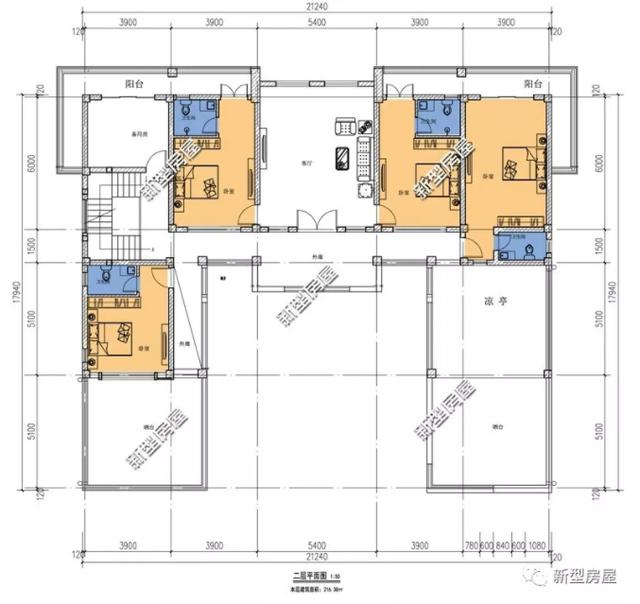
第四套:帶車庫的現代三合院 隨著生活水平的提高,房子有了當然還得有車,所以車庫成為了很多建房者的首選。
占地尺寸:21.24m 18m 占地面積:403平 建筑面積:500平 共設:7室 1茶室 1麻將室 3廳 1廚 9衛 1備用房 1涼亭 1曬臺 1車庫
第五套:雙拼現代三合院 兩兄弟建房,雙拼戶型最受歡迎,而像這種雙拼三合院戶型則是少之又少。
占地尺寸:22m×17.8m 占地面積:391平 建筑面積:800平 共設(單戶):8室 3廳 1廚 4衛 1儲藏間 1露臺
![]()
圖紙之家-專注農村別墅/自建房設計18年,集合國內200余位經驗豐富的設計師,被評為口碑最好的農村建筑設計公司! |

120平米農村40萬三層別墅自建房款式,簡歐風格
占地:120平方米
經典美式二層小別墅設計圖,回鄉建房不可不看的經典之作
占地:109.33平方米
農村四間一層房屋設計圖,160平方米,用來養老正合適!
占地:160平方米
農村20萬元二層小樓圖片及全套圖紙,外型美造價低
占地:多種戶型
農村三間兩層樓房設計圖,背面不開窗,氣勢上就勝人一籌
占地:153.7平方米
網紅農村一層小別墅設計圖,建一層的必看
占地:多戶型可選
二層門面房自建小樓設計圖紙及效果圖,占地150平
占地:151.83平方米
小占地三層現代時尚風別墅設計圖,平屋頂占地不足100平
占地:98.35平方米
新中式三層別墅,旋轉樓梯+挑空客廳,高級感拉滿
占地:125平方米
共用樓梯二層雙拼自建別墅設計圖,簡單大氣方正
占地:153.88平方米,
農村四層雙拼別墅房屋設計圖,造型現代、大氣
占地:220平方米
預算20萬的農村三層房屋設計圖方案,帶外觀效果圖
占地:115平方米
開間20米雙拼別墅三層設計圖,兄弟合建省時省力又省心
占地:205.8平方米
農村三間三層豪宅設計圖,自建別墅推薦戶型,帶地下室
占地:170平方米
自建二層獨棟別墅建筑施工圖,含效果圖和全套設計圖紙
占地:198.72平方米
農村三層半別墅設計圖及外觀效果圖,三層半樓房設計方案推薦
占地:100平方米
一層新中式三合院設計,建好城里大平層都不香了
占地:294.12平方米
180平方米新農村雙拼戶型別墅房屋設計圖紙帶外觀圖17X11米
占地:180平方米
16米乘11米接地氣農村二層自建房圖,帶配房設計
占地:149.8平方米
115平漂亮的三層別墅設計方案,外觀圖片大氣、精致
占地:115平方米
推薦:10套新農村自建房設計圖,2026年最新設計
閱讀次數:4825737次
100套鄉村別墅圖片大全,2026年最新設計
閱讀次數:2492203次
6款農村蓋一層平房的設計圖,10萬元就能建起來
閱讀次數:1852637次
這11個一層農村自建房別墅火爆了朋友圈!我最喜歡戶型十!你呢
閱讀次數:750268次
農村6萬元建一層小別墅圖,你敢相信嗎
閱讀次數:567686次
農村5萬塊就能自建房,6套普通房子設計圖分享,你沒看錯!
閱讀次數:419410次
8套農村漂亮三間平房圖片,非常適合在農村修建!
閱讀次數:411197次
農村自建房化糞池怎么做?附方案及施工過程
閱讀次數:391783次
農村一層三間平房設計圖,告別土氣養老房,讓人忍不住點贊
閱讀次數:350581次
新農村二層樓房圖片造價12萬,挑一套回家建房吧!
閱讀次數:349126次
