
|
對于建房者來說,在建房的時候,一棟房子無論是從造型外觀到室內布局都要反復推敲,選擇出自己最滿意的設計方案,這樣建造出來的房子才能更貼近自己的想法。今天小編給大家挑選了7款開間9米三層四層農村自建房圖紙,每一款均有自己獨特的風格,為什么選擇蓋戶型6最多? 【戶型1】 圖紙詳情介紹 層數: 三層 結構形式: 磚混結構 主體造價:26萬 開間:9米 進深:12米 占地面積: 114.61平方米 建筑面積:308.94平方米
戶型1 戶型1是經典的歐式設計風格,采用膚色、淡黃色為主色,配色淡雅清新,給人一種清新明快的視覺感受,前面上的浮雕是點睛之筆,更加凸顯出房屋的高貴雅致;二三樓分別設有露臺,方便晾曬和欣賞風景,提供休閑空間。 設計功能及平面圖展示
一 層:堂屋、餐廳、廚房、衛生間、臥室
二 層:客廳(帶露臺)、臥室(帶陽臺)、臥室、衛生間
三 層:臥室x2、娛樂室、露臺、衛生間 【戶型2】 圖紙詳情 層數: 三層 結構形式: 框架結構 主體造價: 28萬 開間: 8.55米 進深: 11.6米 占地面積: 123.2平方米 建筑面積: 282.35平方米
戶型2 戶型2的超大拱形窗給人深刻的印象,一眼看到就會被吸引,時尚大氣。外墻采用暗紅色和淺黃色裝飾,配色低調美觀。室內布局從現代人的生活習慣來合理設計,二樓設有多個臥室套房,滿足現代人的生活需求。 設計功能
一層平面圖 一 層: 客廳、餐廳、廚房、老人房、衛生間
二層平面圖 二 層: 臥室(帶衣帽間)、臥室(帶陽臺)、臥室×3、公衛
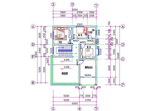
三層平面圖 三 層: 臥室×3、屋頂花園、棋牌活動室、公衛 【戶型3】 圖紙詳情 層數: 四層 結構形式: 框架結構 開間: 9.276米 進深:12.816米 占地面積: 108.91平方米 建筑面積:419.82平方米 建筑總高度:15.4米 主體造價:40萬
戶型3 戶型3共有四層樓,整棟房子設計十分氣派,外墻采用淺色裝飾,低調中又給人一種清新淡雅的感覺,門廊上及陽臺上方的雕花十分別致,提升了房屋的檔次。屋頂有大露臺,房屋四周開窗,采光透氣。共設有11間臥室,滿足大家庭住房需求。
背面效果圖
俯視圖 設計功能
一層平面圖 一 層:門廳、客廳、餐廳、廚房、臥室×2、公衛
二層平面圖 二 層: 家庭廳(帶陽臺)、主臥(帶衣帽間)、次臥×2、書房、公衛
三層平面圖 三 層布局與二層相同。
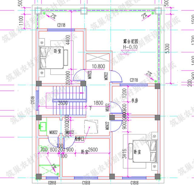
四層平面圖 四層: 臥室×3、書房、公衛、露臺花園 【戶型4】 圖紙詳情 層數: 三層 結構形式: 磚混結構 主體造價:20萬 開間: 8.5米 進深: 12.9米 占地面積: 103平方米 總建筑面積: 226平方米
戶型4 戶型4外觀簡約大方,共設有2廳6臥,空間設計合理,廚房獨立設計,潔污分區,二三層均設有大露臺,活動空間充足。施工難度不高,主體造價20萬左右,造價不高,契合農村建房實際。 設計功能
一層平面圖 一 層: 客廳(農村與餐廳共用)、廚房、主臥室、次臥室、衛生間
二層平面圖 二 層:休息廳、主臥室帶露臺、次臥室帶陽臺、客臥、衛生間
三層平面圖 三 層: 臥室、陽臺、大露臺 【戶型5】 圖紙屬性 層數: 三層 結構形式: 磚混結構 主體造價: 23萬 開間: 9.2米 進深: 10.87米 占地面積: 100平方米 建筑面積: 280平方米
戶型5 戶型5設計簡單大氣,色塊的拼接很頗具特色,一層是采用比較耐臟的灰色,二三層使用二樓設有大陽臺,三樓有大露臺,屋頂坡面設計,整體設計經濟實用,結構緊湊,空間分配合理,明廚明衛。 平面圖展示:
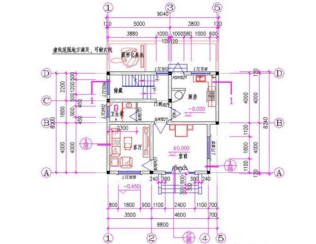
一層平面圖 一 層:車庫,客廳,臥室,廚房,餐廳,公共衛生間
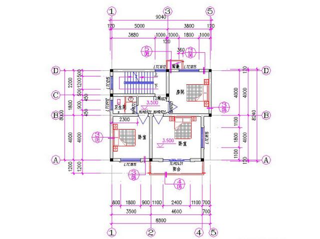
二層平面圖 二 層:四間臥室(其中一個臥室帶陽臺)、公共衛生間
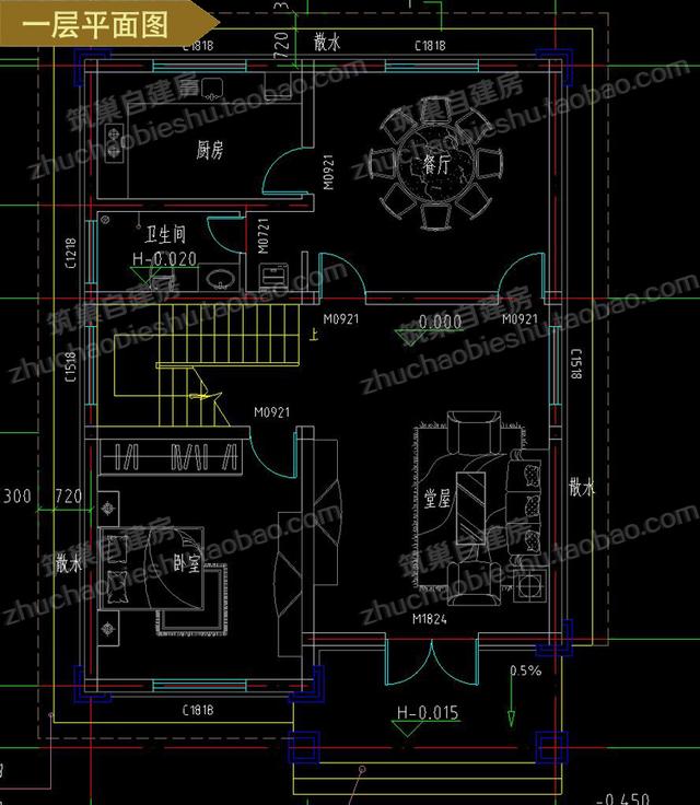
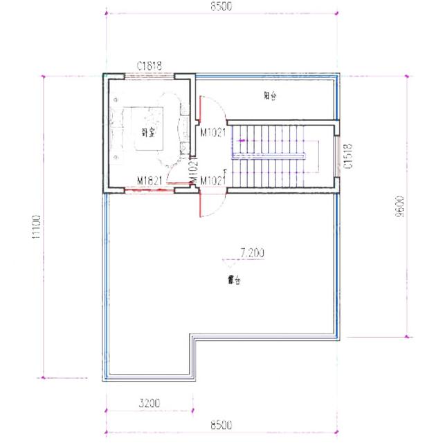
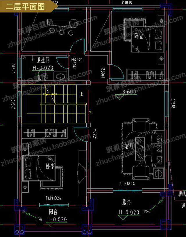
三層平面圖 三 層:3臥室,露臺,公共衛生間 【戶型6】 戶型6共有三層,開間 9.4m × 進深 10.8m ,占地面積106平方米,總建筑面積268 ㎡ , 結構形式:磚混結構,主體造價大概23萬。
戶型6 這套戶型設計簡潔大氣,沒有太復雜的設計,這種設計對于農村建房來說也是比較實際的。一二層外墻采用紅色墻磚裝飾,并使用較淡的土黃色墻磚鑲嵌,看起來不會太單調,三層采用淡雅的淺黃色真石漆涂刷,屋頂坡面設計,使用灰色裝飾,與外墻色彩百搭,白色的門廊和欄桿為色塊之間起到調和作用,看起來更自然清新。
背面效果圖 平面圖展示:
【戶型7】 圖紙詳情 層數: 三層 結構形式: 磚混結構 主體造價: 21萬 開間: 8.8米 進深: 8米 占地面積: 97.42平方米 建筑面積: 246.60平方米
戶型7 戶型7一層外墻采用灰色蘑菇石裝飾,比較耐臟,二三層使用淡雅的米黃色墻漆涂刷,屋頂灰色坡面設計,配色上比較低調耐看。二三層均設有外挑陽臺,延伸室內空間,提供了晾曬場地,同時也方便觀賞鄉村美景。 設計功能
一層平面圖 一 層: 客廳、堂前、儲藏室、廚房、衛生間
二層平面圖 二 層: 臥室(附陽臺)、臥室、臥室、衛生間
三層平面圖 三 層: 臥室(附陽臺)、臥室、臥室、衛生間 圖紙之家-專注農村別墅/自建房設計18年,集合國內200余位經驗豐富的設計師,被評為口碑最好的農村建筑設計公司! |

95平方米農村四層房屋設計圖,8米X11米 ,預算37萬
占地:95平方米
小戶型經濟農村雙拼自建房別墅設計圖紙,二層簡約造價低
占地:138平方米
三層半復式別墅設計方案,全套設計圖+效果圖
占地:160平方米
豪華農村帶露臺三層樓房別墅設計圖紙,占地200平方米左右
占地:200平方米
275平方米新農村雙拼樓中樓戶型別墅設計圖紙及效果圖21X14米
占地:275平方米
14x11米一層平房戶型設計圖,帶前后門設計,好看不貴還實用!
占地:143.59平方米
110平方米新農村三層別墅設計圖,含外觀效果圖
占地:109平方米
2026兩層半20多萬農村自建房圖,簡歐風格,美觀大氣
占地:120平方米
二層兄弟雙拼農村別墅圖新中式,兄弟這樣建房,大氣省錢
占地:143.412平方米
30萬預算三層別墅設計圖紙及效果圖,新農村自建推薦
占地:110平方米
造價30萬左右的三層樓房設計圖,占地120平米左右
占地:120平方米
一層中式七字型房屋設計圖,帶院子經典設計,耐看不過時
占地:163.18平方米
高端大氣中式四合院二層別墅小樓設計圖,外觀古香古色
占地:213平方米
新農村二層住宅設計圖紙,簡單別墅設計圖(含效果圖)
占地:77.6平方米
兩間二層農村自建房設計圖,面積雖小功能齊全,布局緊湊。
占地:118.75平方米
2026新款農村四層別墅設計圖紙戶型圖,帶挑空客廳
占地:150平方米
簡簡單單一層農村自建別墅方案,布局緊湊又不擁擠
占地:133.55平方米
農村帶地下室二層半自建房屋設計圖,樓中樓設計,歐式風格
占地:140平方米
全網都在抄的二層別墅!爆款12米面寬設計戶型太實用
占地:139.51平方米
130平方米農村兩層別墅圖紙及效果圖12X11米
占地:133平方米
推薦:10套新農村自建房設計圖,2026年最新設計
閱讀次數:4825737次
100套鄉村別墅圖片大全,2026年最新設計
閱讀次數:2492203次
6款農村蓋一層平房的設計圖,10萬元就能建起來
閱讀次數:1852637次
這11個一層農村自建房別墅火爆了朋友圈!我最喜歡戶型十!你呢
閱讀次數:750268次
農村6萬元建一層小別墅圖,你敢相信嗎
閱讀次數:567686次
農村5萬塊就能自建房,6套普通房子設計圖分享,你沒看錯!
閱讀次數:419410次
8套農村漂亮三間平房圖片,非常適合在農村修建!
閱讀次數:411197次
農村自建房化糞池怎么做?附方案及施工過程
閱讀次數:391783次
農村一層三間平房設計圖,告別土氣養老房,讓人忍不住點贊
閱讀次數:350581次
新農村二層樓房圖片造價12萬,挑一套回家建房吧!
閱讀次數:349126次
