
|
16×11米3廳8臥帶觀景涼亭棋牌室大露臺自建房圖紙,造價40萬! 這套自建房圖紙外墻采用淡黃色墻磚裝飾,開間很大,一樓設有走廊,二樓有陽臺,三樓有大露臺,還有觀景涼亭,休閑舒適。利用多處拱形設計,線條優美,整棟房子給人一種大氣的視覺美感。
層數:三層 開間:16米 進深:10.5米 首層占地面積:168.42平方米 總建筑面積:436.08平方米 結構形式:磚混結構 主體造價:40萬 功能設計:
一層平面圖 一層:客廳、棋牌室、臥室×2、雜物間、衛生間、廚房、餐廳
二層平面圖 二層:客廳(帶陽臺)、雜物間、書房(帶陽臺)、臥室×3、衣帽間、衛生間
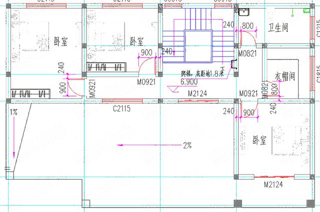
三層平面圖 三層:臥室(帶陽臺)、臥室×2、衛生間、大露臺 圖紙之家-專注農村別墅/自建房設計18年,集合國內200余位經驗豐富的設計師,被評為口碑最好的農村建筑設計公司! |

80平方米鄉村一層半帶閣樓自建別墅設計圖,帶車庫
占地:80平方米
125平方米新中式農村自建三層別墅建筑設計圖紙及效果圖
占地:124平方米
110平方米新農村三層別墅設計圖,含外觀效果圖
占地:109平方米
20萬左右農村雙拼別墅住宅設計圖,簡單小戶型設計
占地:120平方米
農村三層15萬自建房圖,小戶型別墅設計方案圖
占地:60平方米
三層復式別墅設計圖紙(含效果圖),復式住宅設計圖精選
占地:147.7平方米
四層(三層半)豪華歐式別墅房屋設計圖,外觀高端、大氣
占地:150平方米
農村二層復式小別墅設計,進深12米,農村建房最受歡迎的款
占地:149.096 平方
二層門面房自建小樓設計圖紙及效果圖,占地150平
占地:151.83平方米
歐式風格三層自建房設計圖,外觀高端大氣,彰顯業主的高貴品質
占地:180平方米
歐式二層別墅cad施工圖紙,含效果圖,歐式別墅設計圖紙展示
占地:189平方米
小型三層別墅cad建筑圖紙帶效果圖,帶屋頂露臺
占地:101平方米左右
13X13米新農村中式風三層別墅設計方案,內部布局緊湊溫馨
占地:168.43平方米
鄉村三層別墅CAD建筑設計圖,110平方米戶型,帶效果圖和全套施工
占地:110平方米
預算30萬左右的新農村三層房屋設計圖推薦,含外觀效果圖
占地:117平方米
一層中式風格自建小院,白墻黛瓦舒適宜居,享受舒適愜意的鄉村
占地:263.94平方米
農村2026新式好看又簡單的二層樓房設計圖,外形美觀,家用足夠
占地:200平方米
歐式大戶型三層農村房屋設計圖紙,歐式住宅圖推薦
占地:178平方米
帶庭院中式二層四合院別墅設計效果圖片,方方正正
占地:404平方米
兩戶250平方米農村豪華歐式三層兄弟雙拼別墅設計圖
占地:251平方米
推薦:10套新農村自建房設計圖,2026年最新設計
閱讀次數:4825737次
100套鄉村別墅圖片大全,2026年最新設計
閱讀次數:2492203次
6款農村蓋一層平房的設計圖,10萬元就能建起來
閱讀次數:1852637次
這11個一層農村自建房別墅火爆了朋友圈!我最喜歡戶型十!你呢
閱讀次數:750268次
農村6萬元建一層小別墅圖,你敢相信嗎
閱讀次數:567686次
農村5萬塊就能自建房,6套普通房子設計圖分享,你沒看錯!
閱讀次數:419410次
8套農村漂亮三間平房圖片,非常適合在農村修建!
閱讀次數:411197次
農村自建房化糞池怎么做?附方案及施工過程
閱讀次數:391783次
農村一層三間平房設計圖,告別土氣養老房,讓人忍不住點贊
閱讀次數:350581次
新農村二層樓房圖片造價12萬,挑一套回家建房吧!
閱讀次數:349126次
