
|
放眼觀看,現在的農村房屋是越來越時尚大氣了,一棟棟小洋樓展現在我們的眼前,別墅成群,那些簡單單調的農村紅磚房已成為歷史,逐漸被設計別致、外觀亮麗的別墅取代。這或許正是人們生活條件有所提升的一種表現吧!今天小編給大家分享5款三層農村別墅設計圖,均是坡屋頂設計,一起來看看! 【戶型1】 圖紙詳情 層數: 三層 結構形式: 框架結構 主體造價: 32萬 開間: 10.8米(不含門柱) 進深: 11.5米 占地面積: 133.39平方米 總建筑面積: 325.84平方米
戶型1 戶型1利用多落地窗設計,時尚美觀,外墻采用淺黃色墻漆裝飾,搭配紅色坡屋頂,配色簡單大方。屋頂設計很有參層次感,三樓還有大露臺,是休閑時光的好去處。 設計功能 一層: 玄關、挑空客廳、廚房、餐廳、主臥(帶衛生間)、臥室、公衛 二 層: 休息廳(帶陽臺)、主臥(帶衛生間)、次臥×2、公衛 三層: 主臥(帶衛生間)、次臥×2、書房、露臺、公衛 平面圖展示
一層平面圖
二層平面圖
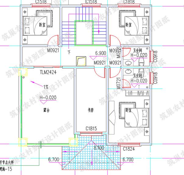
三層平面圖 【戶型2】 戶型基本信息: 層數: 三層 結構形式: 框架結構 主體造價: 28-33萬 開間: 13.3米 進深: 14.6米 占地面積: 147平方米 建筑面積: 366.4平方米
戶型2 戶型2可以說是目前比較受歡迎的一款設計,獨特的結構設計,加上清爽的配色,精美豪華。設有車庫、多個落地窗,多露臺,還有挑空客廳等,現代時尚。 建成效果圖展示
建成效果圖 室內布局平面圖展示:
一層平面圖 一 層: 車庫、客房、客廳、廚房、餐廳、衛生間
二層平面圖 二 層: 主臥室(附陽臺、露臺)、客廳、2間臥室、衛生間、書房(附陽臺、衛生間)
三層平面圖 三 層: 2間臥室、主臥室(附大露臺)、書房(附陽臺、衛生間)、活動廳、衛生間 【戶型3】 效果圖展示 本戶型共有三層;采用框架結構;開間進深12m×13.73m;占地面積185.54㎡;建筑面積420.65㎡,主體造價40萬元;
戶型3 戶型3給人最大的感受,就是豪華大氣,門柱的設計高聳氣派,多個聯體通窗玻璃設計采光大氣,呈現給人們一個現代感十足的視覺效果。藍色的坡面屋頂搭配黃白色外墻,協調美觀。一層設有復試大客廳,三層設有棋牌室,方便放松娛樂,還設有佛堂,契合農村民俗需要。
俯視圖 設計功能
一層平面圖 一層:門廳、復試客廳、廚房、餐廳、臥室×2、衛生間×2
二層平面圖 二層:臥室(帶內衛、書房)、臥室、書房、衛生間
三層平面圖 三層:佛堂、儲藏室、棋牌室、衛生間、臥室(帶陽臺)、洗衣房、露臺 【戶型4】 層數: 三層 結構形式: 磚混結構 主體造價: 28萬 開間: 12.44米 進深: 13.72米 占地面積: 125平方米 建筑面積: 329平方米
戶型4 戶型4整體設計很有層次感,前后設有露臺,休閑舒適,客廳采用挑空設計,寬敞明亮,有超大落地窗,漂亮又采光,有架空車庫,方便停車。超大落地窗采光漂亮,整體功能設計明確合理,功能布局流暢! 別墅戶型功能設計及平面圖展示
一層平面圖 一 層: 客廳(挑空廳)、臥室、廚房、餐廳、衛生間、車庫
二層平面圖 二 層: 主臥(附內衛,屋面平臺)、2臥室、衛生間 、會客廳
三層平面圖 三 層: 臥室(附書房,衛生間,陽臺)、起居室、露臺 【戶型5】 別墅戶型簡介 層數: 三層 結構形式: 框架結構 主體造價: 28萬 開間: 12.8米 進深: 12.5米 占地面積: 140平方米 建筑面積: 279平方米 別墅效果圖
戶型5 戶型5配色給人鮮明快活的視覺感,清爽色彩配上富有層次感的結構設計,美觀大氣。高至二層的拱形大門,尊貴華麗,車庫、落地窗、大露臺和室內的挑空客廳,為戶型增添光彩。 本套別墅設計圖室內功能設計 一 層: 門廳,客廳(挑空廳),臥室,廚房,餐廳,車庫,公共衛生間 二 層: 主臥(帶衛生間,陽臺),臥室,公共衛生間 三 層: 2臥室,公共衛生間,露臺 部分平面圖展示
一層平面圖
二層平面圖 圖紙之家-專注農村別墅/自建房設計18年,集合國內200余位經驗豐富的設計師,被評為口碑最好的農村建筑設計公司! |

農村一層四開間自建別墅,美麗住宅如詩如畫里15米乘10米
占地:142平方米
140-150平方米新農村別墅設計圖紙,帶外觀效果圖,復式戶型
占地:146平方米
面寬22米的高端三層自建房別墅設計圖,功能齊全
占地:222.47平方米
14米×10米農村二層小別墅自建房設計圖,外觀設計時尚美觀
占地:125平方米
140平米平屋頂二層新農村自建房設計圖,極簡主義設計 ,實用優
占地:143平方米
125平兩層別墅房屋設計圖,帶普通和復式兩個戶型
占地:125平方米
農村2開間三層經濟別墅設計圖,9.6米面寬,實用布局
占地:127.68平方米
150平二層別墅房屋設計圖,現代風格,造型精致
占地:150平方米
背面不開窗二層別墅設計圖,對稱設計簡單好看,眾多建房者的選
占地:183.79平方米
140平二層帶閣樓別墅設計方案圖,外觀圖片色彩明快
占地:140平方米
2026最新款50萬左右農村三層別墅設計圖,客廳中空
占地:160平方米
漂亮時尚二層樓房設計圖紙,經濟實用,戶型通透
占地:150平方米
三層復式別墅設計圖紙(含效果圖),復式住宅設計圖精選
占地:147.7平方米
160平小開間大進深農村三層別墅設計圖紙
占地:158.73平方米
鄉村兄弟二層小戶型雙拼房屋別墅設計圖,造價低,面積小
占地:多種戶型
面寬14.5米三層獨棟別墅設計圖,經典設計,大氣之作
占地:123.85平方米
三層現代平頂別墅設計圖,簡約時尚百看不厭,外觀令人驚艷!
占地:125.142平方米
二層半新中式別墅設計圖,農村自建24萬,帶庭院規劃設計
占地:140.68平方米
農村120平三層樓房設計圖,造型現代,帶屋頂花園
占地:120平方米
兄弟倆二層雙拼別墅設計圖紙,一層共用,設計新穎
占地:180平方米
推薦:10套新農村自建房設計圖,2026年最新設計
閱讀次數:4825737次
100套鄉村別墅圖片大全,2026年最新設計
閱讀次數:2492203次
6款農村蓋一層平房的設計圖,10萬元就能建起來
閱讀次數:1852637次
這11個一層農村自建房別墅火爆了朋友圈!我最喜歡戶型十!你呢
閱讀次數:750268次
農村6萬元建一層小別墅圖,你敢相信嗎
閱讀次數:567686次
農村5萬塊就能自建房,6套普通房子設計圖分享,你沒看錯!
閱讀次數:419410次
8套農村漂亮三間平房圖片,非常適合在農村修建!
閱讀次數:411197次
農村自建房化糞池怎么做?附方案及施工過程
閱讀次數:391783次
農村一層三間平房設計圖,告別土氣養老房,讓人忍不住點贊
閱讀次數:350581次
新農村二層樓房圖片造價12萬,挑一套回家建房吧!
閱讀次數:349126次
