
|
很多人總是問小編,有沒有造價低,建出來好看大方,三層的自建房圖紙啊,艾瑪,要求真是不一般啊,為了滿足這類客戶的需求,小編真是竭盡全力啊,現在就介紹一款這樣的三層自建房圖紙給大家。看看能不能解決大家的需求呢?
農村別墅基本信息 ? 占地尺寸:11.5x10.1米 ? 占地面積:116.15㎡ ? 建筑面積:307㎡ ? 建筑面積:307㎡ ? 建筑情況:6室2廳5衛2書房1廚房1起居室1娛樂室1洗衣房 ? 建筑結構:磚混結構 ? 造價估算: 20-26萬
效果圖 本套圖紙有施工圖和效果圖,包打印(效果圖為彩圖,施工圖為A3大圖) 這款造價22-26萬,而且還是三層的,要外觀有外觀,要仰天有陽臺。
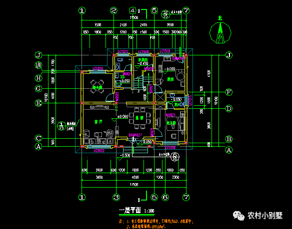
一層門廳與客廳相對,拓寬了兩廳空間。廚房開后門處理雜物進出方便,減少穿套。
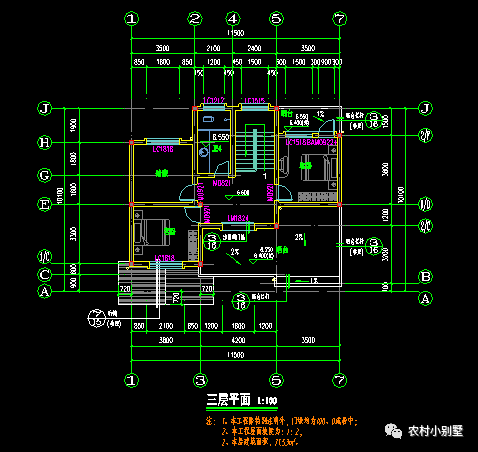
▲ 首層平面圖 二層主臥獨占一面,環境安靜,獨立的書房便于辦公。 ▲ 二層平面圖 三層設兩間臥室和一間公共書房,布局簡潔,可供子女使用。 ▲ 三層平面圖 立面圖
有的農村家庭喜歡有一個堂屋,方便待客,這款自建房就滿足了大家的需求吧,而且這款自建房的布局也十分的緊湊,還有一個老人房,對于家庭有老人的再合適不過。有人說從效果圖來看并不是很好看啊,那就來看看建出來的效果啊
造價如果少卻能建出這么好看的房子,小編覺得也已經足夠了,你們覺得呢? 圖紙之家-專注農村別墅/自建房設計18年,集合國內200余位經驗豐富的設計師,被評為口碑最好的農村建筑設計公司! |

被包工頭夸爆的二層別墅戶型!建好未來幾年必火
占地:189.98平方米
獨棟別墅設計戶型圖帶外觀效果圖,雙向樓梯設計
占地:155平方米
新農村三層房屋cad建筑設計圖紙,磚混結構
占地:138平方米
豪華雙拼三層別墅設計圖,在農村建一棟,將是最靚的風景!
占地:186.85平方米
2026帶車庫三層雙拼別墅房屋設計圖,配色淡雅低調
占地:224平方米
好評不斷二層簡歐房屋設計圖,占地150平,農村建房就選它
占地:150平方米左右
150平農村二層復式別墅房屋設計方案圖,帶外觀效果圖片
占地:150平方米
雙拼小別墅設計圖紙(含效果圖),二層別墅設計方案精選
占地:130平方米
高端二層新中式四合院別墅設計圖,含全套CAD施工圖
占地:217平方米
漂亮的二層中式現代別墅圖,配色非常的溫馨淡雅
占地:160平方米
新農村二層半房屋設計圖紙及效果圖,別墅設計圖精選
占地:113平方米
客廳中空三層復式別墅房屋設計圖,帶外觀效果圖
占地:145平方米
四層復式別墅設計方案,外觀氣派布局實用,舒適宜居美極了!
占地:204.64平方米
小型雙拼一層平房設計圖,外觀古樸
占地:100平方米
新農村二層帶露臺經濟型小別墅設計圖紙,含外觀效果圖
占地:120平方米
新農村住宅設計圖集,三層房屋設計圖紙展示
占地:110平方米
最漂亮的一層平房圖片及設計圖,造價18萬左右,結構簡單易于施
占地:186平方米
2026新款戶型三層新農村別墅房屋設計圖紙,外觀對稱
占地:160平方米
鄉村三層別墅施工圖紙帶效果圖,田園別墅設計圖紙推薦
占地:178平方米
110平農村二層房屋設計圖,新農村自建房戶型推薦
占地:110平方米
推薦:10套新農村自建房設計圖,2026年最新設計
閱讀次數:4825737次
100套鄉村別墅圖片大全,2026年最新設計
閱讀次數:2492203次
6款農村蓋一層平房的設計圖,10萬元就能建起來
閱讀次數:1852637次
這11個一層農村自建房別墅火爆了朋友圈!我最喜歡戶型十!你呢
閱讀次數:750268次
農村6萬元建一層小別墅圖,你敢相信嗎
閱讀次數:567686次
農村5萬塊就能自建房,6套普通房子設計圖分享,你沒看錯!
閱讀次數:419410次
8套農村漂亮三間平房圖片,非常適合在農村修建!
閱讀次數:411197次
農村自建房化糞池怎么做?附方案及施工過程
閱讀次數:391783次
農村一層三間平房設計圖,告別土氣養老房,讓人忍不住點贊
閱讀次數:350581次
新農村二層樓房圖片造價12萬,挑一套回家建房吧!
閱讀次數:349126次
