
|
挑選自建房戶型,不同人有不同的想法。有人喜歡歐式風格,還有人喜歡中式傳統;有人家里比較富裕、宅基地面積寬大,所以就想把房子蓋得豪華大氣一點;還有人家里的宅基地面積狹小,只能修建小巧精致的房子。這個只能是見仁見智,根據自己的實際來確定戶型。 今天給大家帶來4套160平米三層別墅,14X13米戶型方正實用,堪稱農村自建房的首選! 第一套
正面效果圖
背面效果圖
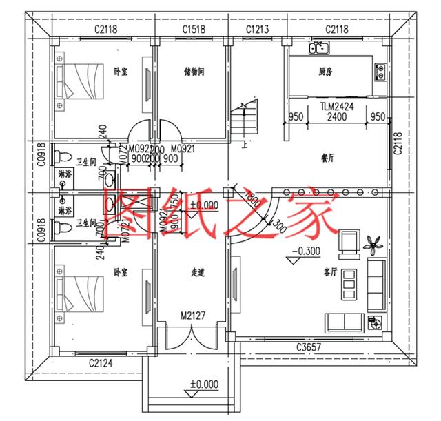
鳥瞰效果圖 占地面積:13.8m*12.9m,一層占地175平方米左右(含外門庭); 建筑層高:三層; 建筑高度:11.7米(含屋頂); 設計功能: 一 層:客廳、廚房、餐廳、臥室(帶衛生間)、臥室、儲藏間、衛生間; 二 層:客廳上空、臥室(帶衛生間)×2、臥室、書房、衛生間; 三 層:自由活動室、陽光房、露臺;
一層平面圖
二層平面圖
三層平面圖 第二套
正面效果圖
背面效果圖
鳥瞰效果圖 占地面積:13.6m*12.6m,一層占地175平方米左右; 建筑層高:三層; 建筑高度:13.36米(含屋頂); 設計功能: 一 層:客廳、廚房、餐廳、臥室(帶衣帽間)、臥室、棋牌室、衛生間; 二 層:客廳、臥室x2、衛生間、陽臺; 三 層:客廳、臥室(帶衣帽間)、臥室x2、衛生間、大露臺;
一層平面圖
二層平面圖
三層平面圖 第三套
正面效果圖
背面效果圖
鳥瞰效果圖 占地面積:13.2m*12.7m,一層占地167平方米左右(含外門庭); 建筑層高:三層; 建筑高度:14.0米(含屋頂); 設計功能: 一 層:客廳、廚房、餐廳、臥室(帶衛生間)、臥室、衛生間; 二 層:客廳上空、臥室(帶衛生間)×3、影音室、露臺; 三 層:起居室、書房、臥室(帶衛生間)×3;
一層平面圖
二層平面圖
三層平面圖 第四套
正面效果圖
背面效果圖
鳥瞰效果圖 占地面積:13.0m*12.4m,一層占地160平方米左右(含外門庭); 建筑層高:三層; 建筑高度:12.6米(含屋頂); 設計功能: 一 層:堂屋、廚房、餐廳、臥室×3、衛生間、車庫; 二 層:客廳、廚房、餐廳、棋牌室、娛樂室、衛生間; 三 層:起居室、臥室x4、衛生間×2、陽臺;
一層平面圖
二層平面圖
三層平面圖 這幾套別墅的設計圖,你最喜歡哪一套? 圖紙之家-專注農村別墅/自建房設計18年,集合國內200余位經驗豐富的設計師,被評為口碑最好的農村建筑設計公司! |

四合院別墅設計效果圖及平面圖,全套施工圖紙
占地:220平方米
時尚的農村二層別墅圖紙設計,現代風格,簡約的外觀
占地:152平方米左右
歐式豪華三層別墅設計圖,占地面積170平米,高端大氣帶露臺
占地:170平方米
面寬13米簡簡單單一層農村自建別墅設計圖,方正大氣經濟宜居
占地:126.1平方米
歐式二層別墅cad施工圖紙,含效果圖,歐式別墅設計圖紙展示
占地:189平方米
二層農村小別墅設計圖,造價經濟實惠,參考價30萬以內
占地:140平方米
2026年新款二層半農村自建小別墅設計圖紙,占地150平方米
占地:150平方米
135平三層農村樓房設計圖及效果圖,造價20萬左右
占地:135平方米
氣派的帶旋轉樓梯三層別墅房屋設計圖,戶型很好
占地:150平方米
仿古建筑中式祠堂設計圖紙及外觀效果圖
占地:546平方米
農村兩層半樓房設計圖,平面功能分區明確,布置合理
占地:180平方米
一層共用,二層兄弟雙拼的二層別墅設計圖
占地:182.48平方米
175平大客廳三層別墅房屋設計圖,含外觀造型現代,美觀
占地:175平方米
最漂亮五間一層自建別墅設計圖,布局實用顏值高!
占地:多戶型可選
新農村二層小別墅全套設計圖紙(含外觀效果圖)
占地:85.6平方米
130平四間二層小洋樓設計圖,含外觀圖片
占地:130平方米
超實用的農村一層別墅設計圖,經濟實惠養老自住都不錯,
占地:128.35平方米
農村三層復式樓房住宅設計圖,私人別墅設計
占地:165平方米
奢華歐式二層樓房設計圖,入戶設有玄關,一層大窗設計
占地:190平方米
面寬15米的農村三層房屋設計圖,帶別墅效果圖
占地:137平方米左右
推薦:10套新農村自建房設計圖,2026年最新設計
閱讀次數:4825737次
100套鄉村別墅圖片大全,2026年最新設計
閱讀次數:2492203次
6款農村蓋一層平房的設計圖,10萬元就能建起來
閱讀次數:1852637次
這11個一層農村自建房別墅火爆了朋友圈!我最喜歡戶型十!你呢
閱讀次數:750268次
農村6萬元建一層小別墅圖,你敢相信嗎
閱讀次數:567686次
農村5萬塊就能自建房,6套普通房子設計圖分享,你沒看錯!
閱讀次數:419410次
8套農村漂亮三間平房圖片,非常適合在農村修建!
閱讀次數:411197次
農村自建房化糞池怎么做?附方案及施工過程
閱讀次數:391783次
農村一層三間平房設計圖,告別土氣養老房,讓人忍不住點贊
閱讀次數:350581次
新農村二層樓房圖片造價12萬,挑一套回家建房吧!
閱讀次數:349126次
