
|
現在農村自建房與時俱進,很多家庭都會選擇設計玄關。大家不要以為玄關只是一個擺設,尤其是冬天,它起到了一個視覺屏障的作用,不會讓人走進室內對室內布局一覽無余,而且還可以阻止冷空氣進入室內,形成一個溫差保護區。自建房設計玄關究竟有沒有用,看完這3套自建房,你就清楚了。 戶型一
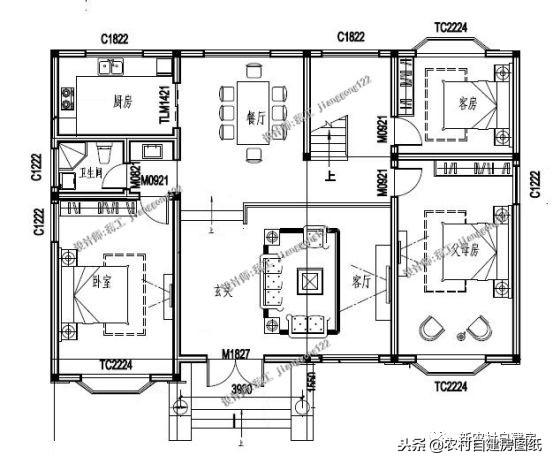
平面布局圖:
經典的二層歐式風格,多弧度的屋頂設計美觀大氣。 采用三室兩廳一廚衛的設計,在一樓進門設置玄關,避免一眼看完整個房間,保留一點神秘感。 在二樓裝修一間書房也是極好的,用于日常休閑。 外觀使用更多的玻璃窗設計,顯得明亮干凈。二樓有一個小陽臺,可以看風景。 戶型2
清新的田園風格,溫馨淡雅的配色賞心悅目,透露著家的溫馨與雅致。
這款設計最大的特色是有落地玻璃,顯得大氣。紅色歐式小屋頂很可愛俏皮。集簡約與華貴于一體。 這樣的房子適合居住,又符合對美的追求。是自建房的佳選! 案例三
室內布局圖:
磚紅色和米黃色的外觀清新淡雅又不失莊重,歐式風格有一種異國風情,同時室內的設計又很人性化,住的舒服。 進門的玄關和客廳組成一個寬闊的活動空間,讓室內更加舒適寬敞。 在這個鋒利冰冷的社會里行走,有一處能讓我們躲避風雨,且能滿足詩情畫意的情懷的房屋,是時光對我們最好的溫柔。你想不建一棟這樣的房屋呢? 圖紙之家-專注農村別墅/自建房設計18年,集合國內200余位經驗豐富的設計師,被評為口碑最好的農村建筑設計公司! |

170平方米雙拼別墅戶型建筑設計圖紙及外觀效果圖,復式單戶85平
占地:170平方米
新中式三層雙拼別墅設計圖,外觀圖片美觀、大氣
占地:176平方米
160平方米農村三層別墅CAD設計圖紙及效果圖,13.7x12.6米
占地:160平方米
鄉村三層別墅施工圖紙帶效果圖,田園別墅設計圖紙推薦
占地:178平方米
農村自建房三間設計圖,花錢少效果好12米乘9米,經濟適用性價比
占地:108.9平方米
普通農村二層房子設計圖 ,復式結構,帶車庫,占地160平米左右
占地:160平方米
雙拼豪華高端三層別墅設計圖,外觀效果圖大氣
占地:300平方米
一層農村三合院別墅設計方案圖,秀氣優美,大氣又實用
占地:191.18平方米
面寬8米農村二間二層小別墅設計方案,施工簡單造價低
占地:73.77平方米
140平三層自建房別墅設計圖,外觀圖大氣、美觀
占地:140平方米
農村二層中式戶型設計圖,造型古香古色,建好絕對是地標
占地:245.39平方米
簡單大氣農村兄弟三層雙拼別墅住宅設計圖,13X8米
占地:110平方米左右
新款現代一層小別墅設計圖,農村自建平房推薦戶型
占地:多戶型可選
三層獨棟帶露臺房屋設計圖,含外觀圖片大全
占地:110平方米
地中海風格二層別墅設計圖及效果圖,外觀有格調
占地:125平方米
農村三層別墅設計圖紙,造價50萬左右,中式風格,沉穩內斂
占地:160平方米
小戶型兄弟雙拼別墅房屋設計圖,帶外觀效果圖
占地:150平方米
簡約大氣農村自建三層別墅設計圖,布局合理,很適合農村人自建
占地:139.471平方米
農村三間兩層樓房設計圖,帶車庫,戶型簡單實用
占地:140平方米
兩戶250平方米農村豪華歐式三層兄弟雙拼別墅設計圖
占地:251平方米
推薦:10套新農村自建房設計圖,2026年最新設計
閱讀次數:4825737次
100套鄉村別墅圖片大全,2026年最新設計
閱讀次數:2492203次
6款農村蓋一層平房的設計圖,10萬元就能建起來
閱讀次數:1852637次
這11個一層農村自建房別墅火爆了朋友圈!我最喜歡戶型十!你呢
閱讀次數:750268次
農村6萬元建一層小別墅圖,你敢相信嗎
閱讀次數:567686次
農村5萬塊就能自建房,6套普通房子設計圖分享,你沒看錯!
閱讀次數:419410次
8套農村漂亮三間平房圖片,非常適合在農村修建!
閱讀次數:411197次
農村自建房化糞池怎么做?附方案及施工過程
閱讀次數:391783次
農村一層三間平房設計圖,告別土氣養老房,讓人忍不住點贊
閱讀次數:350581次
新農村二層樓房圖片造價12萬,挑一套回家建房吧!
閱讀次數:349126次
