
|
在農村有地真好,可以在農村建一棟大別墅,過著輕松自在的日子,30萬在農村建一棟好別墅,你說值不值的?
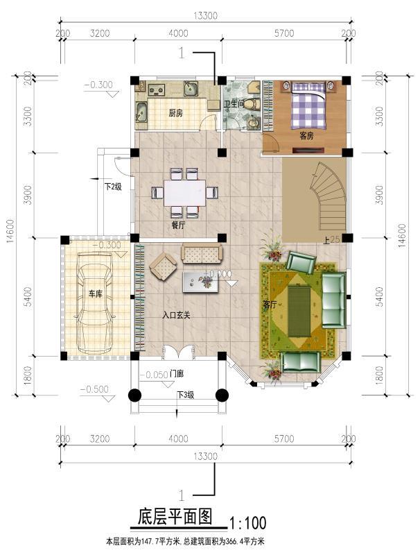
大氣的歐式風格,挑空復式樓,采光效果非常好!帶有大車庫!
建成實景!可以說很氣派了!
建成實景,這30來萬,你說不值不值得?
實景比效果圖還好看!
有人說,有30萬寧愿在城里買房,也有人喜歡在農村建一棟別墅,過著舒適的日子,你會怎么選擇呢? 圖紙之家-專注農村別墅/自建房設計18年,集合國內200余位經驗豐富的設計師,被評為口碑最好的農村建筑設計公司! |

帶車庫二層別墅設計圖及效果圖,帶車庫的農村二層樓房推薦
占地:123平方米
農村三層樓房設計圖紙及效果圖,經典自建圖紙
占地:201平方米
農村兄弟合建一層雙拼房別墅圖,對稱設計,工整大方!
占地:170平方米
新農村二層雙拼小別墅設計圖,開間22米的現代房屋圖紙設計
占地:230平方米
新中式小戶型二層別墅效果圖及全套施工設計圖,造價經濟實惠
占地:108平方米
15米面寬田園風一層別墅!戶型新穎太吸睛,看過都想建
占地:141.13平方米
鄉村二層半別墅圖紙設計,歐式風格、錯落有致,150平左右
占地:149.76
最美中式農村別墅二層三間的房子圖,帶土灶房,娛樂室,大露臺
占地:180平方米
帶KTV的四開間的二層別墅設計圖,造型美觀經濟實用
占地:240.22平方米
二層樓房設計圖,占地120平米左右,符合現代農村的建房政策
占地:120平方米
12米×10米左右一層別墅平房戶型圖及設計圖,造價低
占地:110平方米
100平簡單三層房屋設計圖紙,新農村自建推薦圖紙
占地:100平方米
兄弟合建中式一層四合院設計圖,古樸雅致代代相傳,永不過時
占地:468.03平方米
經典的農村三層小樓房設計圖,外觀圖片時尚、精致
占地:100平方米
簡簡單單的二層樓房的設計圖,24萬就能搞定
占地:120平方米
鄉村二層簡歐小戶型別墅圖設計,占地90平方米左右
占地:92.12平方米
中國最美的四合院別墅設計圖方案,復式挑空客廳戶型
占地:343.57平方米
蓋別墅圖紙新農村簡歐二層房屋設計圖,12米×12米左右
占地:128平方米左右
農村一層中式三合院別墅設計圖,戶型經典實用,19米乘15米
占地:243.21平方米
大開間小進深的一層別墅設計圖,進深僅8.7米,獨立餐廚照樣美觀
占地:130.32平方米
推薦:10套新農村自建房設計圖,2026年最新設計
閱讀次數:4825737次
100套鄉村別墅圖片大全,2026年最新設計
閱讀次數:2492203次
6款農村蓋一層平房的設計圖,10萬元就能建起來
閱讀次數:1852637次
這11個一層農村自建房別墅火爆了朋友圈!我最喜歡戶型十!你呢
閱讀次數:750268次
農村6萬元建一層小別墅圖,你敢相信嗎
閱讀次數:567686次
農村5萬塊就能自建房,6套普通房子設計圖分享,你沒看錯!
閱讀次數:419410次
8套農村漂亮三間平房圖片,非常適合在農村修建!
閱讀次數:411197次
農村自建房化糞池怎么做?附方案及施工過程
閱讀次數:391783次
農村一層三間平房設計圖,告別土氣養老房,讓人忍不住點贊
閱讀次數:350581次
新農村二層樓房圖片造價12萬,挑一套回家建房吧!
閱讀次數:349126次
