
|
雖然北方蓋一層自建房的居多,但是現在由于限制宅基地的政策規定,只蓋一層家里人口多的話活動空間有限,也過于浪費宅基地,蓋上一棟二層的別墅其實也不賴。建不了高層,建一個居中的二層別墅,不管是給父母住,還是以后養老都非常實用。 01第一套
一棟極具搭配色彩的現代別墅,墻裙部分采用耐臟的紅磚,上層是清新的白色真石漆,屋頂顏色為靚麗的磚紅色西瓦。
室內布局大氣雍容,進門就是一個空間闊綽的挑空客廳,旋轉落樓梯,二樓設計多件臥室,還有一個富有生活情趣的小陽臺。 02第二套
采用農村常見的磚混結構,開間15.5米,進深11.5米,占地面積177.79平方米。
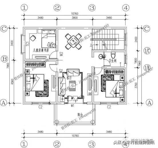
03第三套
屋頂造型流暢,線條美感無處不在。房子構造整潔有序,外表采用真石漆和文化磚,造價經濟又實惠。四面開窗,室內采光充沛透氣性好。
入戶客廳與餐廳相連,連通性較好,房間更顯通透開闊。二樓設計了客廳和棋牌室,還有一個大陽臺,起居生活更加方便。 04第四套
05第五套
外觀清新簡約,細節處的雕花工藝也十分精湛講究,多用采光窗,不僅保證室內光照充沛,給外觀也增添了美感。
一層公共衛生間設計在兩間臥室中間,方便日常起居生活。二樓的客廳連接陽臺,室內光照充足,方便招待重要的客人和朋友。主臥設計書房,方便在家工作學習,生活工作兩不誤。 06第六套
07第七套
運用明媚活潑的色彩,打造溫馨舒適的居家氛圍,大氣而部繁瑣,簡單而不造作,端莊之余更顯溫馨。
進門就是一個門庭,有一個過渡緩沖的作用,柴火房的設計,即使是現代化的農村生活仍然可以吃到香噴噴的柴火飯。一層有兩個衛生間,貼心又方便。二樓設計寬敞的露臺和安靜的書房,空間生活多樣化。 08第八套
09第九套
這是一款溫馨舒適的田園風別墅,整體輪廓清晰流暢,溫暖的文化石,內斂的土黃色,富有質感的深灰色,簡單的線條裝飾,房子更加清爽靈動。
一層的主臥室帶有衣帽間和衛生間,方便父輩們生活。二層設計3間臥室,露臺可以做一個精致的陽光房。客廳的設計,讓二層有了一個獨立的生活空間。 010第十套
![]()
圖紙之家-專注農村別墅/自建房設計18年,集合國內200余位經驗豐富的設計師,被評為口碑最好的農村建筑設計公司! |

小型中式一層三合院別墅設計圖,小宅基地照樣建合院
占地:119.73平方米
農村10萬元一層小別墅設計圖,農村一層自建房屋設計圖
占地:多種戶型
一層4間自建平房別墅及全套戶型圖紙,占地160平左右,簡單實用
占地:162.13平方米
簡單農村二層平屋頂房屋設計圖,外觀簡潔、大方
占地:200平方米
精致簡歐一層別墅設計圖,經典大氣百看不厭
占地:139.57平方米
農村三間一層別墅設計圖,經濟實用還好看
占地:139.56平方米
150平方米農村二層磚混結構別墅施工建筑設計圖,平頂設計
占地:150平方米
農村二層四合院設計圖,秒殺各種洋別墅
占地:220平方米
鄉下復式三層房子設計圖,帶堂屋,客廳中空,輕奢風格
占地:190平方米
10萬農村別墅設計圖小戶型,經濟、耐看、實用
占地:多種戶型
小戶型徽派建筑別墅設計方案大全,三層別墅設計圖推薦
占地:95平方米
95平方米農村四層房屋設計圖,8米X11米 ,預算37萬
占地:95平方米
二層新中式小別墅設計圖紙,舒適實用,16米乘12米
占地:189.88平方米
四間兩層別墅房屋設計圖,外觀效果圖好看
占地:235平方米
農村三層樓房圖造價26萬,客廳中空,占地90平米
占地:90平方米
140平方米新農村四層房屋設計圖紙,農村自建推薦
占地:140平方米
農村三層帶電梯小別墅設計施工圖,120平方米左右12.2x10.8米
占地:123平方米
2026年新款別墅外觀圖及全套施工圖紙,占地面積13×10米
占地:130平方米
140平米平屋頂二層新農村自建房設計圖,極簡主義設計 ,實用優
占地:143平方米
100平方米新農村住宅二層小別墅設計CAD圖紙及效果圖,10x10米
占地:96平方米
推薦:10套新農村自建房設計圖,2026年最新設計
閱讀次數:4825737次
100套鄉村別墅圖片大全,2026年最新設計
閱讀次數:2492203次
6款農村蓋一層平房的設計圖,10萬元就能建起來
閱讀次數:1852637次
這11個一層農村自建房別墅火爆了朋友圈!我最喜歡戶型十!你呢
閱讀次數:750268次
農村6萬元建一層小別墅圖,你敢相信嗎
閱讀次數:567686次
農村5萬塊就能自建房,6套普通房子設計圖分享,你沒看錯!
閱讀次數:419410次
8套農村漂亮三間平房圖片,非常適合在農村修建!
閱讀次數:411197次
農村自建房化糞池怎么做?附方案及施工過程
閱讀次數:391783次
農村一層三間平房設計圖,告別土氣養老房,讓人忍不住點贊
閱讀次數:350581次
新農村二層樓房圖片造價12萬,挑一套回家建房吧!
閱讀次數:349126次
